
House for sale 5+1 • 126 m² without real estateEschenweg 41 Bamberg Bamberg Bayern 96050
Eschenweg 41 Bamberg Bamberg Bayern 96050Public transport 7 minutes of walking • ParkingYou save €19,278 in broker commission.
This well-maintained terraced mid-family house, built in 2000, is located in the quiet and popular former NATO settlement – a family-friendly area with a strong sense of community.
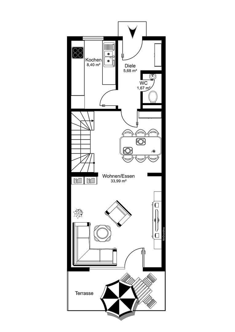
On the ground floor, you are welcomed by a bright living room of approximately 34 m² with access to a sunny west terrace – ideal for relaxed evenings and convivial moments. A separate kitchen, a guest WC, and a bright entrance area complete this level.
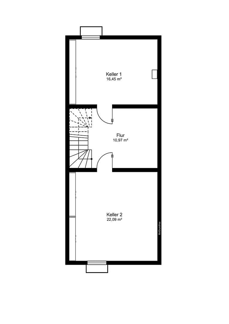
On the upper floors, there are four cosy bedrooms and two spacious bathrooms equipped with both a shower and a bathtub – perfect for families, guests, or a home office. The basement offers additional storage space, a laundry room, and flexible usage options.
The house is modern, well insulated, and boasts excellent energy efficiency ratings – an advantage for comfort and low running costs. Two outdoor parking spaces can be purchased for an additional €20,000.
The house is ideal for families of up to five people.
Eschenweg in the former "NATO settlement" in eastern Bamberg is more than just an address – it is a place to settle in and feel at home. The quiet residential setting, characterized by plenty of greenery and a harmonious neighbourhood, has long established itself as a popular retreat for young families.
Here, children can still play carefree on safe streets while you enjoy the exceptional quality of living. The settlement exudes an atmosphere of security and community – a genuine feeling of home that you sense immediately.
Despite the idyllic location, you are excellently connected: just about 500 meters away, a city bus stop operating every 15 minutes conveniently takes you to the city centre. By car, you can reach the highway on-ramp after only around 1,000 meters – perfect for commuters or excursions into the surrounding area.
Shopping opportunities, schools, kindergartens, and leisure facilities are in close proximity, allowing you and your family to enjoy short distances and the highest living comfort.
Eschenweg combines peaceful, nature-oriented living with excellent infrastructure – creating the ideal environment where family life and everyday dreams go hand in hand.
Property characteristics
| Age | Over 5050 years |
|---|---|
| Condition | Good |
| Listing ID | 992487 |
| Usable area | 126 m² |
| Total floors | 3 |
| Available from | 23/02/2026 |
|---|---|
| Layout | 5+1 |
| EPC | B - Very economical |
| Land space | 177 m² |
| Price per unit | €4,126 / m2 |
What does this listing have to offer?
| Basement | |
| MHD 7 minutes on foot |
| Parking | |
| Terrace |
What you will find nearby
Still looking for the right one?
Set up a watchdog. You will receive a summary of your customized offers 1 time a day by email. With the Premium profile, you have 5 watchdogs at your fingertips and when something comes up, they notify you immediately.























