Plot for sale • 20000 m² without real estateWellerstrasse 18, , Saxony
Wellerstrasse 18, , SaxonyPublic transport 7 minutes of walkingDirectly from the owner, a commercial plot of approximately 20,000 m² with an approved zoning plan (B-Plan) and excellent transport connections near Leipzig/Halle Airport and a highway interchange is offered.
The plot is located in a commercially focused area and is suitable for various uses related to logistics, services, or accommodation.
An approved development plan is available, which enables prompt construction. According to the stipulations of the development plan, construction with a gross floor area (BGF) of up to approximately 20,000 m² is permitted. The plot ratio (GRZ) is 0.8. The allowed building height—depending on the specific planning—ranges between 13 and 15 meters.
According to § 8 (1) of the Building Usage Ordinance (BauNVO), among other things, the following uses are permitted:
Commercial enterprises of all kinds
- Warehouses and storage areas
- Commercial, office, and administrative buildings
- Public facilities
- Gas stations as well as sports facilities
- Hotel and boarding house, or comparable accommodation concepts
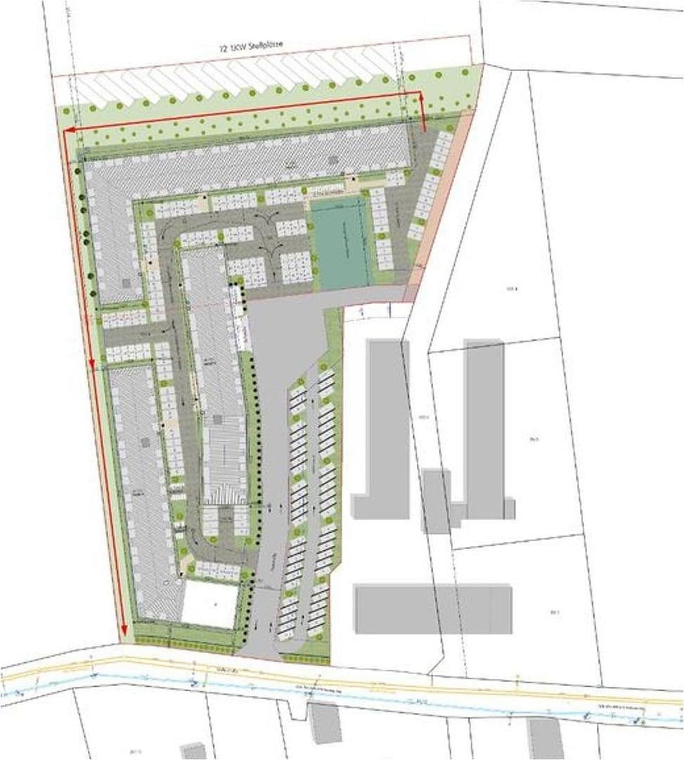
Some of the attached visualizations are provided solely to illustrate potential development variants and do not represent binding plans.
The sale is conducted as a share deal. The purchase price amounts to €65 per m².
For further information or to arrange a viewing appointment, we are happy to assist you.
The location is in an established commercial area, in close proximity to an international airport (approx. 2 km). Two regional motorway axes can be reached in about 300 m, and there is also a connection to a federal highway. There is excellent rail connectivity via a nearby long-distance transport hub with ICE and IC services. The site offers high potential for third-party use and sustainable demand for hotel, boarding house, logistics, and commercial purposes.
For any questions or further information, I am happy to help. You can reach me by phone from Monday to Friday between 9:00 AM and 6:00 PM. If you prefer, you can also send me a message via WhatsApp at 0163-5152057.
Alternatively, you can email me at hildebrand@gpm.immobilien.
If you would like to speak directly with the owner—for instance, regarding price negotiations—you can contact the owner, Mr. Peter Jugl, directly at 01709848571 or send a WhatsApp message.
Imprint
GPM GmbH
Hafenstraße 12
04416 Markkleeberg
Represented by:
Peter Jugl
Register entry:
Registered in the Commercial Register.
Registry court: Amtsgericht Leipzig
Registration number: HRB 21518
Responsible for the content (according to § 55 (2) RStV):
Peter Jugl
Property characteristics
| Listing ID | 992171 |
|---|---|
| Price per unit | €65 / m2 |
| Land space | 20,000 m² |
|---|
What does this listing have to offer?
| MHD 7 minutes on foot |
What you will find nearby
Still looking for the right one?
Set up a watchdog. You will receive a summary of your customized offers 1 time a day by email. With the Premium profile, you have 5 watchdogs at your fingertips and when something comes up, they notify you immediately.



