House for sale 6+1 • 172 m² without real estate, Baden-Württemberg
, Baden-WürttembergPublic transport 2 minutes of walking • ParkingHere we are selling a newly renovated semi-detached house with two beautiful, bright three-room apartments. These can be used separately or combined into one large apartment. They are thus ideally suited for freelance professionals and/or multi-generational living.
Both apartments have been newly renovated and offer a ceiling height of 2.93 meters. The bathrooms are equipped with both a shower and a bathtub as well as new Wi‑Fi mirrors. In addition, there is a guest WC on each half-floor.
From the upper apartment, you can access the attic, which has been completely insulated and renovated. This level offers you a beautiful view of the greenery and is designated as usable space. Everything was newly sanded down and repainted in a satin matte white finish in up to eight coats. Additionally, new laminate flooring has been installed in every room and in the attic.
Electricity, water, radiators, and pipes were replaced between 2007 and 2009, and during that period the attic was also completely rebuilt. The stairs from the mezzanine to the first floor, as well as from the first floor to the attic, are equipped with LED strips.
In the basement there is a fitness room, a laundry room, a boiler room, as well as two additional storage rooms. The entire basement is tiled and provides plenty of shelves and cabinets for storage.
The property covers 404 m² and is very well laid out, so that everyone can find their own space and relax. In the two-story outbuilding you will find the following rooms: a garden room, a workshop, a covered terrace, and a bin room. In addition, the entire first floor is available as storage space.
The beautifully landscaped garden with its many lovely roses is a highlight. All the gutters were cleaned last year. Everything is in such good order that you can enjoy the outdoors rather than having to work on it.
If you are looking for a special, immediately available house in Müllheim, then this is certainly the right property for you. We are selling privately, without a real estate agent. The calculation of the living area as well as the energy certificate are available.
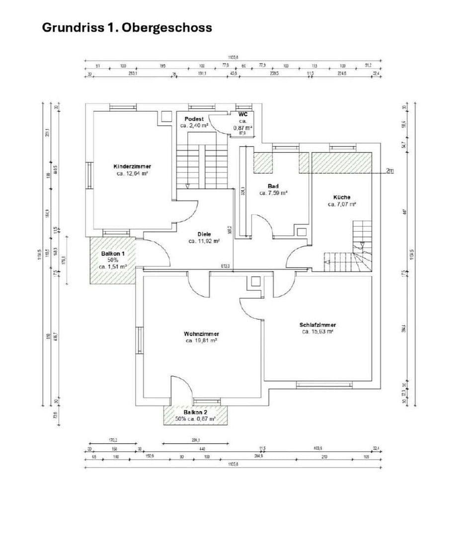
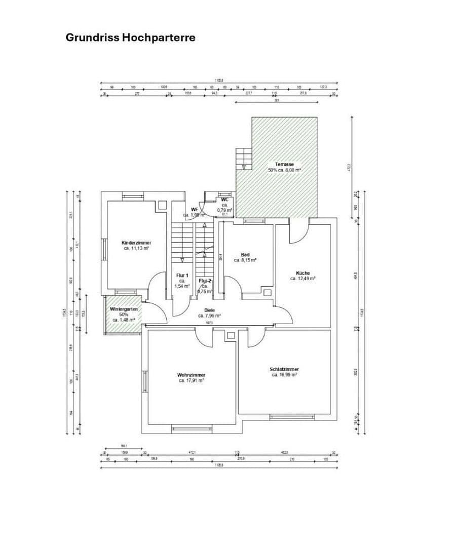
The apartment on the raised ground floor is 91.57 m² in size. The apartment on the upper floor (without the attic) is 79.66 m². The basement is 72.84 m², and the attic is 57.19 m². In total, we have approximately 172 m² of living space and over 160 m² of usable space.
The house is located on Hebelstrasse in Müllheim. Schools, Aldi, bus stops, and the pedestrian zone can all be reached on foot in just a few minutes. The house has been freshly renovated for sale. The property is equipped to a high standard and is certainly a unique opportunity in Müllheim.
Property characteristics
| Age | Over 5050 years |
|---|---|
| Condition | After reconstruction |
| Listing ID | 992159 |
| Usable area | 172 m² |
| Total floors | 3 |
| Available from | 20/02/2026 |
|---|---|
| Layout | 6+1 |
| EPC | G - Extremely uneconomical |
| Land space | 404 m² |
| Price per unit | €5,785 / m2 |
What does this listing have to offer?
| Balcony | |
| Parking | |
| Terrace |
| Basement | |
| MHD 2 minutes on foot |
What you will find nearby
Still looking for the right one?
Set up a watchdog. You will receive a summary of your customized offers 1 time a day by email. With the Premium profile, you have 5 watchdogs at your fingertips and when something comes up, they notify you immediately.









































