
House for sale 4+1 • 164 m² without real estate, Brandenburg
, BrandenburgPublic transport 3 minutes of walking • Parking • GarageHere is the translation of the text:
Thanks to a foundation, you benefit from an initial down payment of only €300,000 with subsequent monthly installments. This means that the total cost for this beautiful house does not exceed that of a conventionally financed house priced at €680,000. The light-filled house, with 164 m² of living space (four large rooms and three bathrooms with windows), is extremely comfortable, making it a pleasure to live in and feel very at home. It is fully rendered with ventilated cladding and well insulated with triple-glazed windows. Energy is saved by heating the house centrally with a heat pump. The temperature of the underfloor heating beneath the tiles and oak parquet is individually controllable. Two solar collectors provide hot water. The central supply and exhaust ventilation system with heat recovery ensures a constant flow of fresh air.
The windows and terrace doors are equipped with external shutters with timers. The interior doors are threshold-free and 1 m wide for comfortable passage. The upper floor is reached via the beech wood staircase. With an added stairlift, the whole house could be barrier-free, particularly since it is accessible at ground level. This is advantageous for strollers, shopping trolleys, and suitcases. Compared to the standard, the ground floor has been increased by 10 cm, harmoniously complementing the generous living areas. Visitors announce themselves via the video intercom system.
The double garage of 36 m² provides space for two cars. The access gate and the garages are operated by remote control. In front of the garages there is space for two additional cars or, next to one car, for a caravan or a recreational boat. The two courtyard doors, each with two wings, lead via a large terrace into the garden with newly laid turf. Above the upper floor there is a full-floor, column-free attic where one can stand up straight in the middle and that offers plenty of space for storage. On the roof, in addition to the satellite antenna, a complete lightning protection system is installed.
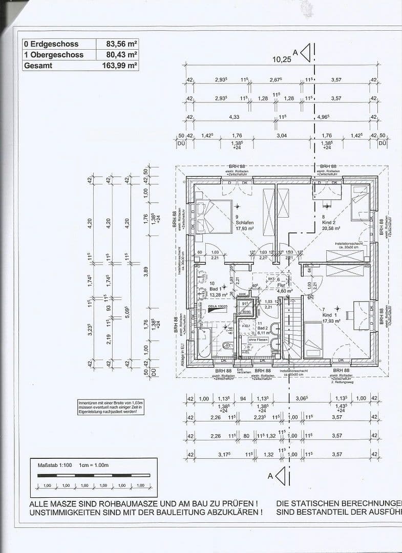
Only local residents, suppliers, as well as the post and garbage collection, are active in the area. You live among friendly, noisy neighbors—mostly young families—so that all children can easily make friends. Young children can play safely in the garden on the turf and in the sandbox. Older children also appreciate the two large rooms on the upper floor, measuring 18 m² and 21 m² respectively, along with their own bathroom.
The house is ideal for a family of four to six and is designed for every stage of life—allowing, if necessary later on when the children have moved out, for a full-time caregiver (potentially even with a child) to move in—so that one can grow old carefree in this home.
There is hardly another nearly new, energy-saving house with this level of equipment and three bathrooms available in this price range in Berlin and its easily accessible surroundings. If you want to have a new house of this quality built, you must expect noticeably higher costs. Our house is as new as if it had just been built in 2025—and is ready to move in immediately. It is best to see it for yourself right away.
At Oranienburg station, in addition to S-Bahn line 1 towards Wannsee, train lines RB12, RB20, RE5, RE6, and RE85 as well as an IC towards Dresden and the Baltic Sea operate. With the regional train, you can reach Berlin’s Gesundbrunnen in 20 minutes and Potsdamer Platz or Ostkreuz in 36 minutes. You can reach the station with elevators within ten minutes by bicycle, as well as shopping centers, doctors’ offices, pharmacies, restaurants, and cafés. Oranienburg Castle includes a large castle park, behind which our house is located in a quiet area with fresh air in a new single-family housing development. At the edge of the development there is a biotope and a huge area with lawns, shrubs, and trees where children can play and run around. Between the Oranienburg Canal and the Havel, there is a swimming spot with a sunbathing lawn at the end of the development.
There are kindergartens, primary and secondary school options, as well as interesting cultural institutions. All of these are listed on the local websites. After all, Oranienburg is the fifth largest city in Brandenburg.
By car, you quickly reach the countryside (forest and, for example, Lehnitzer See). There are good connections to the B 96 expressway and further to the nearby motorways. The location away from the main roads also has the additional advantage that, on a clear night, one can admire the stars. In spring and autumn, cranes fly over our area.
The house features a magnolia-colored, low-maintenance, brand-built kitchen with an island and 5 induction cooking zones with an extractor hood, along with a sink, dishwasher, refrigerator, oven, and microwave. The kitchen and rooms have radio/TV reception via a satellite antenna, as well as landline telephone connection and WLAN.
In all bathrooms, there are walk-in showers—and in each, a urinal for quick matters, which is particularly useful when two persons in a hurry need to use them simultaneously, such as early in the morning, after a television program, or after returning from somewhere. This is another special feature of the house that is rarely found elsewhere. On the upper floor, both bathrooms include double washbasins and a heated towel rail each. The bathtub in the en-suite master bathroom attached to the parents’ bedroom measures 180 x 80 cm.
The house also impresses with an exceptionally high number of electrical outlets and connection points, which would be difficult to retrofit later. All door handles are ergonomically designed for a pleasant grip. When approaching the house in the dark, the facades automatically light up, preventing unauthorized persons from tampering with the house unnoticed.
Special features: Fully rendered cladding with ventilation, double garage, heat pump, central supply and exhaust ventilation system with heat recovery (which prevents mold formation), underfloor heating beneath oak parquet, spacious children’s rooms of 18 and 21 m², three fully functional bathrooms with windows and with both a typical fixture and a urinal, two bathrooms on the upper floor with double washbasins and heated towel rails. The master bathroom attached en-suite to the parents’ bedroom offers, among other things, a stable bathtub of 180 x 80 cm. All showers are walk-in.
The room doors are comfortably designed with a 1 m width, without thresholds and easy to maintain, just like the premium built-in kitchen.
The energy efficiency (rated A+ and 14 kWh/m²) is particularly commendable from an environmental perspective. On the roof, there are two solar collectors for hot water and a lightning protection system. Unlike the standard model, the ground floor has been increased by 10 cm to harmonize with the generous spaces. For the greater comfort of the house, there are plenty of electrical connections and outlets, which would later be difficult to add. All the rooms and the kitchen have WLAN connectivity.
For additional protection against burglary, the facades are automatically illuminated in the dark in case someone attempts unauthorized entry.
Financially, the foundation offers three main advantages:
1. The total costs including financing are no higher than those for a house priced at €680,000.
2. For our offer, you only need an initial down payment of €300,000.
3. With us, the house is paid off one year earlier than with conventional financing.
You will learn more details at the viewing.
Property characteristics
| Age | Over 5050 years |
|---|---|
| Condition | Very good |
| Listing ID | 992139 |
| Usable area | 164 m² |
| Total floors | 2 |
| Available from | 28/02/2026 |
|---|---|
| Layout | 4+1 |
| EPC | A - Extremely economical |
| Land space | 550 m² |
| Price per unit | €4,512 / m2 |
What does this listing have to offer?
| Garage | |
| MHD 3 minutes on foot |
| Parking | |
| Terrace |
What you will find nearby
Still looking for the right one?
Set up a watchdog. You will receive a summary of your customized offers 1 time a day by email. With the Premium profile, you have 5 watchdogs at your fingertips and when something comes up, they notify you immediately.
























