
House for sale • 246 m² without real estate, Baden-Württemberg
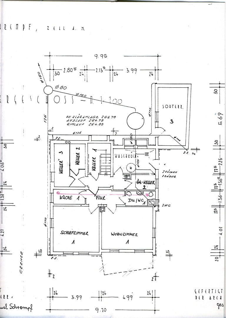
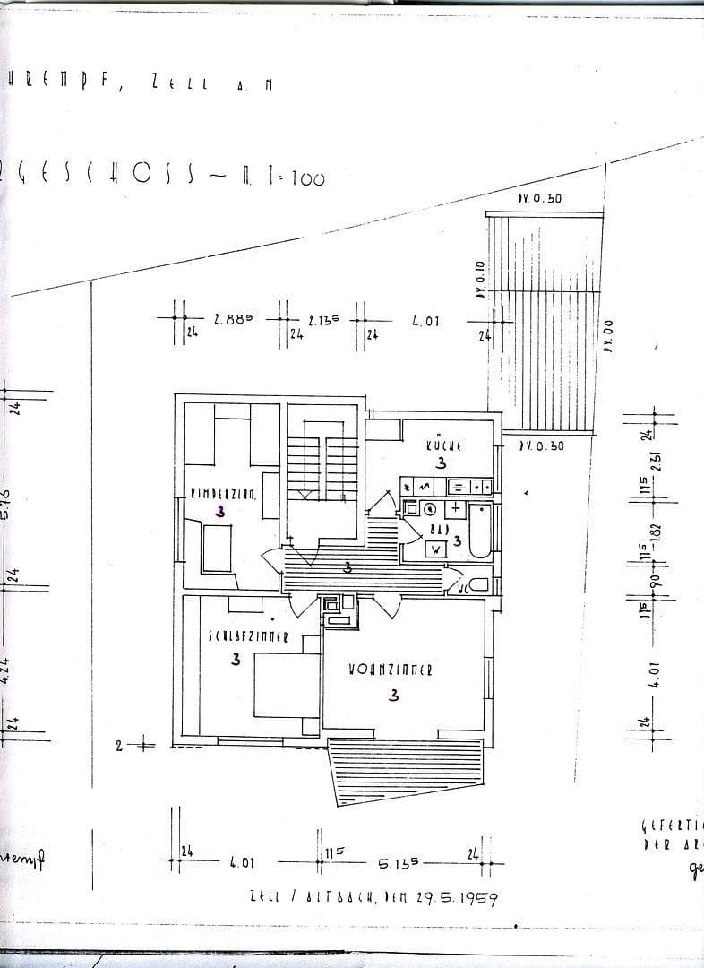
The triple-family house in Esslingen-Zell is divided into three condominiums and includes an accessory apartment in the basement (UG 50 m²), as well as two full floors (ground floor 79 m² and upper floor 79 m²) and an attic (DG 40 m²). The apartment on the upper floor together with the attic forms a single living unit.
The accessory apartment in the basement has 2 rooms, a shower/WC, a small kitchen, and a basement storage room. The shower/WC was renovated in 1993. The apartment is heated by a night-storage heater (2004) and is currently rented.
The apartment on the ground floor has 3 rooms, a balcony, a bathroom, a separate WC, a kitchen with fitted kitchen and appliances, as well as a basement storage room in the basement. The bathroom and WC were renovated in 1988; in 2015 a comprehensive renovation was carried out and a gas condensing floor heating system was installed. The apartment will be available from March 1, 2026.
The apartment on the upper floor has 3 rooms, a balcony with an electric awning, a bathroom, a separate WC, a kitchen with fitted kitchen and appliances, as well as a basement storage room in the basement. The bathroom was renovated in 2008. The last renovation was carried out in 2015 and a gas condensing floor heating system was installed. The apartment will be available from May 1, 2026.
The rooms in the attic together with the upper floor form a unit. There are 3 rooms with sloping ceilings, a stage room, and a shower/WC. The rooms have been partially renovated and are heated by a night-storage heater and electricity respectively.
Also belonging to the living unit of the upper floor and attic is the garage at the house with an electric door drive and a bicycle storage room.
For the living units on the ground floor and basement, there is a garage with a parking space directly opposite each.
The charming triple-family house is located in a residential area on a plateau with a well-kept garden and views over the Neckar valley and the Protestant church.
The center of Esslingen-Zell and the S-Bahn station are a 6-minute walk (350 m) away. The nearest public bus stop to Esslingen is 180 m away. The primary school is in the town, and secondary schools in Esslingen are easily accessible. In the town center there are shops, a pharmacy, and doctors; the shopping center is easily reachable by car.
Families with small children will appreciate the kindergarten only 240 m away.
The proximity to the recreational area of Schurwald and the Zell orchards is ideal for walks and sporting activities, offering perfect nature-oriented relaxation.
All the windows of the building were renovated in 2005, with a thermal transmittance value of 1.2, some of which are soundproof windows. On the ground and upper floors, folding sliding doors to the balcony were installed and the two balcony railings were renewed in 2018. In the completely renovated sewage system (2019) an automatic rain backflow valve (2000) was installed. The water supply pipes to the individual living units were renewed in 2015 and equipped with water meters for each apartment.
The electrical installation meets the prescribed safety standards. The supply lines to the floor distributors and the distributors themselves have all been renewed.
In the basement, there are connection points for a washing machine and a clothes dryer for each living unit.
Property characteristics
| Age | Over 5050 years |
|---|---|
| Condition | Good |
| EPC | G - Extremely uneconomical |
| Land space | 442 m² |
| Price per unit | €3,496 / m2 |
| Available from | 01/05/2026 |
|---|---|
| Listing ID | 991800 |
| Usable area | 246 m² |
| Total floors | 3 |
What does this listing have to offer?
| Balcony | |
| Garage | |
| MHD 2 minutes on foot |
| Basement | |
| Parking | |
| Terrace |
What you will find nearby
Still looking for the right one?
Set up a watchdog. You will receive a summary of your customized offers 1 time a day by email. With the Premium profile, you have 5 watchdogs at your fingertips and when something comes up, they notify you immediately.


























