Office to rent • 58 m² without real estateTratmoos 22 Niederneuching / Wolfsleben Wolfsleben Bayern 85467
Tratmoos 22 Niederneuching / Wolfsleben Wolfsleben Bayern 85467Public transport 9 minutes of walking • ParkingThe commercial unit, measuring 58 m², is located on the 1st floor (no elevator) in a building hosting a total of five commercial units in Wolfsleben/Commercial Area Tratmoos. Each commercial unit is assigned a car parking space on the property, which is included in the rental price. Additional parking spaces can be used on the public street.
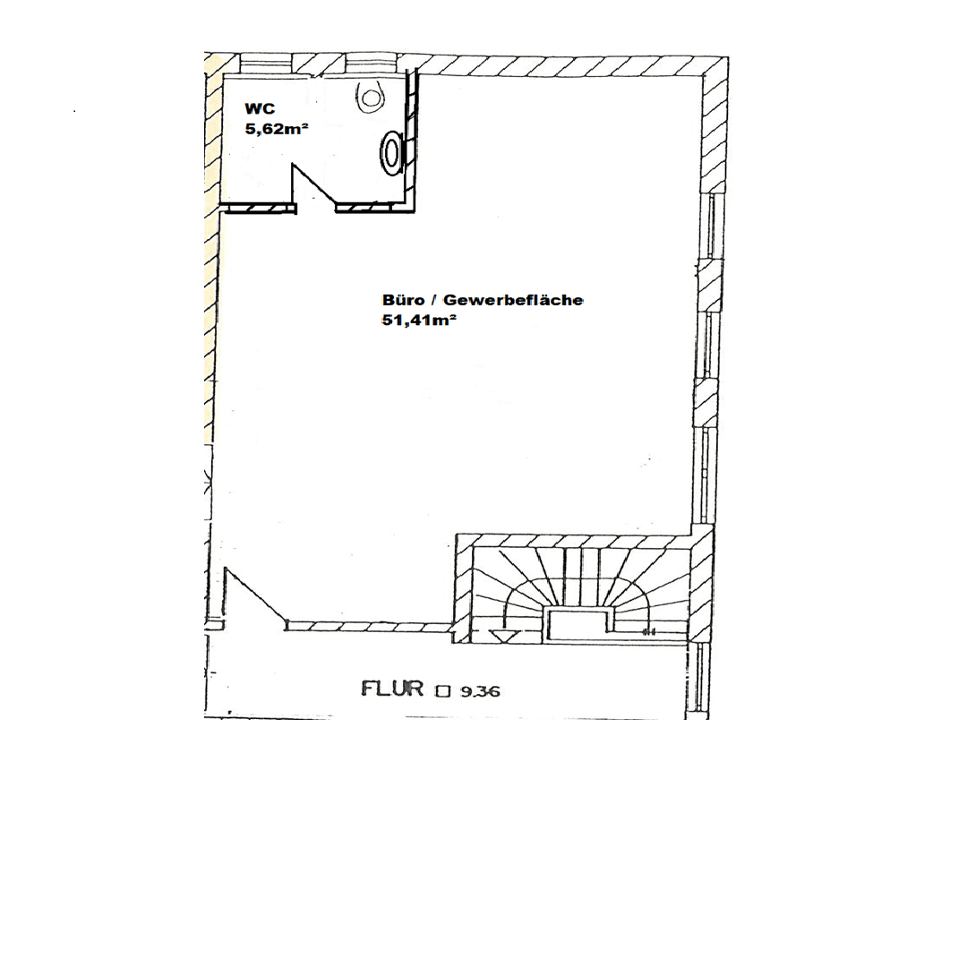
Thanks to numerous windows, the unit is optimally illuminated with daylight. It is equipped with a toilet and a washbasin. The existing kitchenette can be taken over at no additional cost, or you can use the available connections for your own kitchen furniture.
The quiet and small commercial area of Tratmoos belongs to the administrative community of Oberneuching, consisting of the municipalities Neuching and Ottenhofen. The Wolfsleben district is accessible via the ST 2082, which leads from Kirchheim to Erding. Wolfsleben is located at the southern part of the Erdinger Moor, north of the Speichersees, and approximately 24 km northeast of Munich, the state capital.
The municipality’s excellent transport connections make it possible to reach both Munich (about a 25-minute drive, 24 km) as well as the district town of Erding (about a 10-minute drive, 7.5 km) and the airport (21-minute drive, 18 km) quickly. There is access to the S-Bahn at Sankt Koloman S2 (about a 7-minute drive, 5 km) or Ottenhofen S2 (about a 7-minute drive, 6 km).
Via the Flughafentangente Ost running east of the municipality, you can reach the A94 at the Markt Schwaben junction (about a 13-minute drive, 14.5 km), the airport (about a 21-minute drive, 18 km), and the A92 at the Erding junction (about a 21-minute drive, 21 km). The A99 with the Kirchheim junction can be reached conveniently via the ST 2082 (about a 14-minute drive, 13 km). The A9 with the Garching Süd junction is accessible via the B388 (about a 19-minute drive, approximately 17 km).
The commercial unit is equipped with a fiber-optic connection for telephone and internet as well as an intercom system. With the provider, Deutsche Glasfaser, you have the option to book connections ranging from 300 Mbit/s download / 150 Mbit/s upload per second up to 1000 Mbit/s download / 500 Mbit/s upload per second. A dream come true for every professional internet user!
Office space 58 m² – €640.00 + operating costs €150.00 plus statutory VAT
Deposit: 3 months’ rent
Rental exclusively to business operators or freelancers
Commercial tax assessment rate for the municipality of Neuching: 370
Rental available no earlier than 01.04.2026
Rental directly from the owner
Property characteristics
| Age | Over 5050 years |
|---|---|
| Condition | Good |
| Listing ID | 991646 |
| Price per unit | €11 / m2 |
| Available from | 01/04/2026 |
|---|---|
| Floor | 1. floor |
| Land office | 58 m² |
What does this listing have to offer?
| Parking |
| MHD 9 minutes on foot |
What you will find nearby
Still looking for the right one?
Set up a watchdog. You will receive a summary of your customized offers 1 time a day by email. With the Premium profile, you have 5 watchdogs at your fingertips and when something comes up, they notify you immediately.











