
Flat to rent 4+1 • 118 m² without real estateJahnstraße 7 Osnabrück Osnabrück Niedersachsen 49080
Jahnstraße 7 Osnabrück Osnabrück Niedersachsen 49080Public transport 1 minute of walkingFirst-class location meets abundant space: This 118 m², 4-room apartment on the first floor at Jahnstraße is the perfect base for an exclusive shared living arrangement or refined living. Centrally located, quiet, and with a large balcony – a rare opportunity!
PROPERTY DESCRIPTION:
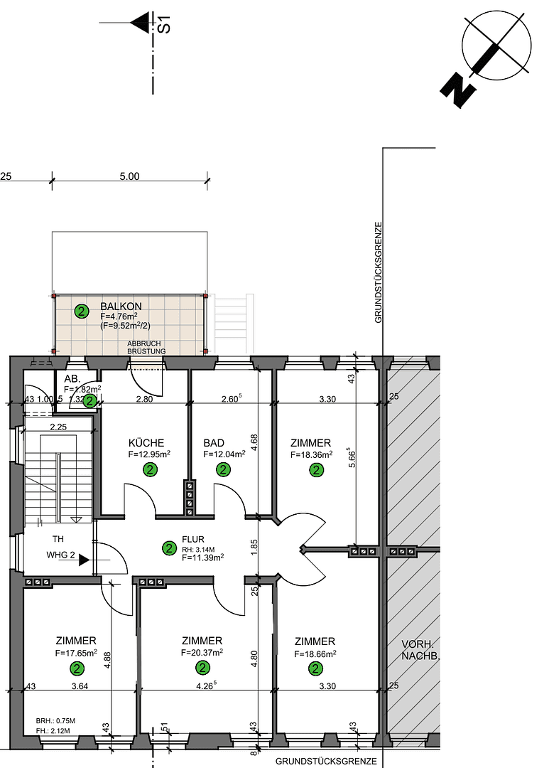
Live where Osnabrück is at its best. This apartment impresses with an excellent layout: four separately accessible rooms make it the ideal property for establishing a high-quality shared flat, or perfect for a family or couples who desire plenty of space. The beautiful original hardwood floors combined with the high ceilings give the apartment an elegant character, perfectly complemented by the peaceful setting on a side street (Jahnstraße). After university or work, there’s no better way to relax than on the large balcony (10 m²) – a luxury hardly anyone in this central location enjoys. Short distances to the faculties, the city center, and the trendy cafés of the Wüste make this property a true advantage in terms of location.
About the Balcony:
In March, the current kitchen window will be replaced with a balcony, and subsequently a 10 m² balcony will be added.
FEATURES:
• Area: Generous 118 m² of living space
• Rooms: 4 rooms + kitchen with storage room + bathroom
• Outdoor: Large 10 m² balcony
• Charm: Beautiful original hardwood floors & vintage building flair
• Location: Prime micro-location in the Wüste (Jahnstraße), quiet & central
• Floor: Comfortable living on the 1st floor
• Kitchen: A new kitchen was installed 2 years ago, which is rented for a monthly fee of €50 (excluding refrigerator).
(The washing machine will be removed and replaced by a 60 cm deep chest of drawers).
Otherwise, the apartment is handed over completely empty. If desired, individual pieces of furniture can be taken over from the previous tenant.
The rent is structured as follows:
• Cold rent (apartment): €1,200.00
• Advance payment for operating costs: €130.00
• Advance payment for heating costs: €200.00
• Total rent (all-inclusive): €1,530.00
*Optional: Separate cellar room available for rent (€40 per month).
Availability:
The apartment can be rented on short notice starting from March 1, 2026. The latest move-in date should be April 1, 2026.
Please feel free to arrange a viewing appointment and see for yourself this dream home.
To ensure that we consider your inquiry, please be sure to provide the following information:
- Full names + age
- Occupations + household net income
- How many people will be moving in
- Planned/possible move-in date
We look forward to your inquiry.
To ensure that we consider your inquiry, please be sure to provide the following information:
- Full names + age
- Occupations + household net income
- How many people will be moving in
- Planned/possible move-in date
We look forward to your inquiry.
Property characteristics
| Age | Over 5050 years |
|---|---|
| Condition | After reconstruction |
| Floor | 1. floor |
| Usable area | 118 m² |
| Available from | 01/03/2026 |
|---|---|
| Layout | 4+1 |
| Listing ID | 991531 |
| Price per unit | €10 / m2 |
What does this listing have to offer?
| Balcony | |
| MHD 1 minute on foot |
| Basement |
What you will find nearby
Still looking for the right one?
Set up a watchdog. You will receive a summary of your customized offers 1 time a day by email. With the Premium profile, you have 5 watchdogs at your fingertips and when something comes up, they notify you immediately.



















