House to rent 4+1 • 128 m² without real estate, North Rhine-Westphalia
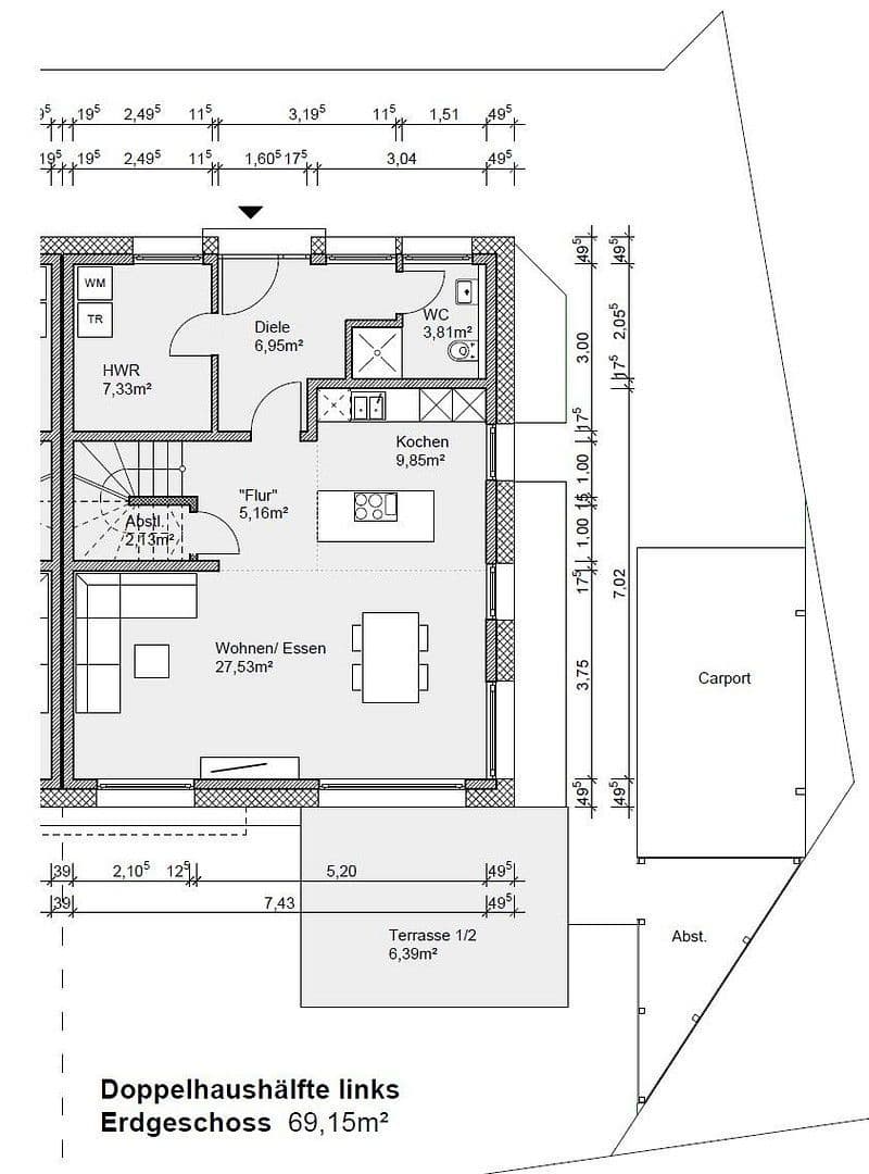
, North Rhine-WestphaliaPublic transport 2 minutes of walking • ParkingThe semi-detached house with 128 sqm of living space was built in 2023 in a quiet, south-facing location near the city center on a 295 sqm plot as a KfW energy-saving house with an integrated, far-reaching garden view. It offers 4 rooms with a modern layout, meaning that the kitchen area is integrated into the living-dining room.
From the living-dining room (42 sqm) with floor-to-ceiling windows, you can access the spacious south terrace (19 sqm) leading to the integrated, approximately 80 sqm south garden. On the ground floor, adjacent to the generous entrance area, there is also a guest WC with a comfort shower and a large storage room.
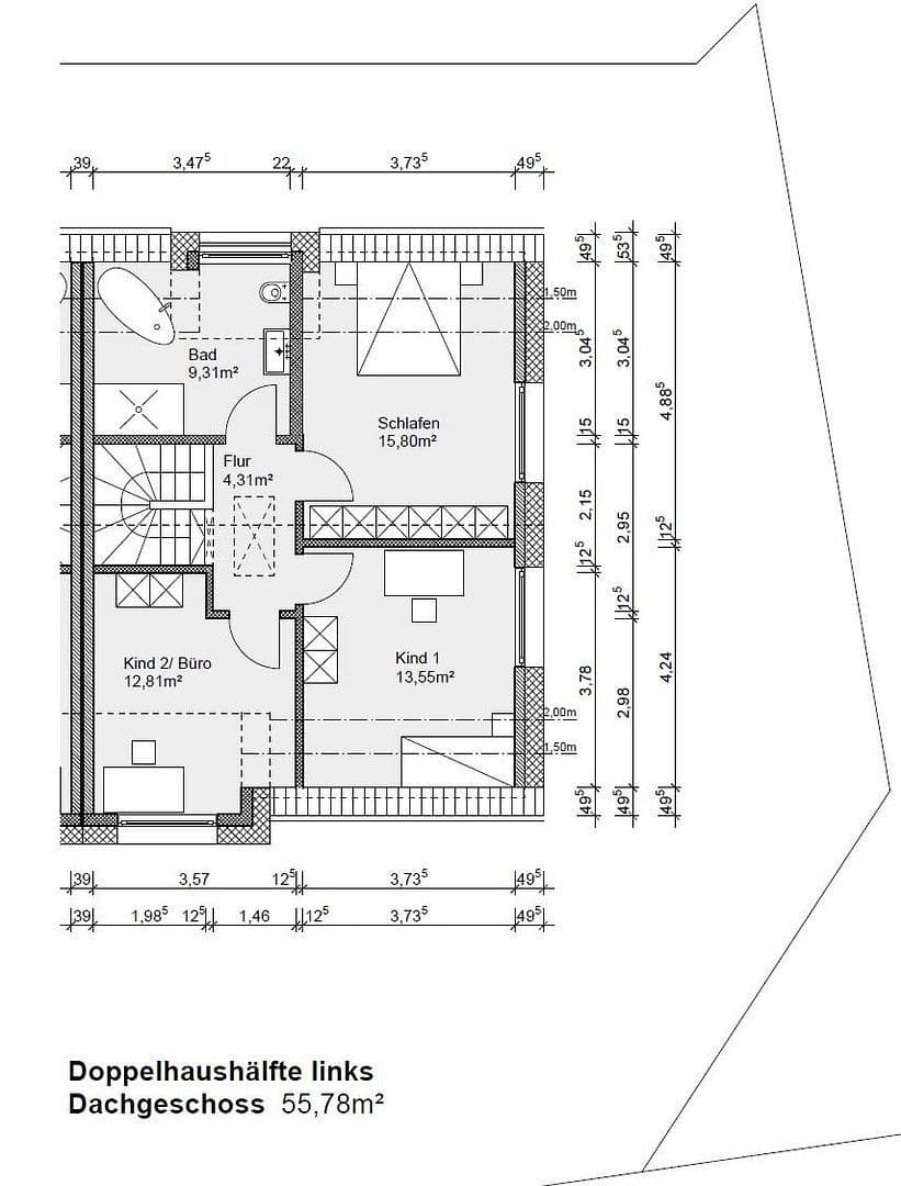
The oak solid wood staircase leads to the upper floor with 3 bedrooms and a wellness bathroom featuring a freestanding bathtub and a walk-in shower. The large attic offers plenty of fully insulated storage space – the semi-detached house does not have a basement.
In this KfW 40 energy-saving house, light gray tiles in an elegant natural stone look are laid over underfloor heating throughout, and they are also featured on the bathroom walls. Heating is provided by ecologically generated district heating. Electrically operated external roller shutters in the living areas and roller blinds in the bedrooms provide shading.
Externally, the semi-detached house is complemented by a stylish winged carport, an additional parking space in front, and a separate storage room for bicycles and gardening tools.
Hiddesen offers excellent infrastructure with numerous shopping opportunities, doctors, and schools. The connection to public transport is well developed, and the surrounding green areas invite you to enjoy recreational activities. Detmold combines urban living with nature-oriented leisure possibilities.
Property characteristics
| Age | Over 5050 years |
|---|---|
| Condition | Very good |
| Listing ID | 991279 |
| Usable area | 128 m² |
| Total floors | 2 |
| Available from | 01/06/2026 |
|---|---|
| Layout | 4+1 |
| EPC | A - Extremely economical |
| Land space | 295 m² |
| Price per unit | €15 / m2 |
What does this listing have to offer?
| Parking | |
| Terrace |
| MHD 2 minutes on foot |
What you will find nearby
Still looking for the right one?
Set up a watchdog. You will receive a summary of your customized offers 1 time a day by email. With the Premium profile, you have 5 watchdogs at your fingertips and when something comes up, they notify you immediately.



















