

Flat to rent 4+1 • 100 m² without real estateMülheim Nordrhein-Westfalen 45481
Mülheim Nordrhein-Westfalen 45481Public transport 1 minute of walkingMonthly rent€750
+ Service charges€350
Property characteristics
| Age | Over 5050 years |
|---|---|
| Layout | 4+1 |
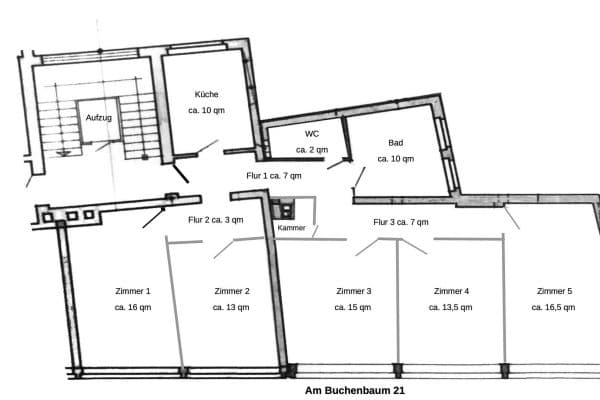
| Usable area | 100 m² |
| Available from | 15/05/2026 |
|---|---|
| Listing ID | 991148 |
| Price per unit | €8 / m2 |
What does this listing have to offer?
| MHD 1 minute on foot |
What you will find nearby
Public transportMerziger Straße
🚶 81 m (1 min)
Post officeSchreibwaren Gedek
🚶 459 m (6 mins)
ShopHemmerle
🚶 309 m (4 mins)
BankDeutsche Bank
🚶 342 m (4 mins)
RestaurantTrattoria Fati
🚶 237 m (3 mins)
PharmacySaarner Apotheke
🚶 271 m (3 mins)
SchoolBerufskolleg Lehnerstraße
🚶 556 m (7 mins)
KindergardenKindergarten Langenfeldstraße
🚶 117 m (1 min)
Sports field
🚶 685 m (8 mins)
Playground
🚶 203 m (2 mins)
How far to…:
Monthly rent€750
+ Service charges€350
Still looking for the right one?
Set up a watchdog. You will receive a summary of your customized offers 1 time a day by email. With the Premium profile, you have 5 watchdogs at your fingertips and when something comes up, they notify you immediately.