Flat for sale 3+kk • 200 m² without real estatePforzheim Hohenwart Baden-Württemberg 75181
Arrive. Take a deep breath. Feel at home.
This extraordinary ground-floor loft apartment is designed for those who want to live spaciously, comfortably, and in harmony with nature – without sacrificing good transportation links and everyday practicality.
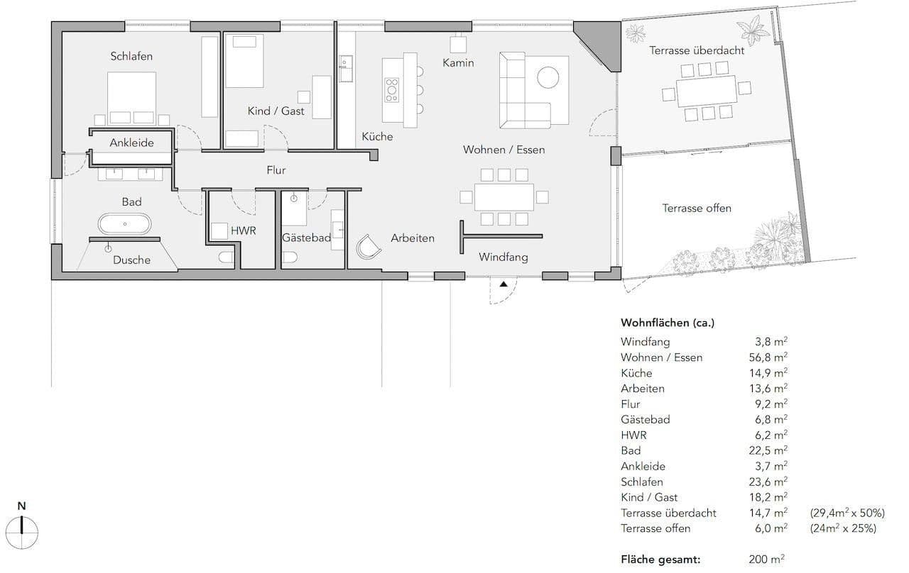
You can reach the recessed, tranquil loft via the courtyard driveway. Upon entering through your private entrance, an open, light-filled living concept unfolds over approximately 200 m² of living space. With ceilings reaching about 3 meters high, large glass surfaces, and plenty of room for personalized living, the spaces for living, dining, cooking, and working flow seamlessly into one another. The wood-burning stove creates a warm atmosphere, while the high-quality furnishings contribute to a distinctly pleasant living experience.
All on one level: A peaceful bedroom with a dressing room and en-suite bathroom forms the private retreat. An additional room with its own shower room is ideally suited as a guest room, youth room, or office. A separate utility room completes the thoughtful layout.
A special highlight is the partly covered, sheltered terrace – nearly usable year-round and serving as a natural extension of outdoor living.
Two cars can be parked conveniently in the double garage directly opposite the entrance. The inclusion of a wallbox and a photovoltaic system underscores the modern, comfort-focused nature of this home.
A home for those who value quality of life and who consciously appreciate space, tranquility, and comfort.
Hohenwart, a district south of Pforzheim, is quiet and green, yet well connected. Nature, hiking, and leisure opportunities begin right at your doorstep, while shopping, medical care, and the cities of Pforzheim, Karlsruhe, and Stuttgart are easily accessible.
The area is idyllic and family-friendly, situated on the edge of the Northern Black Forest. The surroundings are characterized by green meadows, forests, and charming hiking trails that invite strolls and outdoor activities. The spa towns of Bad Liebenzell, Bad Wildbad, Bad Herrenalb, or Schömberg are right at your doorstep. A particular highlight for golf enthusiasts is the Bad Liebenzell Golf Club, which can be reached within 15 minutes by car. A kindergarten, primary school, a village shop, a country inn, and the “Hohenwart Forum” (hotel and conference center) are all located in the village.
Doctors and all daily necessities can be found in the neighboring communities of Huchenfeld, Schellbronn, or Neuhausen – all reachable within about 10 minutes by car. Downtown Pforzheim is only a short bus or car ride away, offering a wide range of shopping, restaurants, cultural experiences, sports facilities, and comprehensive medical services. All types of schools are available here, as well as the University of Economics, Technology, and Design.
• Privacy thanks to the recessed location and private entrance
• Barrier-free, open, and modern living
• Loft feeling with a ceiling height of approximately 3 m
• Large living/dining/kitchen area with oak parquet flooring
• “Hotbox” wood-burning stove by Wodtke
• Modern fitted kitchen with high-quality branded appliances
• Double garage with wallbox for electric car
• Separate guest bathroom with shower
• Utility room for washing machine and dryer
• Electric shutters
• Terrace with a large covered and laterally sheltered section
• 8.2 kWp photovoltaic system
• Basement room with 7 m²
Modernizations
2010: Complete renovation and conversion to a loft apartment
2015: Replacement of the oil central heating system with a gas heating system
2021: Renovation of the entire courtyard and garage driveway
2021: Redesign of the terrace (board flooring, partition walls)
2021: New front door with improved thermal and burglary protection
2021: Installation of a wallbox in the double garage (11 kW)
2022: Renovation of the guest bathroom
2023: Commissioning of the photovoltaic system (8.2 kWp)
Maintenance cost:
At 879 Euros per month, the maintenance fee may initially seem somewhat high. However, when related to the generous living area, it amounts to 4.39 Euros per m², which is in line with modern condominiums.
Property characteristics
| Age | Over 5050 years |
|---|---|
| Layout | 3+kk |
| EPC | D - Less economical |
| Price per unit | €2,925 / m2 |
| Condition | Good |
|---|---|
| Listing ID | 990725 |
| Usable area | 200 m² |
What does this listing have to offer?
| Basement | |
| MHD 0 minutes on foot |
| Garage | |
| Terrace |
What you will find nearby
Still looking for the right one?
Set up a watchdog. You will receive a summary of your customized offers 1 time a day by email. With the Premium profile, you have 5 watchdogs at your fingertips and when something comes up, they notify you immediately.














