Flat for sale 5+1 • 85 m² without real estateHamburg Horn Hamburg 22111
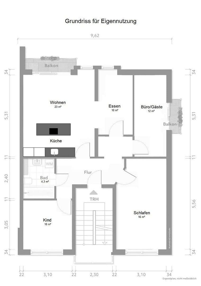
Hamburg Horn Hamburg 22111Public transport 4 minutes of walkingFor sale is an extensively modernized 5-room condominium with two balconies that is suitable for both owner-occupancy and investment purposes (see Floor Plan No. 2). The recently completed renovations included a complete redesign of the apartment, including the bathroom and kitchen—with features such as newly plastered and polished walls, large-format tiles (60x120 cm and 80x80 cm), and LED ceiling spotlights in the hallway and bathroom. The new, open kitchen is equipped with modern handleless facades, a dishwasher, an induction cooktop, a refrigerator/freezer combination, an oven set at a modern height, and much more.
The monthly condominium fee is currently temporarily increased to €574 until approximately 2027, as the homeowners’ association is saving for a planned balcony renovation. Afterwards, the fee will revert to the normal €308, which covers all usual items such as reserve funds, management fees, heating costs, and other operating expenses.
The building, constructed in 1958, is in well-maintained condition, with many owners living in it themselves and consistently keeping it in good repair.
The condominium is located in the Hamburg Horn district. Daily necessities can be found in the immediate vicinity. The U-Bahn station Legienstraße (serving U2/U4) is only a 12-minute walk away, and the journey to the city center (main train station) takes just an additional 12 minutes. The central location also makes the route easily accessible by bicycle.
Property characteristics
| Age | Over 5050 years |
|---|---|
| Condition | After reconstruction |
| Listing ID | 990343 |
| Price per unit | €4,588 / m2 |
| Available from | 15/02/2026 |
|---|---|
| Layout | 5+1 |
| Usable area | 85 m² |
What does this listing have to offer?
| Balcony |
| MHD 4 minutes on foot |
What you will find nearby
Still looking for the right one?
Set up a watchdog. You will receive a summary of your customized offers 1 time a day by email. With the Premium profile, you have 5 watchdogs at your fingertips and when something comes up, they notify you immediately.













