House for sale 5+1 • 142 m² without real estateHohenaschau Bayern 83229
Hohenaschau Bayern 83229Public transport 1 minute of walking • GarageYou’re not just looking for a house, but a true home—a little fortress set amidst unspoiled nature, offering space for tranquility, activity, and quality of life. Welcome to beautiful Upper Bavaria, welcome to Chiemgau, welcome to your new home.
The semi-detached house (built in 2005) is nestled in a dreamy, quiet setting—with direct access to the mountains. Whether on foot or by mountain bike, you step out of your front door directly into your escape.
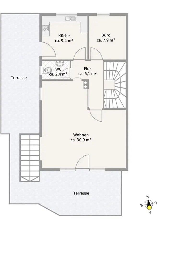
142 m² of living space | 290 m² of land | Garage + Hobby Room | Open exposed wooden ceiling in a country-house style | Fitted kitchen | Spacious bathroom with shower & bathtub | Underfloor heating | and much more.
This semi-detached house delights with its loving details, Alpine charm, and a unique living experience – whether as a family nest, a retreat, or a stylish home base right in the heart of the Chiemgau. Here, location, style, and substance are perfectly in tune. It’s also ideal as an investment property or for living and working under one roof.
Schedule a viewing now, experience the tranquility, take a deep breath—and move in immediately if you wish.
Overview of the house:
• 142 m² of living space – spacious, bright, and thoughtfully designed
• 290 m² property with a garden and 2 terraces in a dreamlike, peaceful setting
• Pure country-house style – featuring an open, rustic wooden ceiling as a highlight
• Hobby room & garage – plenty of room for leisure, a workshop, or storage
• Direct access to nature – with mountains, lakes, and fresh air included
Property characteristics
| Age | Over 5050 years |
|---|---|
| Condition | Very good |
| Listing ID | 990082 |
| Usable area | 142 m² |
| Total floors | 3 |
| Available from | 23/02/2026 |
|---|---|
| Layout | 5+1 |
| EPC | D - Less economical |
| Land space | 290 m² |
| Price per unit | €5,620 / m2 |
What does this listing have to offer?
| Balcony | |
| MHD 1 minute on foot |
| Garage | |
| Terrace |
What you will find nearby
Still looking for the right one?
Set up a watchdog. You will receive a summary of your customized offers 1 time a day by email. With the Premium profile, you have 5 watchdogs at your fingertips and when something comes up, they notify you immediately.









