House for sale 6+1 • 200 m² without real estateNiederwihl 95, , Baden-Württemberg
Niederwihl 95, , Baden-WürttembergPublic transport 3 minutes of walking • Parking • GarageThis inviting single-family home offers approximately 200 m² of living space and a generous plot of 713 m², creating ideal conditions for comfortable living. The property is located in the quiet area of Görwihl-Niederwihl and impresses with its well-thought-out layout as well as its diverse range of usage possibilities – perfect for families, multi-generational living, or as a relaxed summer residence.
A special highlight is the separately accessible accessory apartment, which is ideal as a holiday home, guest area, or for long-term rental. This feature provides you with additional flexibility and attractive opportunities for use.
The property is situated on a desirable sloping site that spans two levels, giving the outdoor area a distinctive structure and spaciousness. The upper level is perfect for a terrace, garden, or cozy seating areas, while the lower level offers extra space for leisure, play, or your own creative design ideas. In this way, a varied outdoor area with plenty of potential is created.
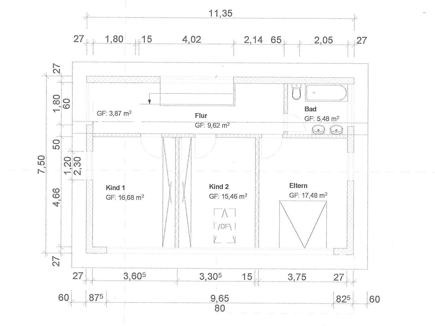
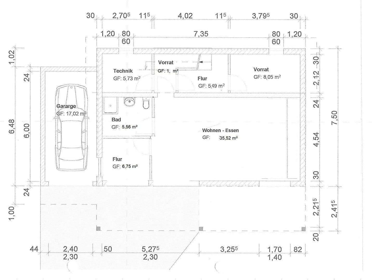
Across three floors, you will find 6 well-proportioned rooms and 3 bathrooms that provide a high level of living comfort. A guest WC sensibly complements the available space. Additionally, a basement room provides extra storage and practically extends the usable space.
The interior is well-maintained and offers a solid foundation for implementing your own ideas and modernization wishes. Large windows ensure bright, friendly rooms and a pleasant living atmosphere.
The property is available for handover immediately.
This is a house full of charm, space, and potential – ideal for anyone looking for a versatile home with an additional rental option.
Görwihl is a rural community in the Waldshut district that offers a peaceful, nature-oriented living environment with high recreational value. The surrounding landscape invites you to a variety of leisure activities such as hiking, cycling, and leisurely walks.
Local daily needs are covered by shops in the immediate vicinity. Moreover, there is good access to public transportation: local bus lines reliably connect Görwihl with nearby towns and regional centers.
A particular advantage is its proximity to the Swiss border, which is only about 8 km away. This means you benefit from short trips into Switzerland – ideal for commuters or leisure activities in the neighboring country.
Both the main living area and the accessory apartment each feature a modern fitted kitchen.
To create a cozy atmosphere, both units are equipped with high-quality wood-burning stoves that provide comforting warmth on cool days and lend an inviting character to the living spaces.
Another plus is the available fiber optic connection, which enables a fast and stable internet connection – perfect for home office use, streaming, or the digital rental of the accessory apartment.
Property characteristics
| Age | Over 5050 years |
|---|---|
| Layout | 6+1 |
| EPC | D - Less economical |
| Land space | 713 m² |
| Price per unit | €2,850 / m2 |
| Condition | Good |
|---|---|
| Listing ID | 990005 |
| Usable area | 200 m² |
| Total floors | 3 |
What does this listing have to offer?
| Balcony | |
| Garage | |
| MHD 3 minutes on foot |
| Basement | |
| Parking | |
| Terrace |
What you will find nearby
Still looking for the right one?
Set up a watchdog. You will receive a summary of your customized offers 1 time a day by email. With the Premium profile, you have 5 watchdogs at your fingertips and when something comes up, they notify you immediately.

















