
Flat to rent 2 bedroom • 62 m² without real estatePříbramská, Verneřice - Verneřice, Ústecký Region
Příbramská, Verneřice - Verneřice, Ústecký RegionPartially equipped • Parking • Cellar 3 m² • Loggia 3 m²Liability insurance requiredVerification of debt-free status requiredInterested?
Communicate all private owners and save CZK 10,500 on commissions.
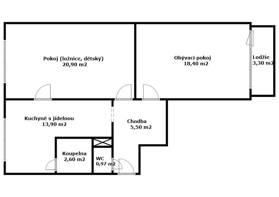
K dlouhodobému pronájmu nabízím světlý byt 2+1 o podlahové ploše 62,30 m2 s lodžií a krásným výhledem do okolní krajiny. Byt se nachází ve 3. NP bytového domu bez výtahu. V letech 2022-2023 prošel dům celkovou revitalizací, která zahrnovala novou zateplenou fasádu, výměnu oken za trojskla, nové vchody a kompletní nové rozvody vody a odpadů.
Obývací pokoj s lodžií o velikosti 3,30 m2 je orientován na jih, kuchyně a ložnice jsou orientovány na sever. Ložnice je prostorná a nabízí možnost variabilního využití prostoru - při vhodném rozmístění nábytku nebo použití pokojového paravanu lze vytvořit útulný oddělený koutek pro více soukromí. WC samostatné, koupelna osazena vanou.
K bytu náleží sklepní kóje. Parkování je možné na ulici před domem.
Verneřice nabízejí velmi dobrou občanskou vybavenost (MŠ, ZŠ, BUS, zdravotní středisko, potraviny, restaurace, řeznictví, pošta, bankomat, Městský úřad, sportovní klub, posilovna i dětská hřiště).
Vzdálenost do okolních měst: Děčín 21 km, Litoměřice 22 km, Česká Lípa 23 km, Ústí nad Labem 27 km.
Byt bude k dispozici cca od poloviny února.
Hledáme spolehlivého a slušného nájemce.
Property characteristics
| Available from | 15/02/2026 |
|---|---|
| Building construction | Precast concrete |
| Fully furnished | Partly |
| Listing ID | 989849 |
| Usable area | 62 m² |
| Condition | Very good |
|---|---|
| Layout | 2 bedroom |
| Floor | 3. floor out of 3 |
| Location | Quiet area |
| Price per unit | CZK 169 / m2 |
What does this listing have to offer?
| Basement: 3 m² | |
| Parking |
| Loggia balcony: 3 m² |
What you will find nearby
Interested?
Communicate all private owners and save CZK 10,500 on commissions.
Still looking for the right one?
Set up a watchdog. You will receive a summary of your customized offers 1 time a day by email. With the Premium profile, you have 5 watchdogs at your fingertips and when something comes up, they notify you immediately.




















