
Commercial property to rent • 126 m² without real estateŠtěpánská, Prague - Nové Město
Interested?
Communicate all private owners and save CZK 126,000 on commissions.
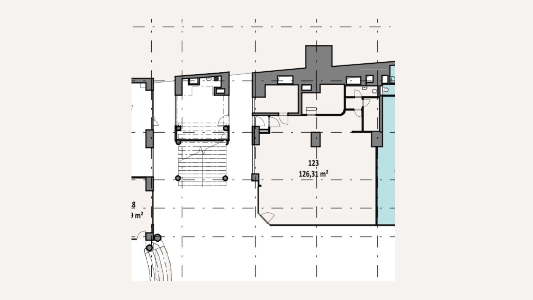
PALÁC LUCERNA - LUKRATIVNÍ OBCHODNÍ JEDNOTKA K PRONÁJMU. Po více než 30 letech se uvolnil prestižní prostor v centrální části pasáže Lucerna – na jednom z nejatraktivnějších a nejfrekventovanějších míst celé pasáže. Tento prostor byl dlouhodobě domovem prodejny s vínem a my bychom rádi našli nájemce, který by v této zavedené tradici pokračoval. Obchodní jednotka má celkovou výměru 126,3 m² a nachází se v hlavním tahu pasáže s vysokou průchodností a výbornou viditelností. Termín dostupnosti prostor je od 1. 3. 2026. Prostor je vhodný pro i jako POP-UP koncept. V případě Vašeho zájmu se s Vámi rádi domluvíme na osobní prohlídce prostor.
Property characteristics
| Available from | 01/03/2026 |
|---|---|
| Building construction | Skeleton |
| Listing ID | 989848 |
| Location of the commercial space | Corner |
| Land non-residential space | 126 m² |
| Condition | Good |
|---|---|
| Fully furnished | Unfurnished |
| EPC | G - Extremely uneconomical |
| Location | Centre |
| Price per unit | CZK 1,000 / m2 |
What you will find nearby
Interested?
Communicate all private owners and save CZK 126,000 on commissions.
Still looking for the right one?
Set up a watchdog. You will receive a summary of your customized offers 1 time a day by email. With the Premium profile, you have 5 watchdogs at your fingertips and when something comes up, they notify you immediately.



