House to rent 3+1 • 73 m² without real estateOldenburg Oldenburg (Oldb) Niedersachsen 26133
Oldenburg Oldenburg (Oldb) Niedersachsen 26133Public transport less than a minute of walking • ParkingAvailable Immediately!
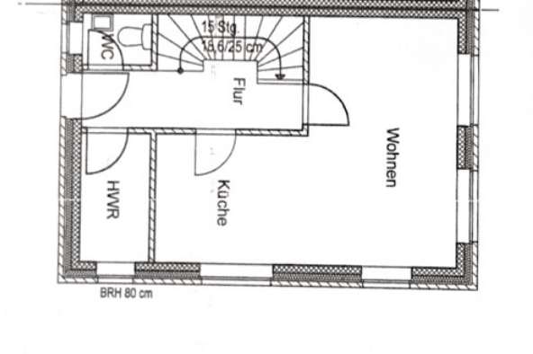
A well-maintained semi-detached house with approximately 73 m² of living space is available for rent in a quiet residential area of Oldenburg (26133).
The house spans the ground floor and the attic level, offering a pleasant, independent living experience.
On the ground floor, you will find an open-plan living and dining area with an integrated kitchen, as well as a guest WC. From here, access to the terrace is available.
The attic level features a bedroom, an additional room (e.g., office or guest room), as well as a bathroom with daylight and a shower.
Additionally, there is an attic space available which can be used for storage.
The semi-detached house is located in a quiet residential area in the Oldenburg district of Kreyenbrück (ZIP code 26133). The surroundings are characterized by single-family and semi-detached houses along with well-maintained residential buildings, offering a pleasant, time-developed living environment.
Everyday shopping facilities, supermarkets, bakeries, pharmacies, as well as doctors are all within short distance. Schools, kindergartens, and sports and leisure facilities are also easily accessible. Several bus lines ensure good connections to Oldenburg city center and other districts.
Oldenburg Clinic is reachable within minutes, making the location particularly attractive for those working in the medical field. The combination of quiet living, urban infrastructure, and good accessibility offers a high quality of life.
The semi-detached house features solid and well-maintained finishes. The ground floor is fitted with low-maintenance tiles, while the attic level is carpeted. The rooms are bright and functionally laid out.
The open-plan living and dining area with an integrated kitchen serves as the central living area of the house. A fitted kitchen is available. Additionally, there is a separate guest WC on the ground floor. The bathroom on the attic level is equipped with a shower and daylight.
The windows are fitted with roller shutters that provide privacy and sun protection. The house is heated by a gas central heating system. The property also includes a terrace with privacy screening as well as a parking space right by the house.
Property characteristics
| Age | Over 5050 years |
|---|---|
| Condition | Good |
| Listing ID | 988968 |
| Usable area | 73 m² |
| Total floors | 2 |
| Available from | 09/02/2026 |
|---|---|
| Layout | 3+1 |
| EPC | B - Very economical |
| Land space | 222 m² |
| Price per unit | €13 / m2 |
What does this listing have to offer?
| Parking | |
| Terrace |
| MHD 0 minutes on foot |
What you will find nearby
Still looking for the right one?
Set up a watchdog. You will receive a summary of your customized offers 1 time a day by email. With the Premium profile, you have 5 watchdogs at your fingertips and when something comes up, they notify you immediately.














