Office to rent • 85 m² without real estateLübecker Straße 25-27 Schwerin - Altstadt Altstadt Mecklenburg-Vorpommern 19053
Lübecker Straße 25-27 Schwerin - Altstadt Altstadt Mecklenburg-Vorpommern 19053Public transport 2 minutes of walking • Lift • ParkingThe commercial space on offer is located in the attractive old town of Schwerin – Lübecker Straße 25-27.
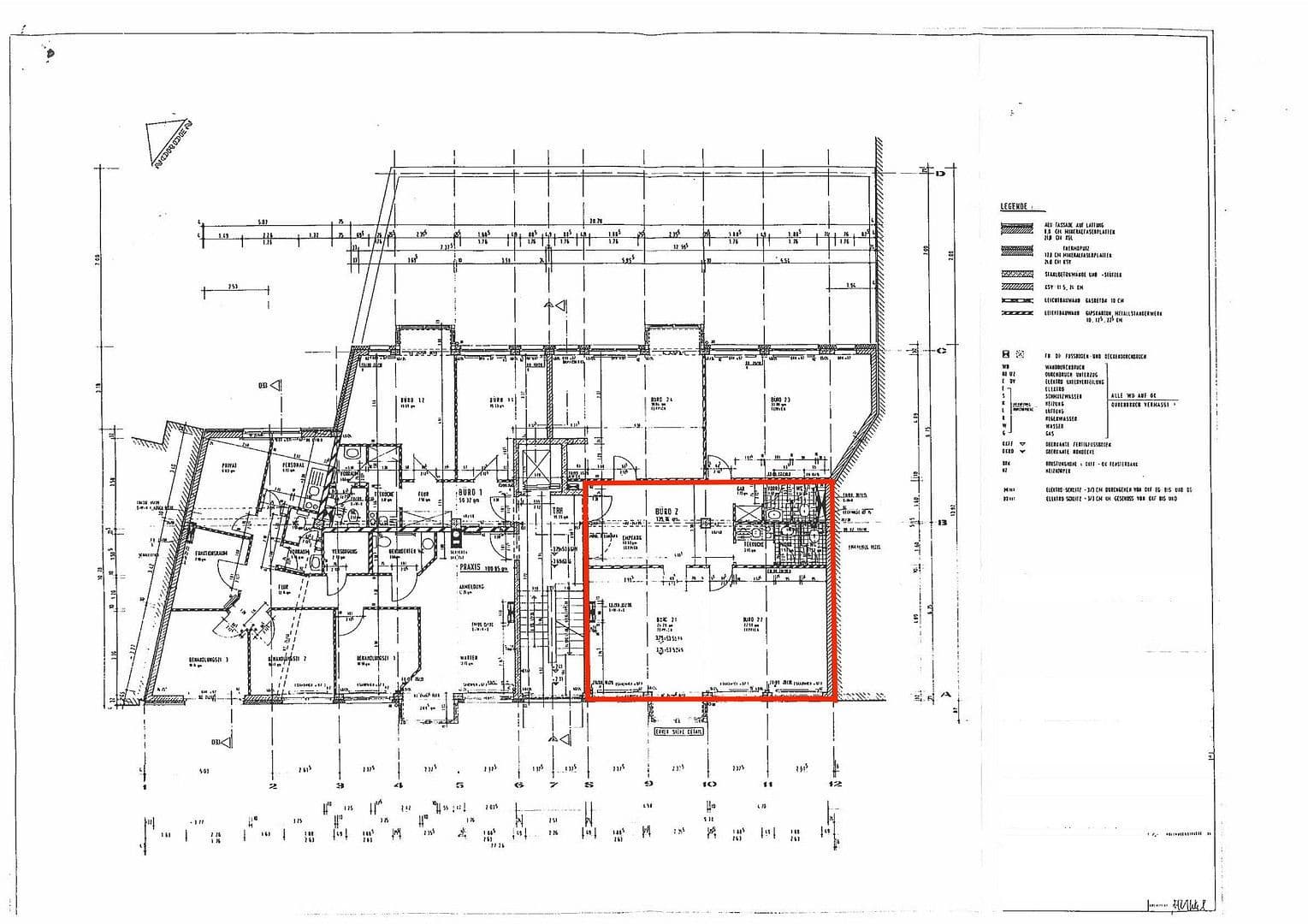
Available for rent is a commercial unit (approximately 85 m²).
The unit is ideally suited for office, practice, or service use, and impresses with its functional layout as well as its well-maintained facilities.
The space can be individually designed.
The unit is located right in the center of Schwerin, offering a very central location.
• Short distances to excellent infrastructure
• 5 minutes on foot – Marienplatz Galerie
• 5 minutes on foot – Schwerin Central Station
• 2 minutes on foot – Schlosspark-Center
• 2 minutes on foot – City Center
• 8 minutes on foot – Schlossinsel Schwerin
Bakery, supermarkets, savings bank, discount stores… everything is nearby.
The unit is located on the 1st floor and is accessible by an elevator (barrier-free).
The unit features two separate, tiled sanitary areas – a men's toilet and a women's toilet. This provides both employees and customers or patients with a high level of comfort and meets all requirements for modern commercial use.
A special feature of this unit is its flexible room design:
Originally, the main area was divided into two rooms by a partition wall with two separate doors. This partition wall has been removed, creating a spacious, open area – ideal for concepts that require ample space. The two doors remain, however, allowing for an uncomplicated restoration of the original room layout if needed.
Property characteristics
| Age | Over 5050 years |
|---|---|
| Condition | Very good |
| Listing ID | 988593 |
| Price per unit | €8 / m2 |
| Available from | 07/02/2026 |
|---|---|
| Floor | 1. floor |
| Land office | 85 m² |
What does this listing have to offer?
| Lift | |
| MHD 2 minutes on foot |
| Parking |
What you will find nearby
Still looking for the right one?
Set up a watchdog. You will receive a summary of your customized offers 1 time a day by email. With the Premium profile, you have 5 watchdogs at your fingertips and when something comes up, they notify you immediately.









