
Flat to rent 2 bedroom • 52 m² without real estateHornická, Tišnov - Tišnov, Jihomoravský Region
Interested?
Communicate all private owners and save CZK 18,000 on commissions.
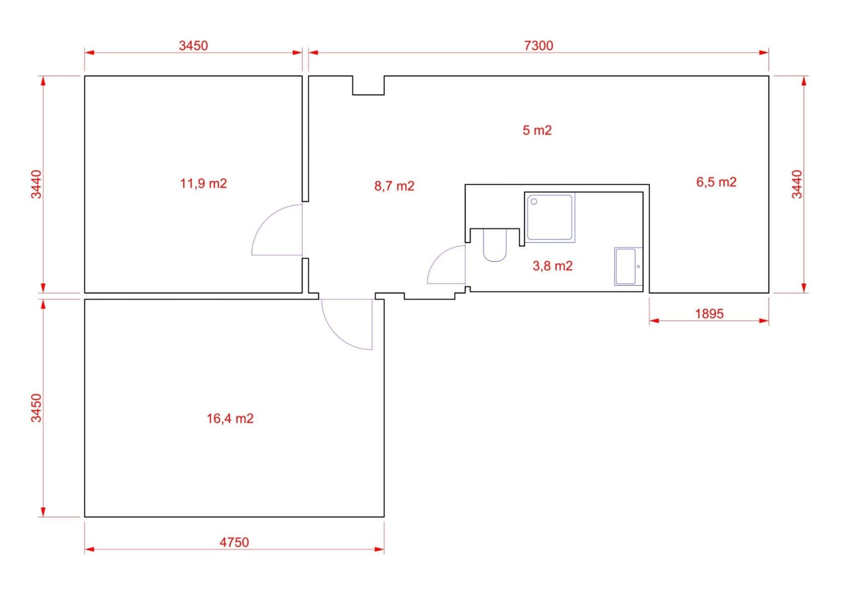
Nabízím k pronájmu nově rekonstruovaný byt 2+1 byt o rozloze 52 m², nacházející se v panelové budově se 4 podlažími. Byt je ve velmi dobrém stavu a připraven k okamžitému nastěhování. Interiér je nevybavený, což umožňuje nové majitelce nebo novému majiteli přizpůsobit prostor vlastním představám a stylu.
Dispozice bytu nabízí praktické řešení pro rodinné bydlení či mladý pár. Součástí bytu je rovněž balkon o ploše 2 m².. Pro řidiče je k dispozici venkovní parkování na přilehlé ulici.
Celková lokalita a jednoduchá dispozice panelového domu poskytují klidné a bezpečné prostředí. V případě zájmu o bližší informace či sjednání prohlídky je možné mě kontaktovat pomocí zpráv skrze komunikační platformu.
I offer for rent a newly renovated 2+1 apartment measuring 52 m², located in a panel building with 4 floors. The apartment is in excellent condition and ready for immediate move-in. The interior is unfurnished, allowing the new owner to adapt the space to their own ideas and style.
The apartment’s layout presents a practical solution for family living or a young couple. It also includes a balcony with an area of 2 m². For drivers, outdoor parking is available on the adjacent street.
The overall location and the simple layout of the panel building provide a quiet and secure environment. If you are interested in further information or in arranging a viewing, please feel free to contact me via messages through the communication platform.
Property characteristics
| Available from | 06/02/2026 |
|---|---|
| Building construction | Precast concrete |
| Fully furnished | Unfurnished |
| Listing ID | 988477 |
| Usable area | 52 m² |
| Condition | Very good |
|---|---|
| Layout | 2 bedroom |
| Floor | Ground floor |
| Location | Quiet area |
| Price per unit | CZK 346 / m2 |
What does this listing have to offer?
| Balcony: 2 m² |
| Parking |
What you will find nearby
Interested?
Communicate all private owners and save CZK 18,000 on commissions.

Flat to rentNa kovárně, Brno - Soběšice, Jihomoravský Region- 2+kk
- 50 m²
CZK 16,000 + CZK 4,000CZK 17,000
Save CZK 1,000



Still looking for the right one?
Set up a watchdog. You will receive a summary of your customized offers 1 time a day by email. With the Premium profile, you have 5 watchdogs at your fingertips and when something comes up, they notify you immediately.











