Office for sale • 739 m² without real estateDönseler Straße 4, , Lower Saxony
Spacious, renovated commercial property with office, practice, and production areas as well as an in-law apartment in Dickel.
The building was originally constructed in 1955 as a school and was comprehensively renovated in 2003.
Highlights:
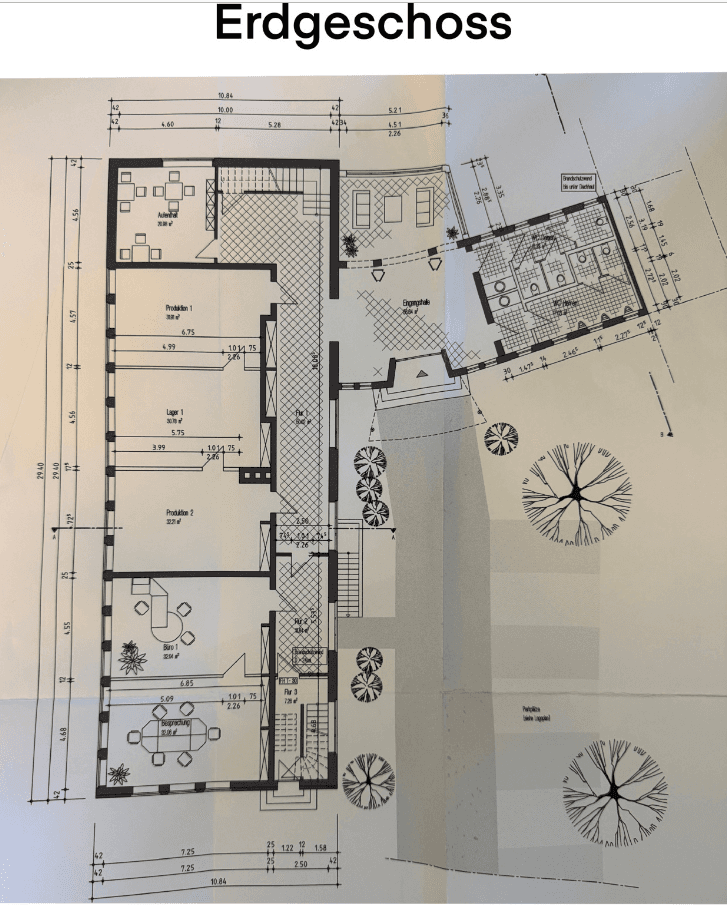
• Approximately 647 m² of office/practice space
• Approximately 92–107 m² in-law apartment
• 3 floors (basement, ground floor, upper floor)
• Central heating (gas)
• 10 parking spaces in a private courtyard
• Large plot of approximately 4,350 m²
• X‑ray protection bunker in the basement
• Attic with development potential
Ideal for companies, medical practices, production facilities, laboratories, or crafts. Flexible layout and bright spaces allow for immediate use or individual modifications. The integrated in-law apartment is suitable as an operations manager’s residence, for employees, or for separate rental.
The property is located in a quiet, rural setting in the charming town of Dickel (Lower Saxony).
Infrastructure & Surroundings:
• About 4 km to Rehden, which offers: EDEKA, ALDI, a pharmacy, and a post office
• Kindergarten and primary school nearby
• Public transportation within walking distance
• Good connections to the towns of Barnstorf and Diepholz as well as to regional motorways
• Surrounded by plenty of greenery, nature, and recreational opportunities (hiking and cycling paths)
The location combines a peaceful working environment with good accessibility for employees, customers, and suppliers.
Floors: Tiles, stone, vinyl
Sanitary facilities: Bathtub, guest WC
Kitchen: Fitted kitchen in the in-law apartment
Special features: Conservatory, terrace, garden, basement, attic, X‑ray protection bunker
Heating: Central heating, energy source: gas
Parking: 10 outdoor parking spaces
Condition: Renovated and ready for immediate use
Availability: By arrangement
Year built: 1955 (renovated in 2003)
Property size: 4,350 m², with additional development potential
Special features: In-law apartment, attic, X‑ray protection bunker
Usage: Combination of commercial and residential use possible
Online viewing available
This commercial property offers history, space, flexibility, and development potential – perfect for companies seeking a quiet location with good infrastructure.
Property characteristics
| Age | Over 5050 years |
|---|---|
| Floor | 1. floor out of 3 |
| Land office | 739 m² |
| Condition | After reconstruction |
|---|---|
| Listing ID | 988415 |
| Price per unit | €744 / m2 |
What does this listing have to offer?
| Basement | |
| MHD 2 minutes on foot |
| Parking | |
| Terrace |
What you will find nearby
Still looking for the right one?
Set up a watchdog. You will receive a summary of your customized offers 1 time a day by email. With the Premium profile, you have 5 watchdogs at your fingertips and when something comes up, they notify you immediately.
























