
Commercial property to rent • 310 m² without real estateScheffelstraße 5, , Baden-Württemberg
Scheffelstraße 5, , Baden-WürttembergPublic transport 3 minutes of walking • ParkingCommercial unit in a prime city location in Singen – available immediately
Address: 78224 Singen, pedestrian zone – commercial street in a mixed residential and commercial building
Property Details:
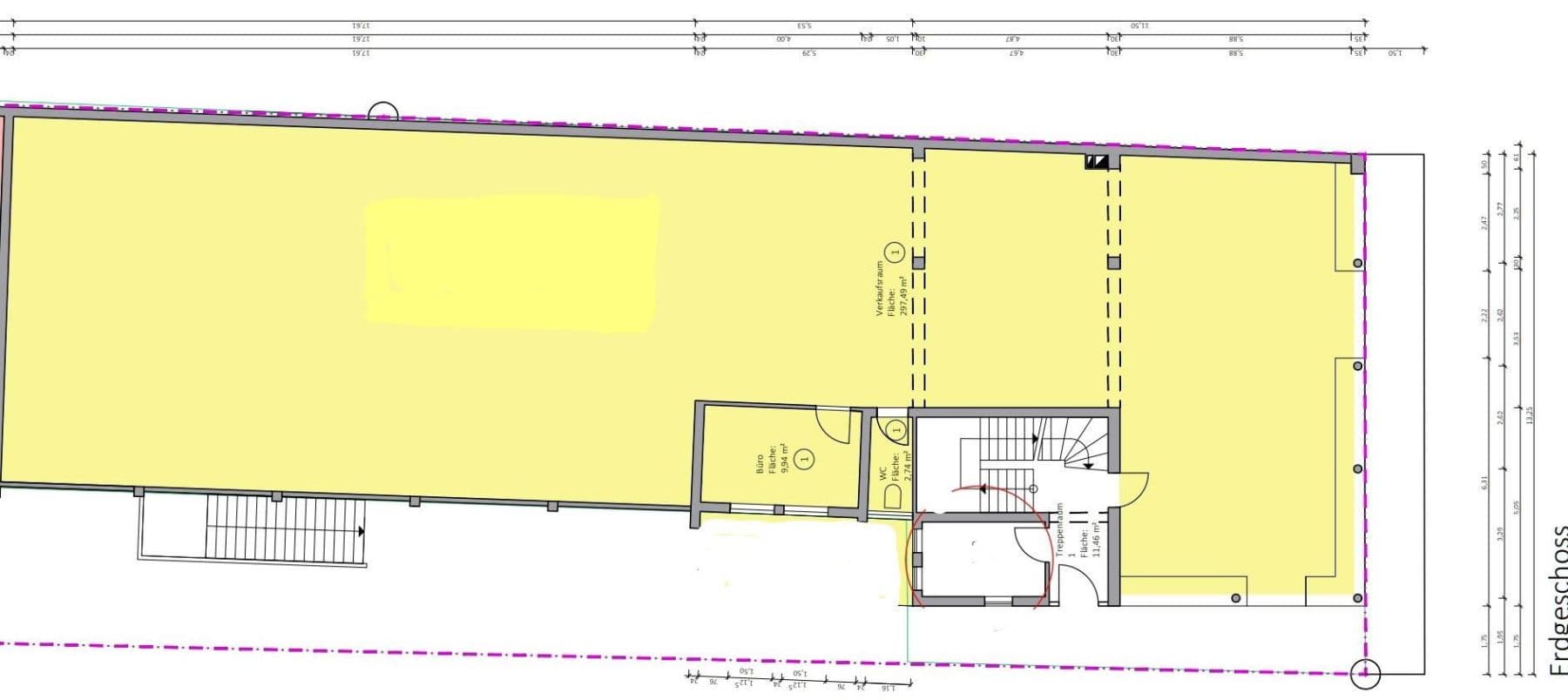
• Retail space: approx. 310 m² – spacious and flexibly usable
• Location: 1b city center in a lively pedestrian zone with high foot traffic
• Surroundings: TOP shops in the immediate vicinity – ideal for retail, services, or showroom
• Features:
- Separate kitchen, restroom, and storage area
- Large shopfront facing two sides – optimal visibility
- Laminate flooring, freshly renovated
- Pellet heating – modern, energy-efficient system
- Private parking space right at the building (Optional)
Special Features:
• Prestigious location in a well-maintained residential and commercial building
• Well-thought-out layout – many conversion options possible, e.g., for doctor's offices or physiotherapy (ideal due to barrier-free access)
• Occupancy possible – immediately or by individual arrangement
• Attractive net rent €9.90 per m² + additional costs + statutory VAT.
The commercial property is located in the absolute city center of Singen (a. Hohentwiel) in a popular pedestrian zone. It is only a 3-minute walk to both the train station and bus station!
The residential and commercial building was completely energy-renovated in 2007. Approximately 3 years ago, an interior renovation (flooring, etc.) was carried out. In 2025, the kitchen/staff room was renovated.
Property characteristics
| Age | Over 5050 years |
|---|---|
| Condition | After reconstruction |
| Land non-residential space | 310 m² |
| Available from | 01/02/2026 |
|---|---|
| Listing ID | 988414 |
| Price per unit | €0 / m2 |
What does this listing have to offer?
| Wheelchair accessible | |
| MHD 3 minutes on foot |
| Parking |
What you will find nearby
Still looking for the right one?
Set up a watchdog. You will receive a summary of your customized offers 1 time a day by email. With the Premium profile, you have 5 watchdogs at your fingertips and when something comes up, they notify you immediately.












