
Flat to rent 3+1 • 82 m² without real estateBreitenweg 1A, , Rhineland-Palatinate
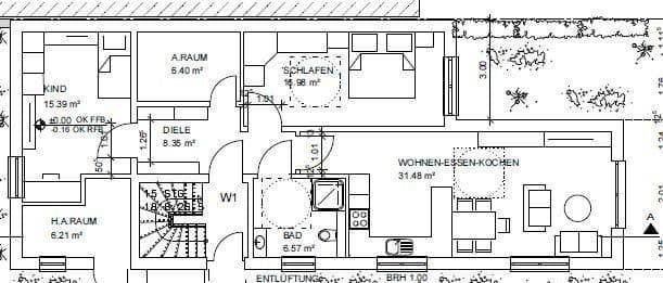
Breitenweg 1A, , Rhineland-PalatinatePublic transport 2 minutes of walking • ParkingFor rental is a high-quality 3-room new apartment on the ground floor of a modern 4-family residential building at Breitenweg 1A in Römerberg-Mechtersheim. This is a first occupancy that combines the highest living comfort with contemporary, energy-efficient construction. The barrier-free apartment offers approximately 82 m² of living space and impresses with its well-thought-out layout and very high-quality furnishings.
The apartment features a spacious living and dining area with direct access to the paved terrace, which will be completed in February. From here, there is a separate rear entrance with direct access to the parking spaces. The outdoor area is further enhanced by a small garden with an artificial turf area, providing additional space for outdoor relaxation.
The apartment boasts a high-quality bathroom equipped with a modern, accessible shower, stylish sanitary fixtures, and premium tiles, continuously upholding the high standards of comfort and functionality.
All living areas are finished with smooth walls and high-quality smooth non-woven wallpapers. Heating is provided by a modern air-water heat pump combined with underfloor heating in all rooms. Additionally, during the summer months, the underfloor heating can be used to temperate the cooling of the rooms. Triple-glazed windows and electric shutters in all rooms ensure high living comfort, an energy efficiency rating of A+, and a pleasant indoor climate. A modern video intercom system further enhances security and comfort.
The apartment is equipped with modern digital water and heat meters, allowing all consumption to be monitored transparently and conveniently via an app.
Parking spaces are available for separate rental if needed, charged at €50.00 per parking space per month, with the option to rent one or two spaces.
The location in Römerberg-Mechtersheim is characterized by a quiet and well-maintained residential environment that still offers excellent infrastructure. Shops, doctors, pharmacies, as well as kindergartens and schools, are all within short reach. The area is marked by abundant greenery, fields, and the nearby Rhine meadows, which invite for walks and recreational activities. A popular bathing lake is located in the immediate vicinity, offering high-quality leisure and relaxation, especially during the summer months. At the same time, there are good transport connections towards Speyer, Germersheim, Ludwigshafen, and Mannheim, making the apartment extremely attractive for commuters.
Property characteristics
| Age | Over 5050 years |
|---|---|
| Condition | New-build |
| Listing ID | 988273 |
| Usable area | 82 m² |
| Available from | 01/04/2026 |
|---|---|
| Layout | 3+1 |
| EPC | A - Extremely economical |
| Price per unit | €15 / m2 |
What does this listing have to offer?
| Parking | |
| Terrace |
| MHD 2 minutes on foot |
What you will find nearby
Still looking for the right one?
Set up a watchdog. You will receive a summary of your customized offers 1 time a day by email. With the Premium profile, you have 5 watchdogs at your fingertips and when something comes up, they notify you immediately.









