
Flat to rent 1 bedroom • 25 m² without real estate, Hesse
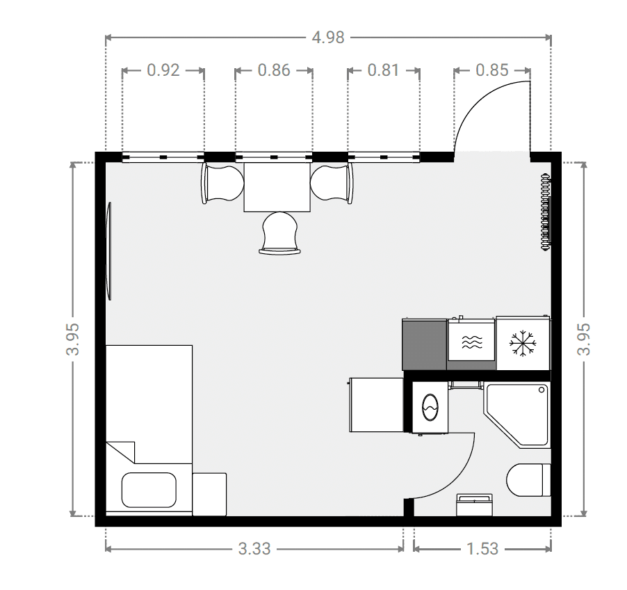
The apartment is situated in a unique location on Calvinstraße, within walking distance to the old town. Surrounded by historic buildings, it is discreetly hidden and quiet, featuring its own terrace at the lower Schlossberg in Marburg. The apartment has just become available and is available for short-term rental fully furnished—from mid-February until approximately mid-August 2026—with the possibility of monthly rentals. After a comprehensive renovation, approximately 25 sqm of living space awaits new tenants. It is equipped with a shower room including a toilet, a washing machine, and a brand new kitchenette. The terrace faces south and, with its outdoor furniture and retractable awning, invites you to linger. The all-inclusive utilities cover heating, water, electricity, and WLAN with 1,000 MBit/s. An optional parking space can be rented for an additional 100.00 Euros.
A bus stop is located 120 meters away, or a 2-minute walk, and a REWE supermarket can be reached in a 10-minute walk.
The apartment is completely furnished with new furniture and an IKEA kitchenette. It includes a bed with a sleeping surface of 0.80 x 2.00 meters that can be extended to 1.60 x 2.00 meters and, upon request, can be separated into two individual beds measuring 0.80 x 2.00 meters each. Additionally, there is a wardrobe, a dining table with three chairs (which also serves as a desk), a bedside table, and a television. The kitchenette is equipped with an integrated refrigerator with a small freezer compartment, a microwave, an induction cooktop with two cooking zones, and a Nespresso machine. It is fully equipped with everything needed for temporary living.
Property characteristics
| Age | Over 5050 years |
|---|---|
| Layout | 1 bedroom |
| Listing ID | 988262 |
| Usable area | 25 m² |
| Condition | After reconstruction |
|---|---|
| Fully furnished | Fully furnished |
| EPC | G - Extremely uneconomical |
| Price per unit | €48 / m2 |
What does this listing have to offer?
| Parking | |
| Terrace |
| MHD 0 minutes on foot |
What you will find nearby
Still looking for the right one?
Set up a watchdog. You will receive a summary of your customized offers 1 time a day by email. With the Premium profile, you have 5 watchdogs at your fingertips and when something comes up, they notify you immediately.












