Flat for sale 4+1 • 90 m² without real estateStrandpromenade 6, , Hesse
This exclusive 4-room penthouse at Strandpromenade 6 impresses with its modern architecture, exceptional location, and the incomparable view of Rodgau Lake.
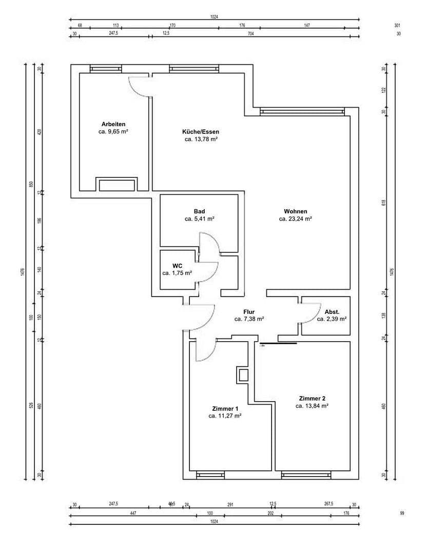
The apartment is located on the 13th floor of a well-maintained residential building and is easily accessible by elevator. Upon entering, the spacious, bright layout immediately stands out. The large living and dining area opens through expansive windows to a spectacular panorama of the city and the lake.
With three well-proportioned bedrooms, the apartment offers optimal conditions for families, home office use, guests, or spacious living concepts. The fully equipped bathroom with a bathtub invites relaxation, while the separate guest WC further enhances the comfort.
The light-filled rooms, airy layout, and the unique view make this penthouse a true oasis of well-being in an exclusive location.
The apartment also comes with a parking space, which costs an additional €10,000 – a valuable bonus in this sought-after residential area.
The property is situated on the Strandpromenade in Rodgau-Niederroden, one of the most popular addresses in the region. Right by the Rodgau swimming lake, ideal leisure and relaxation opportunities are practically at the doorstep.
Restaurants, shopping facilities, doctors, schools, as well as bus and train connections can be reached quickly. Furthermore, thanks to the excellent motorway connections, Frankfurt, Offenbach, and the entire Rhine-Main region can be reached swiftly.
A perfect combination of nature, urban comfort, and infrastructure.
• Penthouse on the 13th floor
• Elevator to the apartment level
• 4 rooms
• 3 bedrooms
• Generous living/dining area
• Bathroom with bathtub
• Guest WC
• Large windows and plenty of daylight
• Parking space (costs an additional €10,000)
• Modern residential building
This penthouse offers an extraordinary living atmosphere, excellent views, and a particularly sought-after location. It is ideal for anyone who appreciates exclusive living above the rooftops of Niederroden – with a direct view of the lake and optimal living conditions.
Property characteristics
| Age | Over 5050 years |
|---|---|
| Condition | After reconstruction |
| Listing ID | 988208 |
| Usable area | 90 m² |
| Available from | 08/02/2026 |
|---|---|
| Layout | 4+1 |
| EPC | E - Wasteful |
| Price per unit | €2,767 / m2 |
What does this listing have to offer?
| Lift | |
| MHD 4 minutes on foot |
| Parking |
What you will find nearby
Still looking for the right one?
Set up a watchdog. You will receive a summary of your customized offers 1 time a day by email. With the Premium profile, you have 5 watchdogs at your fingertips and when something comes up, they notify you immediately.








