House for sale • 711 m² without real estateWuppertal Uellendahl-Katernberg Nordrhein-Westfalen 42109
Rare opportunity to buy a solid and fresh investment in this location!
For sale are 2 multi-family houses with approximately 711 m² of living space on a plot of about 1,850 m², located directly on Uellendahlerstr. next to a Volvo dealer. A unique opportunity in this area! An idyllic sun garden with over 1,000 m² of space!
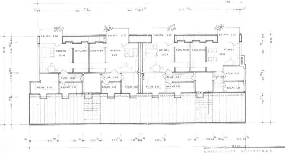
Best sun exposure – Most apartments have two balconies – one front and one back – in a mixed-use area – interesting for short-term rentals!
12 apartments + 8 garages – Potential rental income of €117,000 to €139,000 depending on modernization and the type of rental – Bank interest rate, depending on the financing, around €105,000 per annum – Top capital investment!
Cleared out for the new owner – without tenants!
12 apartments – 3 apartments in need of renovation – 1 freshly renovated – 8 apartments are fine, just need a coat of paint and you can move in.
The attic is not finished. The basement is about 80 m².
A solid and fresh capital investment with a future thanks to robust and modern construction!
The location fits perfectly – and so does the layout of the apartments!
The plot behind the house still offers various development possibilities for the future.
Price determination information:
Solid apartments in this area are valued at about €2,500 per m² * 711 m² = €1,777,500
8 garages, if any are for sale, would be priced at roughly €20,000 each = €160,000
Land value at €245 per m² * 1,850 m² = €453,250
Of that, 1,000 m² is the undeveloped rear plot = €245,000
Further information will follow…
If interested, please send me a message with your phone number and your first and last name.
Property characteristics
| Age | Over 5050 years |
|---|---|
| Usable area | 711 m² |
| Total floors | 3 |
| Listing ID | 987960 |
|---|---|
| Land space | 1,852 m² |
| Price per unit | €2,743 / m2 |
What does this listing have to offer?
| Balcony | |
| Garage |
| Basement | |
| Parking |
What you will find nearby
Still looking for the right one?
Set up a watchdog. You will receive a summary of your customized offers 1 time a day by email. With the Premium profile, you have 5 watchdogs at your fingertips and when something comes up, they notify you immediately.













