
House for sale 6+1 • 186 m² without real estate, Brandenburg
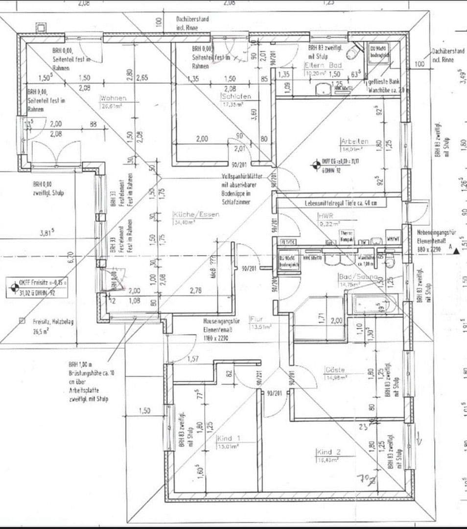
, BrandenburgPublic transport 2 minutes of walking • Parking • GarageLight, space, and quality – an exclusive architect-designed home featuring wellness, technology, and a large garden. This stylish architect’s house combines modern design with high functionality and generous living comfort – set on an expansive plot of 1,720 m². The well-conceived, nearly barrier-free architecture, high-quality amenities, and harmonious layout make this property a true haven. The bungalow, built in 2012, offers 185 m² of living space on one level. The entrance area immediately impresses with its spaciousness and light, leading into three generous children’s rooms, an elegant family bathroom with an integrated sauna, a practical hallway with a utility room and workspace, and finally into the open-plan living/dining area with a kitchen and fireplace as the heart of the home. The bedroom with its own bathroom provides a tranquil and stylish retreat. A full attic spanning the entire house adds extra usable space – perfect for storage or future expansion ideas. In the garden, you will find a small pond and a second outdoor seating area complete with a grill and a campfire area featuring a swivel grill option. Particularly noteworthy is the spacious garage with an adjoining workshop, equipped with electricity, water, and sewage connections as well as its own attic. The mechanical rolling gate, along with the electric access gate, can be conveniently operated via remote control – ideal for comfortable and secure parking.
Other: Please contact me for further information, questions, and to arrange a viewing as soon as possible.
The bungalow is situated in a particularly desirable residential area in northern Brieselang (14656), combining peaceful, green living with excellent transport links. In just about a five-minute walk, you can reach Brieselang train station, from where you can get to downtown Berlin in roughly 30 minutes by public transport. The well-established neighborhood, surrounded by abundant nature, offers a high quality of life, while shopping, schools, and other daily necessities are conveniently and quickly accessible.
Special features of the property: Equipment & Highlights
• Architect-designed house in a modern, timeless style
• Underfloor heating throughout the house (natural gas)
• 4 solar panels (2 for hot water support, 2 for electricity)
• Two high-quality bathrooms, one with an integrated sauna
• Fiber optic connection in the house
• Programmable shutters on all windows and doors
• Open fitted kitchen with dining area and living room with fireplace
• 3 full attics, with some areas available for expansion
• Garage with workshop, electricity, water, sewage, and an attic
• Mechanical rolling gate, controllable via remote
• Electric access gate with remote control
• Garden house with an electricity connection and an electric groundwater pump for garden and hedge irrigation
• Pool area with an electric connection and a covered area for the pump system
• Generous driveway with multiple parking spaces
• Well-maintained garden with extensive design potential
Property characteristics
| Age | Over 5050 years |
|---|---|
| Condition | Good |
| Listing ID | 987891 |
| Usable area | 186 m² |
| Total floors | 1 |
| Available from | 17/02/2026 |
|---|---|
| Layout | 6+1 |
| EPC | B - Very economical |
| Land space | 1,720 m² |
| Price per unit | €4,651 / m2 |
What does this listing have to offer?
| Garage | |
| MHD 2 minutes on foot |
| Parking | |
| Terrace |
What you will find nearby
Still looking for the right one?
Set up a watchdog. You will receive a summary of your customized offers 1 time a day by email. With the Premium profile, you have 5 watchdogs at your fingertips and when something comes up, they notify you immediately.




















