House for sale 3+1 • 87 m² without real estateBURGBLICK GRUNDSTÜCK EXKLUSIV NUR FÜR DANWOOD-HAUSBAU Güssing Burgenland 7540
Bungalow: Below in the PDF you will find several price examples!
Dear homeowners,
You want to fulfill your dream of owning your own home, but you’re not sure which provider is right for you or who can offer you a house built to your preferred design? With DAN-WOOD-HOUSE, you can make your dream home a reality—even if you don’t yet have a specific building plan. Choose from 130 different house types and customize them free of charge according to your wishes. In addition, various wall constructions are available.
What an amazing realization: It isn’t about what DAN-WOOD or the individual companies offer, but about how your personal vision of your dream home looks! Here, you will be provided with a well-founded consultation that is sure to inspire you!
I offer you my personal consultation for your project! I begin with an initial consultation, which I preferably conduct on your building plot. The shape, the differences in ground level, and the orientation of the plot play the starring roles!
Don't have a plot yet? No problem! I am happy to give you an overview of the many great design possibilities with DAN-WOOD houses. There are so many exciting aspects to clarify: the house type, the layout of the rooms, the roof shape, the heating, the electrical installation, the shading, and possible features such as "Smart Home."
It is really important to know the overall financial outlay including the sample modeling!
I am pleased to inform you that I will perform a preliminary sample modeling so that you can easily plan those costs! This is truly a great help! With this, you can not only draw up a financing plan but also search for financing.
Do not hesitate—contact me now! 0676 5537747
Catalog orders under "Katalog Serie Today" tatjana.wyss@danwood.at
Please include your address and telephone number with your order.
On your plot or in…
Güssing: Approximately 2,600 m² on a completely flat site. Plot sizes and locations are freely selectable, ranging from 500 m² to 1500 m².
These are premium building plots! In an excellent location with a breathtaking view of the beautiful Güssing Castle! Güssing offers a future-proof, affordable, and energy-independent life in the countryside, making investing in property there a strategic asset.
Why Güssing?
Energy Pioneer and Sustainability:
• The town is energy self-sufficient and internationally recognized.
• High coverage (over 85%) with regional biomass district heating results in stable, low heating costs.
Affordable Property Prices:
• Prices are still significantly lower than the Austrian average, making the dream of owning a home with spacious plots possible.
Strong Infrastructure and Quality of Life:
• As a suburban district, Güssing guarantees short distances and excellent services.
• Planned major investments include a new education campus and a modern medical center (from 2026).
Cultural center (Güssing Castle) and proximity to thermal baths.
The complete opening of the S7 brings significant advantages for Güssing and its residents:
• Faster connection to metropolitan areas: The expressway significantly shortens the travel time to the A2 South Motorway, considerably reducing travel times to Graz and Vienna.
• Relief for the region: It directs through traffic, which previously heavily burdened villages such as Fürstenfeld and Rudersdorf, onto the new route.
• Economic Impulses: The new connection—via the junction near Rudersdorf/Dobersdorf and the proximity to the Königsdorf connection—strengthens Güssing as a suburban district and economic location through improved accessibility and the promotion of new business parks.
Asset Stability and Development Potential:
• Targeted municipal investments in infrastructure, urban renewal, and the technology center secure the long-term value stability of the properties.
• The municipal strategy aims to meet demographic challenges and establish Güssing as an attractive residential and economic location.
Target Group:
Families looking for the future, security, and nature, as well as anyone who values low energy costs and ecological responsibility.
Other plots in:
• Plot, 8323 Kohldorf: Building plot with plenty of sun in the hilly region of East Styria, 15 km from Graz!
Size: 758 m² Purchase price: €66,000, --
• Plot, 8323 Kohldorf: Sunny building plot in Kohldorf, 15 km east of Graz!
Size: 787 m² Purchase price: €69,000, --
• Plot, 8311 Markt Hartmannsdorf: Fully serviced, sunny building plot in Markt Hartmannsdorf
Size: 920 m² Purchase price: €53,000, --
• Plot, 9335 Lölling Graben: Building plot with a dreamy distant view in the picturesque Carinthian mountains
Size: 1001 m² Purchase price: €50,000, --
• Plot, 8075 Hart near Graz: Sunny plot at the outskirts of Graz
Size: 1980 m² Purchase price: €475,000, --
• Plot in Stainz for sale: Sunny plot on the outskirts of Stainz
Size: 825 m² Purchase price: €149,000,
There is no economic connection between the owner of the plot and the builder of the house.
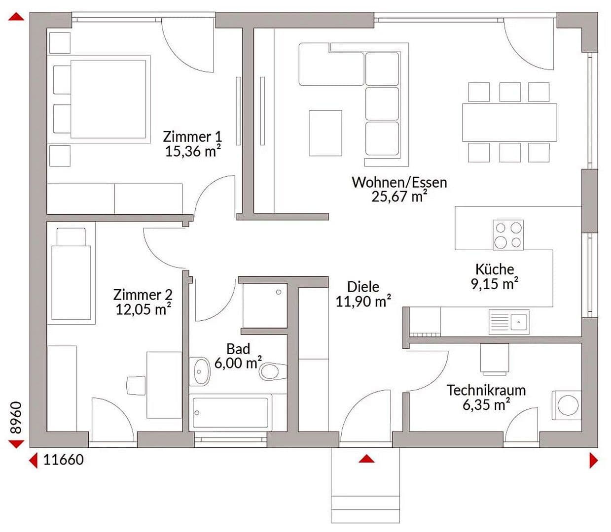
BUNGALOW, 3-room, with bathroom and WC, exclusive equipment!
Plot options: 500 m², 1000 m², 1500 m² (available upon request)
Included in the price:
• Turnkey execution (just move in with your furniture!)
• Delivery and assembly from the top edge of the foundation
• Snow load–reinforced roof truss
• Air-water heat pump with underfloor heating
• Decentralized residential ventilation with heat recovery (cools in summer)
• Electric shutters throughout the house
• All floor coverings according to your choice
• All sanitary fixtures according to your choice
• Photovoltaic preparation
• All-round worry-free package
OPTIONAL: Self-performance is of course possible!
Consulting – Sales Ms. Tatjana Wyss
+43 676553 77 47 tatjana.wyss@danwood.at
Immediate information or initial consultation!
Other offers:
https://qr.scan.page/uploads/pdf/1751712478803_686335a001f76.pdf
Request a building description and catalogs!
For this, it is necessary that you provide your telephone number, email address, and address.
Thank you!
Property characteristics
| Age | Over 5050 years |
|---|---|
| Layout | 3+1 |
| Usable area | 87 m² |
| Total floors | 1 |
| Condition | New-build |
|---|---|
| Listing ID | 987728 |
| Land space | 1 m² |
| Price per unit | €2,564 / m2 |
What does this listing have to offer?
| Garage |
| MHD 2 minutes on foot |
What you will find nearby
Still looking for the right one?
Set up a watchdog. You will receive a summary of your customized offers 1 time a day by email. With the Premium profile, you have 5 watchdogs at your fingertips and when something comes up, they notify you immediately.












