House for sale 3+1 • 87 m² without real estateGRUNDSTÜCK FERNBLICK EXKLUSIV NUR FÜR DANWOOD-HAUSBAU Lölling Graben Lölling Graben Kärnten 9335
Bungalow: You will find several pricing examples in the attached PDF!
Dear clients and future homeowners,
Do you want to make your dream of owning your own home come true but aren’t sure which provider is right for you or who can offer you the house built in the style you desire? With DAN-WOOD-HOUSE, you can realize your dream house – even if you don’t have a specific construction plan yet. Choose from 130 different house types and customize them free of charge to suit your needs. In addition, various wall constructions are available to choose from.
What a brilliant realization: It doesn’t matter what DAN-WOOD or the individual companies offer, but rather what your individual vision of your dream home is! Here, you are provided with comprehensive advice that will truly excite you!
I offer you my personal consulting service for your project! I begin with an initial consultation, preferably conducted on your building site. The shape, the elevation difference, and the orientation of the site are the absolute main characters in this process!
Don’t have a plot yet? No problem! I am happy to give you an overview of the many great design possibilities of DAN-WOOD houses. There are so many exciting aspects to clarify: the house type, the room layout, the roof shape, the heating system, the electrical system, shading, and potential features like “Smart Home.”
It is really important to know the total financial expenditure, including sampling costs!
I am pleased to inform you that I will carry out a preliminary costing for you. This way, you can easily plan for these expenses! It’s truly a great help! With this, you can not only create a financing plan but also search for financing.
Don’t hesitate, contact me now! 0676 5537747
Catalog orders: Under "Katalog Serie Today" tatjana.wyss@danwood.at
Please provide your address and telephone number when ordering.
On your property or in…
Güssing: Approximately 2,600 m² on completely flat terrain. Land sizes and locations can be freely chosen. Options range from 500 m² to 1500 m².
Here you have top-class building sites! In a prime location with breathtaking views of the beautiful Güssing Castle!
Güssing offers a future-proof, affordable, and energy-independent life in the countryside, making investing in a property there a strategic asset.
Why Güssing?
Energy pioneer and sustainability:
The town is energy self-sufficient and internationally renowned.
A high coverage (over 85%) with regional biomass district heating leads to stable, low heating costs.
Affordable real estate prices:
Prices are still significantly lower than the Austrian average, making the dream of owning a home with spacious plots possible.
Strong infrastructure and quality of life:
As the district town, Güssing guarantees short distances and excellent amenities.
Planned major investments:
New educational campus and a modern medical center (from 2026).
Cultural center (Güssing Castle) and proximity to thermal spas.
The complete opening of the S7 brings significant benefits for Güssing and its residents:
Faster connection to urban centers: The expressway dramatically reduces travel time to the A2 South Motorway, significantly cutting travel times to Graz and Vienna.
Relief for the region: It diverts transit traffic, which previously heavily burdened villages such as Fürstenfeld and Rudersdorf, to the new route.
Economic stimulus: The new connection, including the junction at Rudersdorf/Dobersdorf and the proximity to the Königsdorf connection, strengthens Güssing as a district town and business location through improved accessibility and the promotion of new industrial parks.
Value stability and development potential:
Targeted municipal investments in infrastructure, revitalization of the town center, and the technology center secure the long-term value stability of the properties.
The municipal strategy aims to meet demographic challenges and establish Güssing as an attractive residential and business location.
Target Group
Families seeking a future, security, and nature, as well as anyone who values low energy costs and ecological responsibility.
Other properties available:
Property, 8323 Kohldorf: Building plot with plenty of sun in the hilly landscape of Eastern Styria, 15 km from Graz!
Size: 758 m², Purchase price: €66,000
Property, 8323 Kohldorf: Sunny building plot in Kohldorf, 15 km east of Graz!
Size: 787 m², Purchase price: €69,000
Property, 8311 Markt Hartmannsdorf: Fully serviced, sunny building plot in Markt Hartmannsdorf
Size: 920 m², Purchase price: €53,000
Property, 9335 Lölling Graben: Building plot with a dreamy distant view in the picturesque Carinthian mountain landscape
Size: 1001 m², Purchase price: €50,000
Property, 8075 Hart near Graz: Sunny plot just outside Graz
Size: 1980 m², Purchase price: €475,000
Property for sale in Stainz: Sunny plot on the outskirts of Stainz
Size: 825 m², Purchase price: €149,000
There is no economic connection between the property owner and the builder of the house.
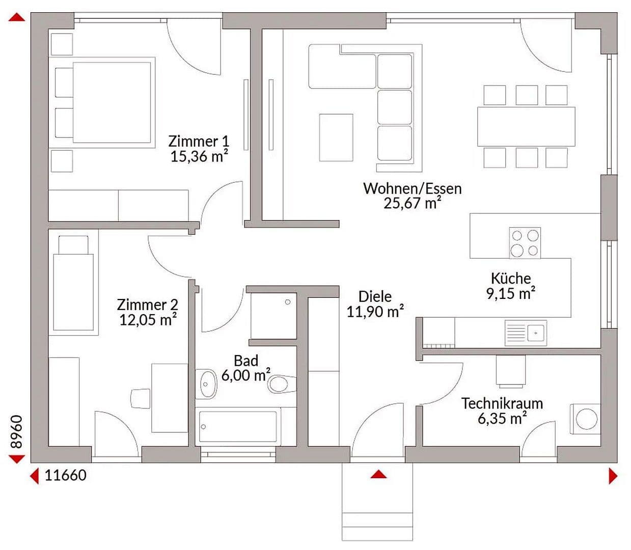
BUNGALOW 3-room, bathroom, WC, exclusive equipment!
Available plot sizes: 500 m², 1000 m², 1500 m² upon request
Included in the price:
- Turnkey execution (just move in with your furniture!)
- Delivery and installation from the top of the foundation
- Roof truss reinforced for snow load
- Air-water heat pump, underfloor heating
- Decentralized residential ventilation with heat recovery (cools in summer)
- Electric shutters throughout the house
- All flooring as per your selection
- All sanitary fixtures as per your selection
- Photovoltaic preparation
- All-round worry-free package
OPTIONAL: Self-performance is, of course, possible!
Consulting and sales by Ms. Tatjana Wyss
+43 676 553 77 47
tatjana.wyss@danwood.at
Immediate information or initial consultation!
Other offers:
https://qr.scan.page/uploads/pdf/1751712478803_686335a001f76.pdf
Request a construction description and catalogs!
It is necessary to provide your telephone number, email address, and address.
Thank you!
Property characteristics
| Age | Over 5050 years |
|---|---|
| Layout | 3+1 |
| Usable area | 87 m² |
| Total floors | 1 |
| Condition | New-build |
|---|---|
| Listing ID | 987709 |
| Land space | 1 m² |
| Price per unit | €2,535 / m2 |
What does this listing have to offer?
| Garage |
| MHD 3 minutes on foot |
What you will find nearby
Still looking for the right one?
Set up a watchdog. You will receive a summary of your customized offers 1 time a day by email. With the Premium profile, you have 5 watchdogs at your fingertips and when something comes up, they notify you immediately.











