Office for sale • 485 m² without real estateBartäcker 6, , Bavaria
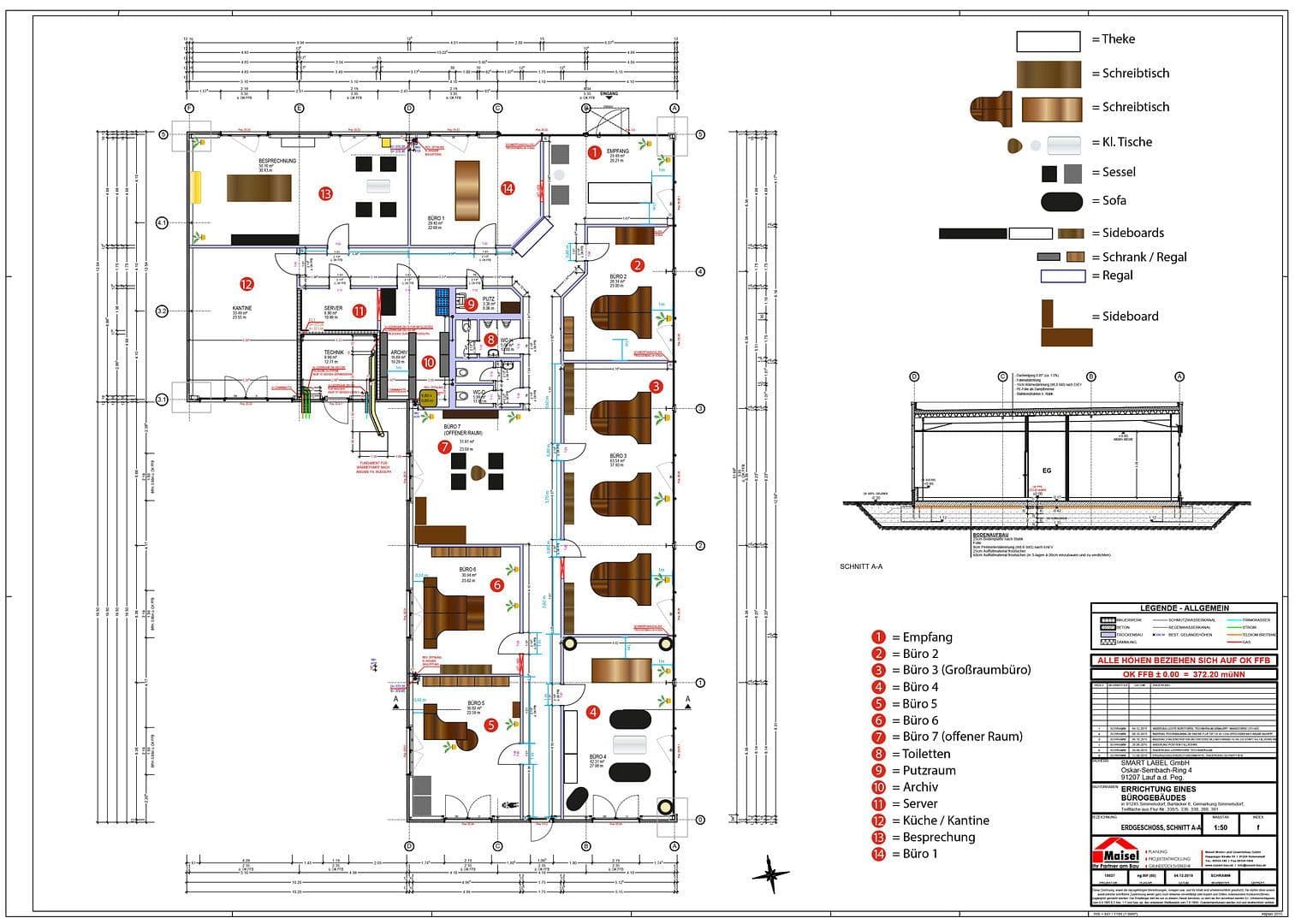
Bartäcker 6, , BavariaPublic transport 6 minutes of walking • Parking • GarageThe modern, high-quality building impresses with its attractive appearance as well as its well-thought-out design and features. The L-shaped building can be divided into two units if needed. The property is furnished to a high standard and is filled with light thanks to the floor-to-ceiling windows. With the complete installation of the venetian blind system, the amount of incoming light can be regulated individually.
An extension with approximately 300 m² of usable space would be possible. The social areas and sanitary facilities are of high quality and in almost new condition. The building features three terraces and is situated in a quiet area with green spaces.
In addition, the property is completely fenced and features controlled access up to the parking lot. The lighting system, data cabling, alarm system with cameras and connection to the security service, underfloor cable channels in offices and meeting rooms, LED interior lighting, Sonos media system, electronic locking system, server room with air conditioning, as well as the entire building’s heated and cooled floor, all meet the highest standards.
The walls can be altered if needed, except for the fire protection walls. The building was constructed in 2016 by the company Maisel.
The property is located east of Schnaittach and is ideally connected to the A 9 motorway (exit Schnaittach). Its location is ideally integrated into the Nuremberg metropolitan region. The travel time to Nuremberg, Neumarkt, Bayreuth, Schwabach, and Erlangen is between 30 and 35 minutes.
The building is outfitted with top-quality floors, doors, windows, venetian blind systems, sanitary installations, and lighting bodies. It was constructed using a steel framework with highly thermally insulated Iso-Paneel walls (12 cm thick).
The business tax levy in the municipality of Simmelsdorf is 310. The entire plot area measures 2,585 m², is fully developed, and has no encumbrances or restrictions.
Property characteristics
| Age | Over 5050 years |
|---|---|
| Listing ID | 987633 |
| Price per unit | €2,866 / m2 |
| Condition | Very good |
|---|---|
| Land office | 485 m² |
What does this listing have to offer?
| Garage | |
| MHD 6 minutes on foot |
| Parking | |
| Terrace |
What you will find nearby
Still looking for the right one?
Set up a watchdog. You will receive a summary of your customized offers 1 time a day by email. With the Premium profile, you have 5 watchdogs at your fingertips and when something comes up, they notify you immediately.
























