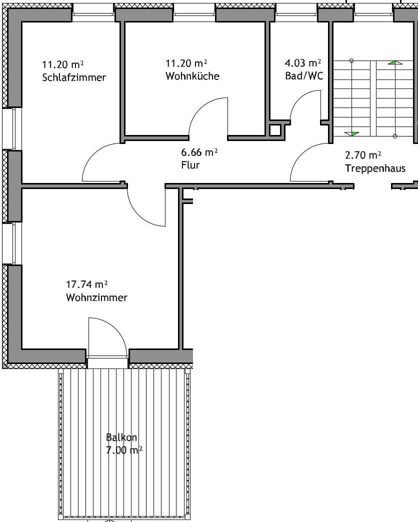
Flat to rent 2+kk • 58 m² without real estateSiedlung 17 und 18, , Bavaria
Siedlung 17 und 18, , BavariaPublic transport 1 minute of walkingThis bright and well-proportioned apartment includes a fitted kitchen, which is included in the rental price. In addition, a storage room of approximately 15 – 20 m² in the basement as well as a parking space belong to the apartment.
The ongoing housing service charge is calculated for one person (the surcharge increases by €70.00 for each additional person), with the surcharge being calculated and adjusted annually according to consumption.
Included in the housing service charge are costs for heating, water, waste disposal, caretaker services, and satellite television.
The property includes approximately 600 m² of garden and green areas, which can be shared.
You will live in Fischerdorf, in very close proximity to Deggendorf, with everything your heart desires in the immediate vicinity. You will find a butcher’s shop and a bakery, the Elypso swimming pool, a football pitch, a bus stop, a bathing pond, and a bicycle path practically right outside your door. It takes about 5 minutes by bicycle to reach Deggendorf’s town center or the University of Applied Sciences.
Equipment: Upscale
The apartment is unfurnished!
The bathroom is tiled and equipped with a shower. The rest of the apartment has vinyl flooring.
The apartment includes a fitted kitchen, which is included in the rental price. This includes a refrigerator with a separate freezer, a sink, an oven, as well as a ceramic hob with an extractor hood made of stainless steel.
A parking space allows you to park without the hassle of searching for a spot.
The bathroom features a toilet and a washbasin. There is a connection for a washing machine in the basement.
The entire building has been newly renovated. In the process, new windows (triple glazing) were installed. These can be electrically shaded with roller shutters.
Additionally, full thermal insulation has been applied to the entire building, allowing you to save on heating costs. Likewise, the apartment comes with a generous terrace (approximately 14 m²) and access to the garden.
The entire building is supplied with a gas central heating system and a wood chip heating system.
The building was constructed in solid stone construction. The apartment has no cracks and is free of mold! The sound insulation to other apartments is very good, so you will barely notice any noise.
For this apartment,
- no broker’s fee (in accordance with legal regulations since 01.06.2015) and
- no takeover fee for the fitted kitchen (included in the rental price)
apply.
To arrange a viewing appointment, please contact Mr. Schiller at:
Mobile: 0151 28535182
Location: Settlement 17 and 18, 94469 Deggendorf
Apartment No. 11
Property characteristics
| Age | Over 5050 years |
|---|---|
| Condition | After reconstruction |
| Listing ID | 987607 |
| Usable area | 58 m² |
| Available from | 01/04/2026 |
|---|---|
| Layout | 2+kk |
| EPC | B - Very economical |
| Price per unit | €10 / m2 |
What does this listing have to offer?
| Basement | |
| Terrace |
| MHD 1 minute on foot |
What you will find nearby
Still looking for the right one?
Set up a watchdog. You will receive a summary of your customized offers 1 time a day by email. With the Premium profile, you have 5 watchdogs at your fingertips and when something comes up, they notify you immediately.











