
House for sale 3+1 • 98 m² without real estateZur Wipperaller Wolfsburg Wendschott Niedersachsen 38448
This lovingly modernized mid-terrace house combines contemporary living comfort with thoughtful features, creating a home where you can settle in and feel at ease. The property impresses with a harmonious layout, high-quality design elements, and a well-kept, nearly maintenance-free outdoor area.
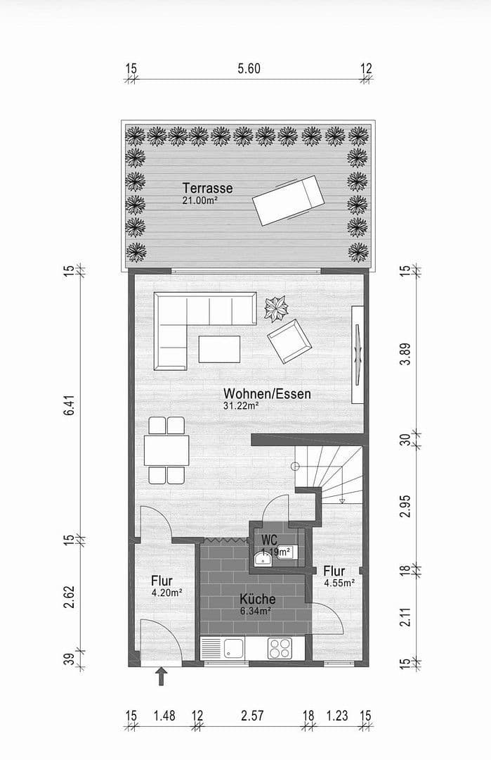
From the moment you step into the house, you are welcomed by a friendly entrance area with space for a wardrobe. An elegant glass door separates this area from the living space while also providing a bright, open atmosphere.
The ground floor features an open living and dining area that forms the heart of the house. Large windows allow plenty of daylight to flood in and offer a beautiful view of the newly designed, screened garden (redesigned in 2024). The open-plan kitchen is integrated into the space, offering short distances and a sociable living environment. Directly adjacent is a practical utility room with space for storage, a washing machine, and a dryer. A guest WC rounds off the space on this level.
In 2024, the garden was elaborately and modernly designed. In addition to a spacious garden shed with plenty of storage, the covered terrace invites you to linger. The integrated electric awning provides pleasant shade even on warm days. An automatic irrigation system nearly independently takes care of garden maintenance.
On the upper floor, there are two well-proportioned bedrooms, one of which is ideal as a children’s room or home office. The spacious bathroom is designed in a Mediterranean style and is equipped with a corner bathtub and a walk-in shower – a place for relaxation.
Additional storage is available in the attic, which also has expansion potential. An existing chimney allows for the installation of a fireplace. Underfloor heating in the basement and in the bathroom ensures comfortable living. All living areas feature high-quality, warm-to-the-touch vinyl flooring.
All windows are equipped with shutters and insect screens. The roof window in the children’s room/home office includes a practical pleated blind.
Two parking spaces are available directly in front of the house. A wallbox for electric vehicles is also provided. The heating is carried out in an environmentally friendly manner via district heating. A fiber optic connection is planned for spring 2026.
The mid-terrace house is located in Wendschott, a popular and quiet district embedded in a well-established residential area primarily consisting of detached and terraced houses. The location is characterized by its pleasant serenity and family-friendliness. The house is situated in a 30 km/h traffic-calmed zone, away from through traffic – ideal for families, couples, or anyone who appreciates a relaxed living environment.
Local amenities are excellent: a shopping opportunity is located only about 500 meters away and is easily accessible on foot or by bicycle. Further facilities for daily needs, kindergartens, schools, as well as leisure and sports activities, are located in the immediate vicinity.
Thanks to good connections, surrounding districts and the supra-regional transport network are quickly reachable. At the same time, the surrounding area offers numerous opportunities for walks, cycling tours, and relaxation in nature.
Wendschott combines peaceful living with good infrastructure – a location that perfectly unites quality of life with everyday practicality.
• Open living and dining area with modern kitchen
• Utility room with space for storage, washing machine & dryer
• Guest WC on the ground floor
• 2 bedrooms (suitable as a children’s room or home office)
• Spacious bathroom with corner bathtub & walk-in shower
• Underfloor heating in the basement & bathroom
• High-quality, warm-to-the-touch vinyl flooring in all living areas
• Shutters on all windows (except roof window)
• Roof window with pleated blind
• Insect screens on all windows
• Attic with expansion potential
• Existing chimney (fireplace possible)
• Screened garden (newly designed in 2024)
• Garden shed with plenty of storage
• Covered terrace with electric awning
• Automatic irrigation system
• 2 parking spaces directly at the house
• Wallbox for electric vehicles
• District heating
• Fiber optic connection applied for (installation in spring 2026)
The sale of the property is conducted privately.
All communication and appointment arrangements are handled by Mr. Wenderoth.
Property characteristics
| Age | Over 5050 years |
|---|---|
| Condition | After reconstruction |
| Listing ID | 987564 |
| Usable area | 98 m² |
| Total floors | 1 |
| Available from | 04/02/2026 |
|---|---|
| Layout | 3+1 |
| EPC | C - Economical |
| Land space | 192 m² |
| Price per unit | €3,449 / m2 |
What does this listing have to offer?
| Parking | |
| Terrace |
| MHD 3 minutes on foot |
What you will find nearby
Still looking for the right one?
Set up a watchdog. You will receive a summary of your customized offers 1 time a day by email. With the Premium profile, you have 5 watchdogs at your fingertips and when something comes up, they notify you immediately.

















