
Flat to rent 2 bedroom • 84 m² without real estateDorfstraße 18, , Schleswig-Holstein
Dorfstraße 18, , Schleswig-HolsteinPublic transport 1 minute of walkingThe apartment is located on the ground floor of a residential building in the town center of Tangstedt. Daily shopping facilities are available in the locality. In Tangstedt itself, there are three kindergartens and a forest kindergarten. Tangstedt also has a primary school, an after-school care center, and an adult education center. Secondary schools, doctors, and shopping centers can be found in the neighboring areas of Norderstedt, Duvenstedt (HH), and Nahe.
The municipality of Tangstedt has approximately 6,500 inhabitants and is situated in the Stormarn district of Schleswig-Holstein, north of the Hanseatic city of Hamburg and northeast of the city of Norderstedt. The residential complex is located on a traffic-calmed street, and a bus stop is located right in front of the house.
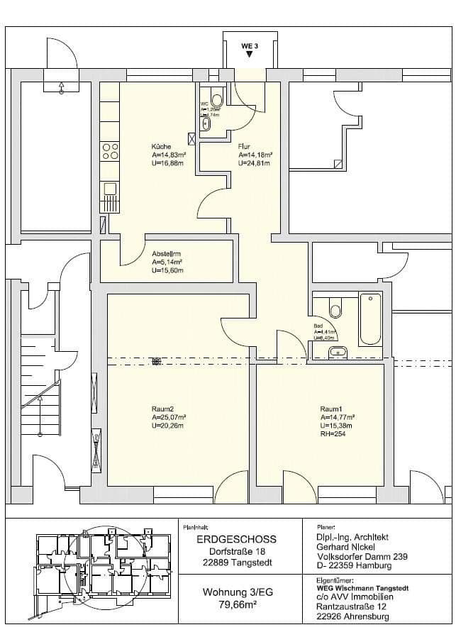
The apartment was freshly renovated in January 2026. It features a spacious kitchen with an additional storage room. A modern, fully equipped bathroom with a shower option and a guest toilet make the apartment a functional as well as attractive home. Additionally, the apartment offers two small garden areas facing south and north. The hallway, kitchen, auxiliary room, bathroom, and guest toilet are tiled, whereas the bedroom and living room have laminate floors. Furthermore, there is an additional storage room in the building's attic. An extra parking space is available directly in front of the house and must be leased as well.
To apply and schedule a viewing appointment, please send us the completed tenant self-disclosure form included in the attachment. Yours sincerely, AVV Immobilien GmbH, Rantzaustr. 12, 22926 Ahrensburg, m.wischmann.avv(at)email.de
Upon signing the rental contract, a fee of €100 plus statutory VAT for name plates, installation, etc. is due.
Property characteristics
| Age | Over 5050 years |
|---|---|
| Condition | After reconstruction |
| Listing ID | 987547 |
| Usable area | 84 m² |
| Available from | 04/02/2026 |
|---|---|
| Layout | 2 bedroom |
| EPC | C - Economical |
| Price per unit | €10 / m2 |
What does this listing have to offer?
| Basement | |
| Terrace |
| MHD 1 minute on foot |
What you will find nearby
Still looking for the right one?
Set up a watchdog. You will receive a summary of your customized offers 1 time a day by email. With the Premium profile, you have 5 watchdogs at your fingertips and when something comes up, they notify you immediately.















