
Flat to rent 3+kk • 89 m² without real estateKimbernstraße Hamburg Niendorf Hamburg 22455
Welcome!
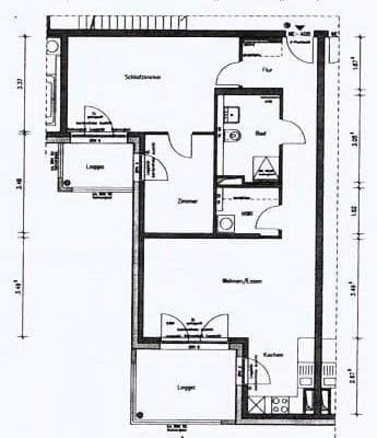
The generously sized, renovated apartment is spread over two floors. Upon entering the apartment door, you first arrive at a spacious entrance area. There is ample space for a wardrobe or a cupboard. To the right, you will find the kitchen. The fitted kitchen shown in the pictures is included in the rent. A lot of light streams into the kitchen through the large east-facing window. It offers plenty of storage space, and there is also a dishwasher. In the kitchen, there is room for a small dining table for two people.
When you step out of the kitchen, to the right you will find the approximately 15 sqm bedroom, also featuring large windows facing east. Directly adjacent is the bathroom with a shower and ventilation. The bathroom fixtures visible in pictures 7 and 8 are included in the rent.
Next, you enter the spacious living-dining area of approximately 27 sqm. The large front window provides plenty of natural daylight. On the adjoining west-facing balcony, you can enjoy the evening sun.
From the dining area, you can access another room that is well suited as a children’s room or an office. Due to the large west-facing windows, the room is very bright.
Back in the entrance area, you go down the stairs. There, you will find another room of about 15 sqm that is ideal as an additional children’s room or a hobby room.
Pictures 1–13 show the apartment unfurnished, as it is rented, while pictures 14–21 show the apartment furnished for illustration purposes only. The furniture is not included in the rent.
I look forward to your inquiries!
Best regards,
Alexia Kressel
The apartment is located in the lovely Niendorf. In the surrounding area, many families with small children as well as many elderly people live. The bus stop for bus line 191 is reachable within 1–2 minutes on foot. By bus, you can reach U-Bahn line 2 in about 5 minutes (stop: Joachim-Mähl-Straße). Alternatively, the Niendorf Nord U-Bahn station can be reached in about a 15‑minute walk. There is also a bus stop for line 24 just a few minutes away.
Within walking distance, you will find a bakery, a supermarket, a kindergarten, an elementary school, and several restaurants. Just a few meters from the apartment, there is also a playground.
The airport can be reached from the apartment by bus in about 20 minutes, or by car in 10–15 minutes. Despite its proximity to the airport, the apartment is not located in the landing path, so you can enjoy the evening sun on the west balcony in peace.
You can also quickly reach green areas from the apartment. There are several parks and recreational areas in the immediate vicinity.
The fitted kitchen is included in the rent. It comes equipped with an oven, a stove with an extractor hood, a refrigerator, and a large dishwasher. In addition, the kitchen offers plenty of storage space and room for a small table.
Furthermore, the high-quality bathroom furnishings are included in the rent. There is a mirrored cabinet, a sink base cabinet, two wall cabinets, and a chest of drawers (see pictures). The bathroom is equipped with ventilation.
All windows are fitted with electronic blinds.
The balcony is 7.7 sqm in size and faces west. This allows you to enjoy the sun, especially during the afternoon and evening.
The garage can be rented for €80 if needed; however, there is no obligation to rent the garage!
Property characteristics
| Age | Over 5050 years |
|---|---|
| Condition | After reconstruction |
| Floor | 1. floor out of 2 |
| EPC | E - Wasteful |
| Price per unit | €15 / m2 |
| Available from | 01/03/2026 |
|---|---|
| Layout | 3+kk |
| Listing ID | 987524 |
| Usable area | 89 m² |
What does this listing have to offer?
| Balcony |
| Garage |
What you will find nearby
Still looking for the right one?
Set up a watchdog. You will receive a summary of your customized offers 1 time a day by email. With the Premium profile, you have 5 watchdogs at your fingertips and when something comes up, they notify you immediately.

























