
Flat for sale 2 bedroom • 74 m² without real estateBachemer Str. 341 Köln Lindenthal Nordrhein-Westfalen 50935
Bachemer Str. 341 Köln Lindenthal Nordrhein-Westfalen 50935Public transport 9 minutes of walkingExclusive Garden Apartment in Cologne-Deckstein – Direct Private Sale without Commission
Exclusive Garden Apartment in a Peaceful, Prime Location of Cologne-Deckstein, Right Next to the City Forest
Some apartments are more than just a place to live.
They are a retreat, a piece of quality of life – a home.
In one of Cologne’s greenest and most prestigious residential areas, quietly situated in a traffic-calmed cul-de-sac in Cologne-Deckstein, this unique garden apartment is located on the raised ground floor of an exceptionally well-maintained multi-family house with only five residential units.
The living environment is characterized by privacy, tranquility, and a pleasant neighborhood. At the same time, Cologne’s city center is reachable within minutes by bicycle or public transport – a rare combination of urban proximity and nature-oriented living.
Living Quality with Atmosphere
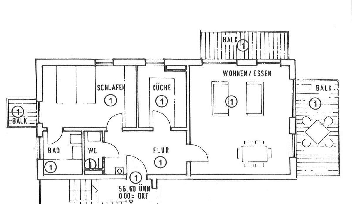
The apartment offers approximately 74 m² of living space and impresses with a harmonious layout, high-quality materials, and a distinctly pleasant living ambiance.
The spacious living area with its elegant oak wood flooring, underfloor heating, and large windows forms the heart of the apartment. Abundant natural light and views of greenery create a calm, warm atmosphere in every season.
The separate kitchen is equipped with high-quality built-ins and stylish terracotta tiles, combining timeless elegance with Mediterranean warmth – a place for delightful cooking and lingering moments.
The bedroom, adjoining a bright bathroom, offers a private retreat. An additional guest WC ideally complements the well-thought-out layout.
Electric shutters in all rooms ensure comfort, quiet, and privacy.
A special feature of this property is the two terraces as well as the garden for exclusive use.
Whether it’s enjoying morning coffee surrounded by greenery, reading a book in the afternoon, or sipping a glass of wine in the evening – these terraces and the garden elegantly extend the living space outdoors and provide a rare retreat in a prime urban location.
Equipment & Highlights
- Approximately 74 m² of living space
- Raised ground floor
- Exceptionally well-maintained building with only 5 residential units
- Elegant oak wood flooring
- Underfloor heating
- Electric shutters
- Bright bathroom + separate guest WC
- Two terraces & private garden
- High-quality, fully equipped kitchen
- Private, lockable cellar room of 8 m²
- Well-maintained, ventilated communal laundry room
- Separate bicycle storage room
- Quiet cul-de-sac location
- Green, prestigious residential area
- Underground parking space available for additional rental
Additional Information
The sale is conducted commission-free directly by a family member – no broker’s commission applies.
Viewings as well as further arrangements are handled personally, reliably, and discreetly.
This apartment is aimed at buyers who appreciate quality, location, and a unique living experience –
We are happy to provide you with further information upon serious interest and look forward to showing you this special apartment in person.
The property is located on Bachemer Straße in the heart of Cologne-Lindenthal – a district that has been cherished for decades for its exceptional living quality, established character, and pleasant atmosphere. Lindenthal harmoniously combines urban living with green tranquility and is one of the city’s most sought-after residential areas.
The surrounding area is characterized by well-maintained residential buildings, mature trees, and a neighborhood that combines stability with vibrancy. Along Bachemer Straße, you will find a variety of shopping opportunities, small cafés, restaurants, and service providers that make everyday life pleasant and uncomplicated. Everything you need is in comfortable proximity – often only a few steps away.
The transport connections are excellent: Public transport is within walking distance and provides quick access to Cologne’s city center as well as to other districts. At the same time, the location offers a retreat and relaxation. Nearby green spaces and parks invite you for walks, sports activities, or quiet moments outdoors and create a refreshing contrast to urban life.
Families also benefit from the excellent infrastructure with kindergartens, schools, and medical facilities in the area. The proximity to educational institutions and cultural offerings further adds a lively, inspiring touch to the district.
The location at Bachemer Straße 341 stands for a home with character – in a district that uniquely combines quality of life, long-term value, and a pleasant living experience.
The features of this garden apartment underscore the high standards of quality, comfort, and living atmosphere. All materials were selected with longevity, aesthetics, and a coherent overall impression in mind.
In the living area, elegant oak wood flooring lends a warm, natural elegance to the rooms. Combined with the comprehensive underfloor heating, this creates a cozy living feel that is pleasant in every season. Generous window areas ensure plenty of daylight and harmoniously connect the interior with views of nature.
The separate kitchen impresses with high-quality built-ins and stylish terracotta tiles that give the room a timeless, slightly Mediterranean touch. It is functionally designed and at the same time a place where cooking and enjoyment naturally come together.
The bedroom, together with the adjoining bright bathroom, forms a private retreat. The bathroom is designed to be light and cheerful and benefits from natural light and ventilation provided by the window. An additional, separately located guest WC sensibly complements the layout and increases everyday comfort.
Electric shutters in all rooms allow for convenient control of light, privacy, and, ultimately, enhance tranquility and living quality.
A standout feature is the two terraces as well as the garden allocated for exclusive use with the apartment. These outdoor areas extend the living space in an extraordinary manner and create a private, protected retreat amidst nature – a rarity in this location. Whether it’s a quiet start to the day or a relaxed evening wind-down, here living is truly an experience.
The offer is rounded off by a private, lockable cellar room, a very well-maintained communal laundry room, and a separate bicycle storage room. An underground parking space can be rented additionally if needed, completing the high level of comfort of this property.
Property characteristics
| Age | Over 5050 years |
|---|---|
| Layout | 2 bedroom |
| EPC | E - Wasteful |
| Price per unit | €9,054 / m2 |
| Condition | Good |
|---|---|
| Listing ID | 987165 |
| Usable area | 74 m² |
What does this listing have to offer?
| Balcony | |
| MHD 9 minutes on foot |
| Basement |
What you will find nearby
Still looking for the right one?
Set up a watchdog. You will receive a summary of your customized offers 1 time a day by email. With the Premium profile, you have 5 watchdogs at your fingertips and when something comes up, they notify you immediately.



























