House for sale • 250 m² without real estateHuglfing Huglfing Bayern 82386
Huglfing Huglfing Bayern 82386Public transport 2 minutes of walking • Parking • GarageMultigenerational House in Huglfing – Private Sale.
The house was built in 1982 to a high standard of quality. It is heated by an oil central heating system from 2008 with underfloor heating in every room.
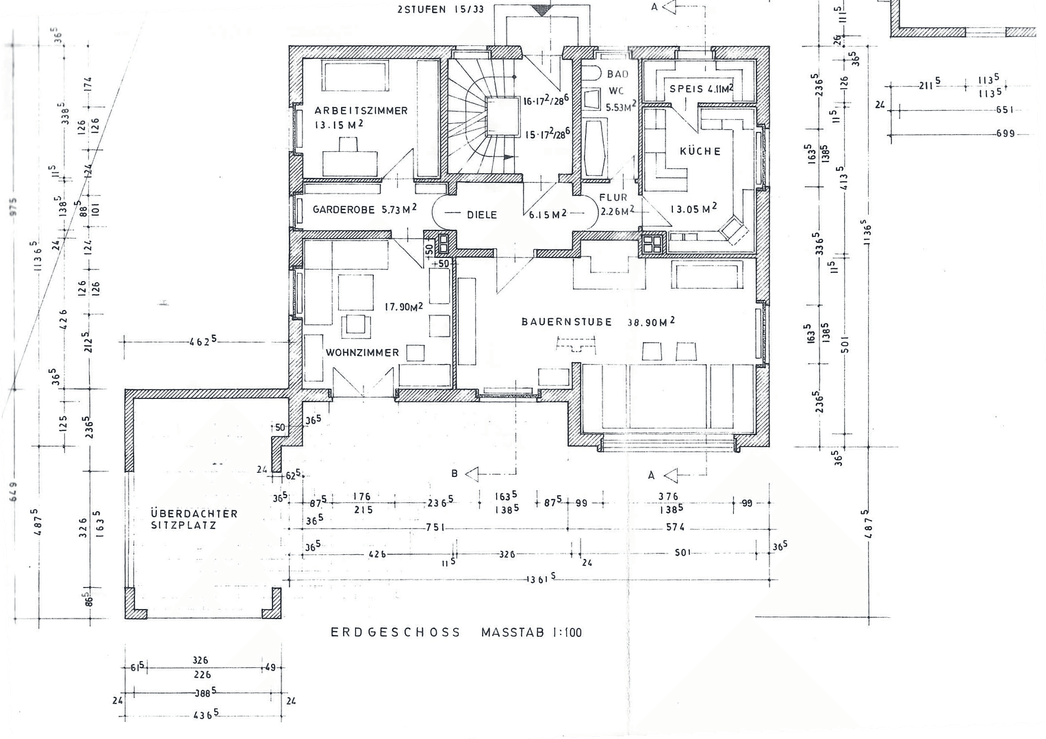
Ground Floor (1st Residential Unit):
In the ground-floor apartment, a central, built-in tiled stove with flues and electronic control was installed (2009). The tiled stove features a large viewing window into the living room and can be operated from the hallway. The ground-floor bathroom (shower & WC) and kitchen have been completely renovated. A storage room adjoins the kitchen.
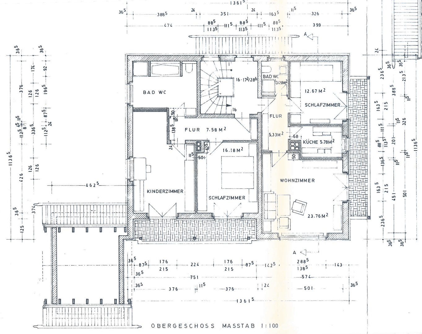
First Floor (Possibility of 2 Separate Residential Units):
The 3 (or 2/1) bedrooms on the first floor are fitted with cork flooring. The bathrooms (each with a shower & WC) have been renovated. The smaller residential unit includes a fitted kitchen and an east-facing balcony accessible from both the living room and the bedroom.
The second residential unit features a sheltered south-facing balcony accessible via the two bedrooms. The larger room has a tiled area that can also serve as a kitchenette.
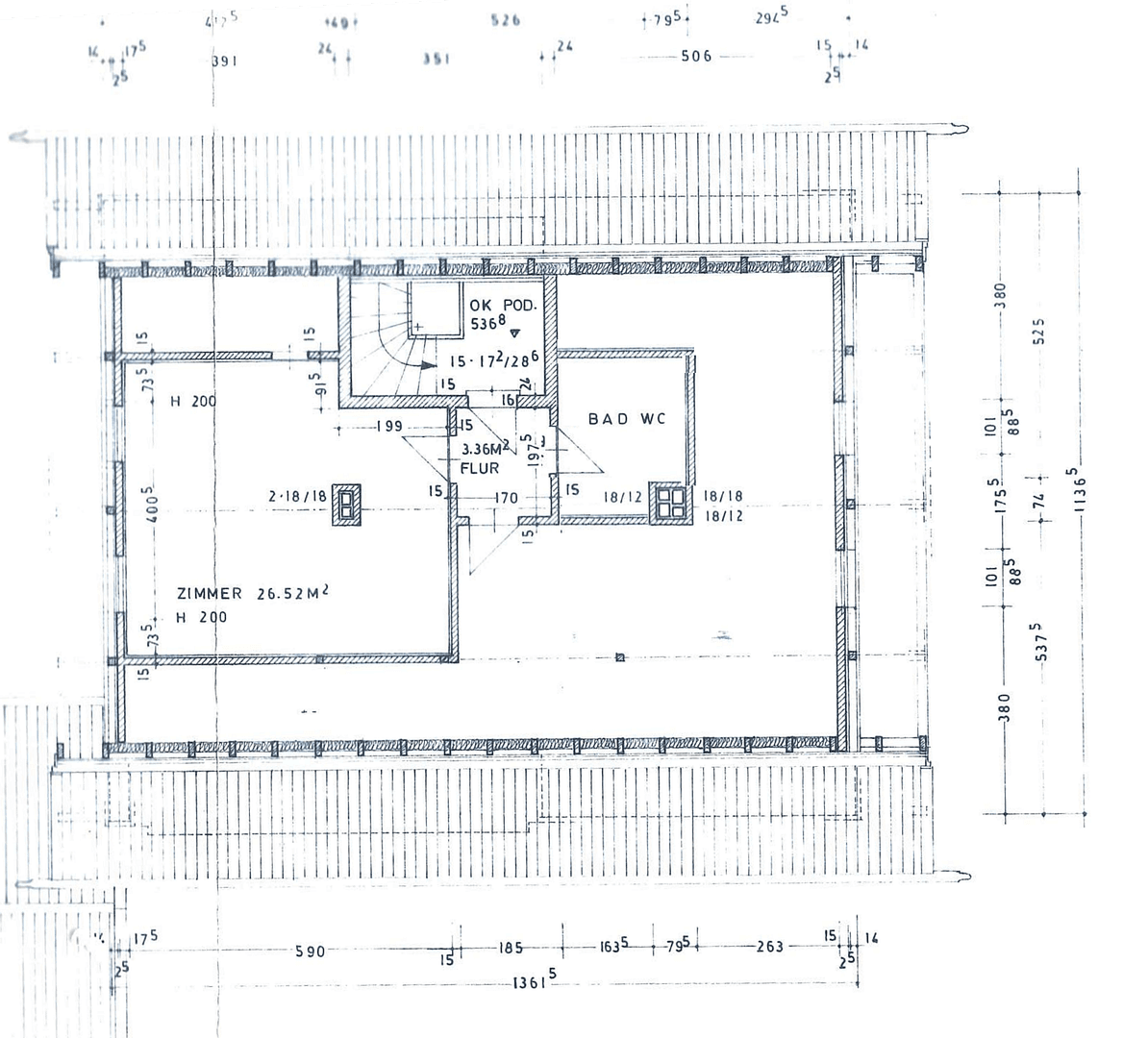
Second Floor:
The second floor consists of one large room and a renovated bathroom (shower & WC) with no height restrictions. Attached to this large room is a crawl space. The remainder of the floor is a bright storage area with an insulated floor. Within the storage area, three sleeping cubicles can be partitioned off with curtains. The crawl spaces are separated from the room by doors.
Basement:
The basement comprises a utility room, a guest WC, the boiler room, a large hobby room, and plenty of storage space.
Outdoor Area:
The house is surrounded by a charming garden. The property is enclosed by a fence made of larch wood. To the south of the house, there is a terrace and a large covered patio. On the north side, a large wooden deck can be found. There is a double garage, 2 parking spaces in front of the garages, as well as 2 additional parking spaces.
The house is located on the northern outskirts of Huglfing. Its elevated position above the village offers views of the Alps in the background. Just a few minutes’ walk away, one can enjoy the spectacular Alpine panorama during strolls.
A general practitioner’s surgery, a bakery, and an Edeka supermarket are within walking distance.
Distance to train station: 2 km
Distance to A95 (Sindelsdorf): 16 km / 13 minutes
Bedrooms on the first floor feature cork flooring.
The dining room and bedrooms on the ground floor have parquet flooring.
Hallways, kitchens, and bathrooms are tiled.
Property characteristics
| Age | Over 5050 years |
|---|---|
| Condition | After reconstruction |
| EPC | C - Economical |
| Land space | 931 m² |
| Price per unit | €5,000 / m2 |
| Available from | 04/02/2026 |
|---|---|
| Listing ID | 986975 |
| Usable area | 250 m² |
| Total floors | 4 |
What does this listing have to offer?
| Balcony | |
| Garage | |
| MHD 2 minutes on foot |
| Basement | |
| Parking | |
| Terrace |
What you will find nearby
Still looking for the right one?
Set up a watchdog. You will receive a summary of your customized offers 1 time a day by email. With the Premium profile, you have 5 watchdogs at your fingertips and when something comes up, they notify you immediately.










































