
Flat for sale 2 bedroom • 73 m² without real estate, Baden-Württemberg
, Baden-WürttembergPublic transport 1 minute of walking • ParkingThis bright and spacious 2-room apartment is located on the raised ground floor of a six-family house in Mariabrunn, a district of Eriskirch. The living area is approximately 73 m².
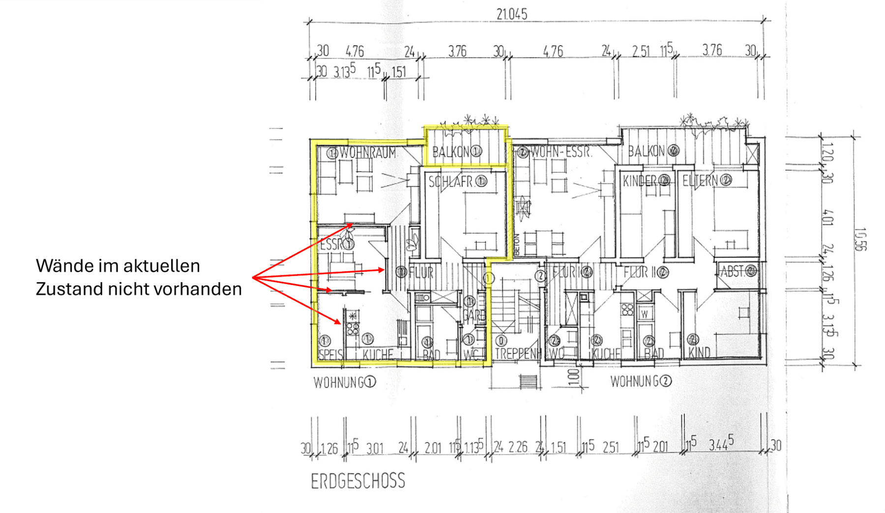
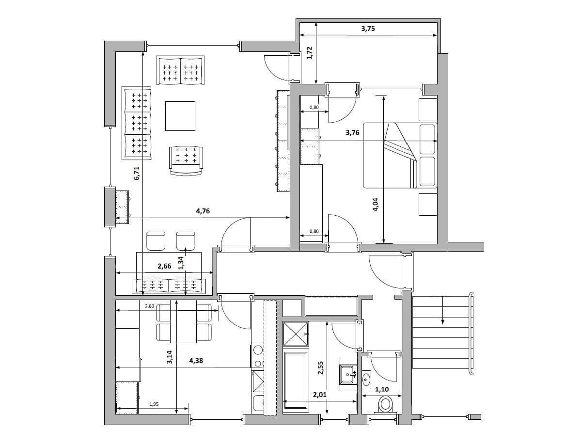
Originally planned as a three-room apartment (see floor plan), it is currently used as a two-room apartment. It is ideally suited for singles, couples, and as a holiday apartment.
The bathroom is functionally equipped with a shower, a bathtub, and a connection for a washing machine. In the basement, you have access to a laundry room that is currently used for a washing machine and/or a dryer.
The spacious kitchen features a high-quality fitted kitchen with a natural stone countertop and a glass backsplash, which remains in the apartment. The balcony is accessible from both the bedroom and the living room and is equipped with a remote-controlled awning.
In the living and sleeping rooms, real wood parquet flooring has been installed, while the other rooms are tiled. The apartment has been comprehensively renovated and is move-in ready immediately after our departure. During the renovation, a specialist company applied a fine plaster finish to the walls, the parquet was sanded down, all other floor coverings were renewed, and the windows were equipped with electric blinds. The balcony is fitted with an electric, remote-controlled awning.
The apartment includes a large basement room of approximately 15 m² as well as a carport parking space for your vehicle. The residential complex also offers a communal garden. The service charges include a caretaker service responsible for cleaning the communal areas and garden maintenance.
The entrance door to the building and the heating system were renewed in 2024.
The apartment is located in the Mariabrunn district of the Eriskirch municipality.
Mariabrunn is an idyllic part of the Eriskirch municipality, located directly on the northern shore of Lake Constance. The region is characterized by its natural surroundings and the immediate proximity to the Eriskirch Ried, an important nature reserve inviting for walks and wildlife observation. The Tettnanger Forest is just a few hundred meters away from the apartment, as is the trail along the Schussen that leads to Langenargen.
The infrastructure is well developed: within a radius of 2 km you will find shopping opportunities, doctors, pharmacies, kindergartens, and an elementary school.
A bus stop is located right next to the property, and Eriskirch train station offers rail connections to Ulm, Friedrichshafen, and Lindau. The federal highway B31 ensures quick access to the Lake Constance region.
A well-developed network of cycle paths, including the Lake Constance Cycle Path, further enhances mobility.
Property characteristics
| Age | Over 5050 years |
|---|---|
| Layout | 2 bedroom |
| EPC | D - Less economical |
| Price per unit | €3,685 / m2 |
| Condition | Good |
|---|---|
| Listing ID | 986946 |
| Usable area | 73 m² |
What does this listing have to offer?
| Balcony | |
| Parking |
| Basement | |
| MHD 1 minute on foot |
What you will find nearby
Still looking for the right one?
Set up a watchdog. You will receive a summary of your customized offers 1 time a day by email. With the Premium profile, you have 5 watchdogs at your fingertips and when something comes up, they notify you immediately.
















