Flat to rent 5+1 • 140 m² without real estateForstweg 4, , Lower Saxony
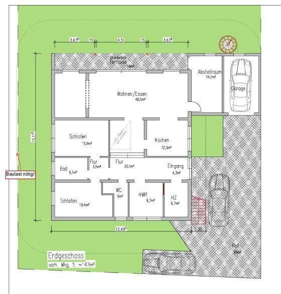
Forstweg 4, , Lower SaxonyPublic transport 2 minutes of walking • ParkingIn a quiet side street of a spacious single-family residential area and near the forest, this 5-room apartment is located on the ground floor of a two-family house. The house was comprehensively renovated in 2021. High-quality triple-glazed windows were installed, the facade insulated, and the bathrooms, hallways, and kitchen were laid with travertine limestone sand-lime stone tiles. The parquet in the bedrooms and living rooms is oak parquet. In the living room, there is a fireplace and large windows/sliding doors opening onto the garden. The rooms are high (up to 3 meters in the living room/kitchen area).
The actual living space is well over 140 square meters. The almost 30-square-meter terrace, as well as the storage and heating room, have not been included in that measurement. The apartment has its own independent heating and a spacious private entrance. Currently, the property is heated with a condensing oil-fired boiler. The previous tenants’ annual consumption was 80 liters per year. The installation of a heat pump is planned for 2026, and the system is already on site. The apartment also has its own solar thermal system for hot water production. Additionally, the apartment features an independent 3kW PV/solar system with a 7kW battery storage, generating approximately 3000 kWh of electricity for self-consumption. The existing garage also serves as a storage room for both rental parties. There are sufficient parking spaces on the street for additional cars, and with efficient parking, two cars could be parked consecutively in the driveway.
The garden area measures approximately 250 square meters, including spaces in front, behind, and beside the house/this ground floor apartment.
A very quiet single-family housing estate with gardens.
Friendly, personal neighborhood.
200 meters to the forest.
Approximately 3 km to the center of Melle.
(Specified property description.)
Property characteristics
| Age | Over 5050 years |
|---|---|
| Condition | After reconstruction |
| Listing ID | 986824 |
| Price per unit | €8 / m2 |
| Available from | 01/06/2026 |
|---|---|
| Layout | 5+1 |
| Usable area | 140 m² |
What does this listing have to offer?
| Parking | |
| Terrace |
| MHD 2 minutes on foot |
What you will find nearby
Still looking for the right one?
Set up a watchdog. You will receive a summary of your customized offers 1 time a day by email. With the Premium profile, you have 5 watchdogs at your fingertips and when something comes up, they notify you immediately.




















