Office to rent • 133 m² without real estate, Hesse
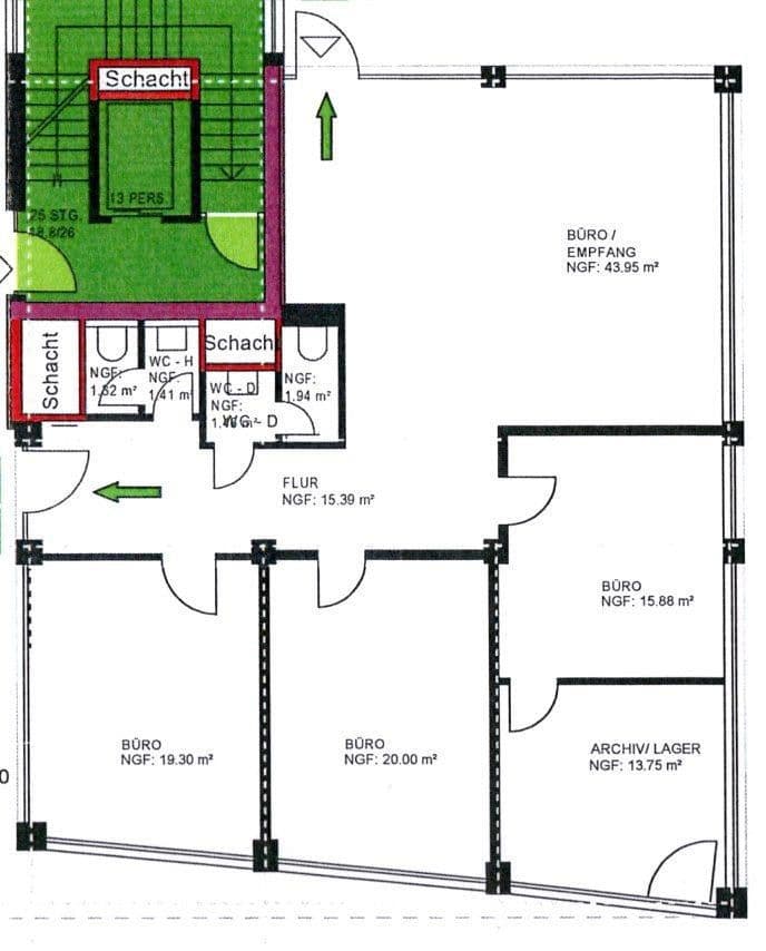
, HessePublic transport 2 minutes of walking • LiftThe property is a well-maintained, six-story commercial building with retail, office, and practice units. It offers a ground-floor office/practice/law office space in a highly frequented location and in the immediate vicinity of the central bus station (ZOB) and the main train station (HBF). Through a large, open reception/large open-plan office area, you can access three adjacent rooms. All are equipped with generous shop window areas, making them full of natural light and thus ideally suited for various service companies. In addition to the open-plan area, there is a corridor with a kitchenette as well as a storage room and two restrooms. In the underground garage belonging to the commercial building, there is the possibility to rent parking spaces.
The location of the commercial building is characterized by its infrastructural centrality. It is located right by the central bus station and just a 2-minute walk from the ICE/main train station. By car, the highways in the north-south and east-west directions can be reached in no time, and the airport is also reachable within an hour via the A66.
Surrounding the office complex—and directly connected—is the main shopping street "Bahnhofstraße," which features consumer stores, fashion outlets, drugstores, pharmacies, as well as a DHL facility in the building opposite.
The rooms are spacious with high ceilings, which creates an open and pleasant atmosphere. The reception area has been equipped with a designer wood-effect floor, and the remaining spaces feature carpet flooring. An air conditioning system is installed, and there are built-in ceiling lights.
Viewings can only be arranged on request and in consultation with the current tenant.
Property characteristics
| Age | Over 5050 years |
|---|---|
| Condition | Good |
| Land office | 133 m² |
| Available from | 01/04/2026 |
|---|---|
| Listing ID | 986130 |
| Price per unit | €0 / m2 |
What does this listing have to offer?
| Wheelchair accessible | |
| Lift |
| Basement | |
| MHD 2 minutes on foot |
What you will find nearby
Still looking for the right one?
Set up a watchdog. You will receive a summary of your customized offers 1 time a day by email. With the Premium profile, you have 5 watchdogs at your fingertips and when something comes up, they notify you immediately.






