
Office to rent • 112 m² without real estateDortmund Wickede Nordrhein-Westfalen 44319
Dortmund Wickede Nordrhein-Westfalen 44319Public transport 1 minute of walkingA fully renovated commercial unit is offered.
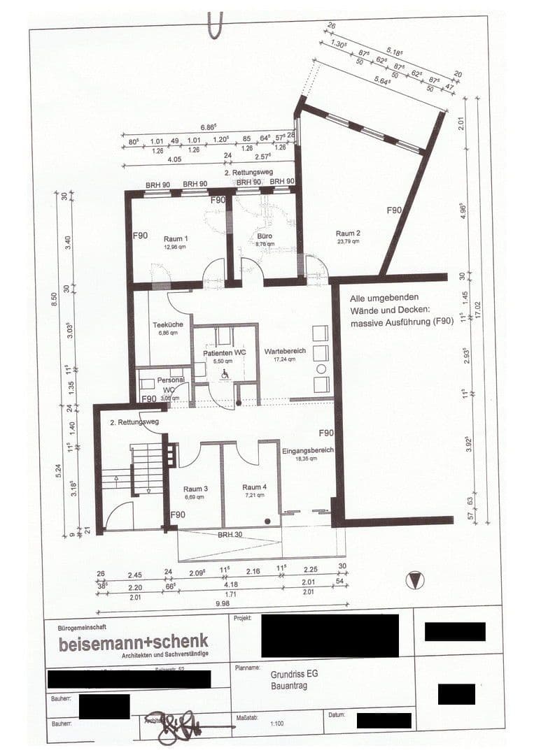
It is particularly suitable for use as a practice (naturopath, occupational therapy, etc.).
The property has been designed to be barrier-free. There is an external entrance with a ramp, for example, for those with mobility difficulties or wheelchair users.
Additionally, access via the staircase is possible.
The doors are electrically operated (front door and stairwell door).
There is a barrier-free patient restroom and an employee restroom available.
The premises are heated via a natural gas-operated underfloor heating system and feature a central ventilation system with heat recovery.
The property is located in a central location. The tram/bus (lines U43, NE 3, R51, 425) and S-Bahn (S4) are approximately a five-minute walk away.
Access to the highways A40 / A1 is very good.
Shopping facilities (bakery, grill restaurant, DHL, Hermes, mailbox...) are also within a maximum five-minute walk.
Furthermore, schools (primary school) can be reached on foot in about 5 to 10 minutes.
The property comprises a total of five rooms, two restrooms, a kitchenette, and a lounge (waiting area).
The lighting is integrated into the ceiling and can be dimmed in terms of color temperature and brightness for the most part.
The electrical installation is modernly implemented and offers numerous possibilities for connecting electrical devices.
LAN cables have been installed in the rooms, allowing for a centralized, wired internet connection. The building is currently connected to the internet via copper cables; a fiber optic connection has already been prepared.
Property characteristics
| Age | Over 5050 years |
|---|---|
| Listing ID | 985653 |
| Price per unit | €10 / m2 |
| Condition | Very good |
|---|---|
| Land office | 112 m² |
What does this listing have to offer?
| Wheelchair accessible |
| MHD 1 minute on foot |
What you will find nearby
Still looking for the right one?
Set up a watchdog. You will receive a summary of your customized offers 1 time a day by email. With the Premium profile, you have 5 watchdogs at your fingertips and when something comes up, they notify you immediately.













