
House for sale 4+1 • 120 m² without real estate, Baden-Württemberg
Your new home: Charming terraced mid-house in an idyllic location.
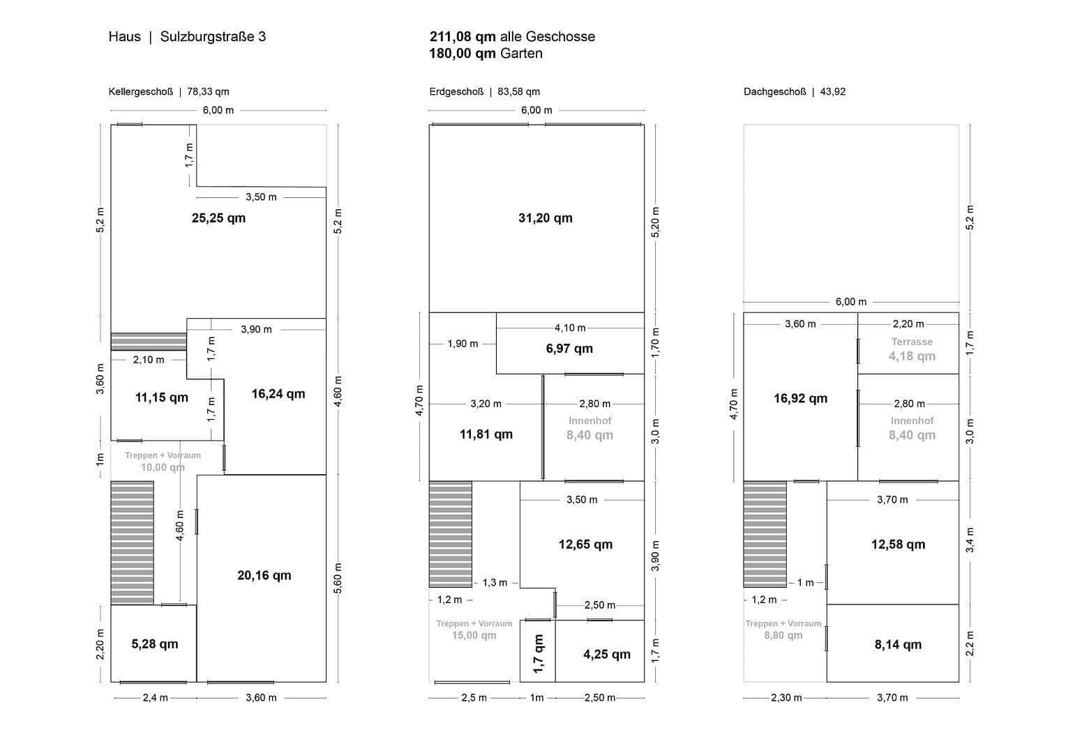
Welcome to this well-maintained terraced mid-house on the Guckenrain in 73265 Dettingen unter Teck – a quiet, family-friendly environment offering plenty of living comfort.
Upon entering, you are greeted by a well-thought-out layout: Directly to the right is the cozy master bedroom, which is bathed in natural light thanks to the adjoining inner courtyard of approximately 9 m².
Next door, there is a stylish bathroom with a shower-tub combination as well as a separate guest toilet.
Straight ahead, you arrive at the open dining area, complemented by a kitchen that is spatially set apart. Continuing down the hallway, you reach the heart of the house – the impressive living room with high ceilings and a floor-to-ceiling window wall that reveals views of the secluded garden.
In the colder months, the charming soapstone stove provides pleasant warmth throughout the living area.
A beautiful, well-preserved wooden staircase leads you to the upper floor. Here you will find a spacious bathroom with a shower, a guest, study or children's room, and another spacious children's room with access to a small balcony in the light-filled courtyard. The Mediterranean atmosphere and clever architecture ensure that all rooms are bathed in light.
In the basement, four versatile rooms are available – perfect as a hobby room, home office, storage area, or utility room. The largest of these rooms also provides direct access to the garden.
The outdoor area impresses with a generous, wind-protected sun terrace that guarantees privacy and relaxation. There is ample space for garden furniture, a pool, or other individual design possibilities.
A parking space in the underground garage is also available, offering secure parking for your car. Additionally, further parking spaces for bicycles or motorcycles are provided for communal use.
This charming house combines quality living with thoughtful architecture and invites you to make it your new home. Be inspired!
The property is located in an attractive residential area at Guckenrain in Dettingen unter Teck (ZIP 73265), a quiet and established neighborhood on the edge of town with high recreational value. The elevated location offers a pleasant living climate as well as, in parts, beautiful views of the surrounding nature and the Alb escarpment.
Dettingen unter Teck impresses with its excellent infrastructure and proximity to nature. Shopping opportunities for everyday needs, kindergartens, schools, doctors, and dining options are available in town and can be reached within minutes. The historic old town of Kirchheim unter Teck with its diverse shopping and cultural offerings is only a few minutes away by car.
The surroundings invite numerous recreational activities: walking and cycling paths, vineyards, as well as hiking trails towards the Swabian Alb begin almost at your doorstep. At the same time, connections to the regional and supra-regional transportation network are very good. Via the nearby federal highways and the A8 motorway, Stuttgart, the airport, and the trade fair center are quickly accessible. Public transport offers regular connections to the surrounding cities and towns.
Thus, the location at Guckenrain combines quiet, nature-oriented living with very good accessibility to urban centers – an ideal setting for families, commuters, and nature lovers alike.
The property has recently been comprehensively and beautifully renovated and presents itself in a modern yet Mediterranean style. A new, energy-efficient heating system ensures contemporary living comfort. The heating concept is complemented by a stove that not only provides cozy warmth on cooler days but also creates a particularly inviting atmosphere.
The bathroom has been completely renewed and impresses with modern fixtures, high-quality sanitary elements, and a stylish design. New tiles in an Italian-Mediterranean style give the rooms an elegant yet homely ambiance, underlining the overall high-quality impression of the property.
The tasteful choice of materials and the fresh renovation make this property move-in ready and ideal for buyers who value quality, style, and comfort.
Property characteristics
| Age | Over 5050 years |
|---|---|
| Condition | After reconstruction |
| Listing ID | 985641 |
| Land space | 280 m² |
| Price per unit | €5,583 / m2 |
| Available from | 30/01/2026 |
|---|---|
| Layout | 4+1 |
| Usable area | 120 m² |
| Total floors | 1 |
What does this listing have to offer?
| Balcony | |
| Garage | |
| MHD 1 minute on foot |
| Basement | |
| Parking | |
| Terrace |
What you will find nearby
Still looking for the right one?
Set up a watchdog. You will receive a summary of your customized offers 1 time a day by email. With the Premium profile, you have 5 watchdogs at your fingertips and when something comes up, they notify you immediately.












