
Flat for sale 2 bedroom • 67 m² without real estate, Rhineland-Palatinate
This meticulously maintained and recently renovated 2-room apartment with a south-facing balcony impresses with its quiet countryside location and a functional layout – ideal for investors.
The apartment is located in a six-unit building in Erbes-Büdesheim near Alzey and offers approximately 67 m² of living space. After the current tenant moves out at the end of March, the unit will be available rent-free and can be flexibly re-let or owner-occupied. The apartment was last rented at 9.90 euros per square meter (net), plus a parking space fee.
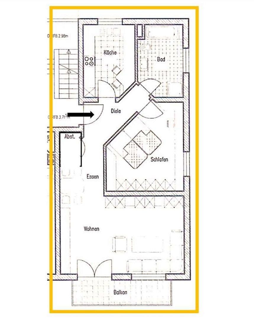
Room Layout & Features:
- Separate kitchen with space for a small dining or breakfast nook
- Open plan living/dining room with access to the south-facing balcony
- Bedroom with ample space
- Daylight bathroom with shower and bathtub
- Storage room within the apartment
- Large basement storage room with a window
- Private parking space
As part of the renovation in 2024, the flooring and wall coverings were updated, giving the apartment a modern and well-kept appearance. Durable click vinyl flooring was installed, the walls were newly papered with lightly textured wallpaper, and the entire apartment was painted white.
The monthly service charge is 299.39 euros, of which 173.65 euros are chargeable.
A spacious, brick-walled basement room with a window, as well as the associated parking space directly in front of the building, complete the offering. The parking space can be purchased additionally for 8,000 euros.
The apartment is located in a quiet rural area in Erbes-Büdesheim, a well-established community in the Alzey-Worms district. The surrounding area is characterized by residential developments, natural landscapes, and short distances to the surrounding region – ideal for tenants who value peace and a pleasant living environment.
Erbes-Büdesheim offers basic infrastructure, including a kindergarten and other essential amenities. Schools, doctors, as well as an extended range of retail and service offerings, can be found in nearby Alzey, which is within a few minutes’ drive.
Transportation is good: fast connections towards Mainz, Worms, and Kaiserslautern are available via Bundesstraße B271 and the A61 motorway. Alzey train station also offers regular train connections to the Rhein-Main and Rhein-Neckar regions.
Property characteristics
| Age | Over 5050 years |
|---|---|
| Layout | 2 bedroom |
| Listing ID | 985453 |
| Price per unit | €2,672 / m2 |
| Condition | After reconstruction |
|---|---|
| Floor | 1. floor out of 3 |
| Usable area | 67 m² |
What does this listing have to offer?
| Balcony | |
| Parking |
| Basement | |
| MHD 2 minutes on foot |
What you will find nearby
Still looking for the right one?
Set up a watchdog. You will receive a summary of your customized offers 1 time a day by email. With the Premium profile, you have 5 watchdogs at your fingertips and when something comes up, they notify you immediately.















