House for sale 6+1 • 161 m² without real estate, Baden-Württemberg
Below is the English translation of the text marked by the tag:
Gerne präsentieren wir Ihnen ein gepflegtes und modernisiertes Reihenmittelhaus in Bad Friedrichshall-Jagstfeld in einem ruhigen Wohnviertel. Auf rund 161 m² Wohnglück erwartet Sie ein durchdachtes Wohnkonzept mit sechs Zimmern auf mehreren Ebenen – ideal für Familien mit Platzbedarf. Im Dachgeschoss ist ein eigenes Reich mit Badezimmer & WC für Eltern möglich, oder auch als separate Wohneinheit denkbar.
The pleasure is ours to present to you a well-maintained and modernized terraced semi-detached middle house in Bad Friedrichshall-Jagstfeld, located in a quiet residential area. On approximately 161 m² of living space, a well-conceived living concept awaits you with six rooms spread over several levels – ideal for families in need of space. In the attic, there is the possibility of a private haven with a bathroom and toilet for the parents, or it can alternatively be considered as a separate residential unit.
Das Grundstück umfasst ca. 216 m² und bietet eine Terrasse mit Gartenanteil sowie eine Einzelgarage, mit Zugang direkt über das eigene Grundstück.
The property covers about 216 m² and offers a terrace with a garden area as well as a single garage with direct access from the property.
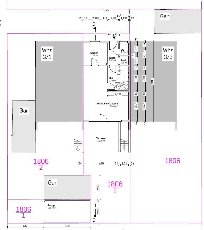
Im Erdgeschoss befindet sich der helle Wohnbereich mit offener Küche. Große Fenster sorgen für eine angenehme Wohnatmosphäre. Von hier gelangen Sie direkt auf die Terrasse – ideal für entspannte Stunden im Freien. Ein Gäste-WC ergänzt diese Ebene.
On the ground floor, you will find the bright living area with an open kitchen. Large windows create a pleasant living atmosphere. From here, you have direct access to the terrace – perfect for relaxed hours outdoors. A guest toilet completes this level.
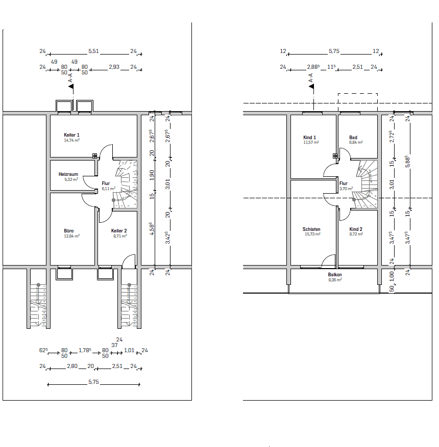
Im Obergeschoss stehen drei Schlafzimmer zur Verfügung, eins davon mit Zugang zum Balkon. Das Tageslichtbad ist mit Badewanne und Dusche ausgestattet und bietet ausreichend Platz.
On the upper floor, three bedrooms are available, one of which has access to a balcony. The daylight bathroom is equipped with both a bathtub and a shower and offers ample space.
Das Kellergeschoss verfügt über drei Nutzräume sowie einen großzügigen Hobbyraum mit Tageslicht – nutzbar als Fitnessbereich, Büro oder Spielzimmer. Ein Nutzraum mit Zugang zur Terrasse kann als Sommerküche genutzt werden.
The basement features three utility rooms as well as a spacious hobby room with daylight – usable as a fitness area, office, or playroom. A utility room with access to the terrace can be used as a summer kitchen.
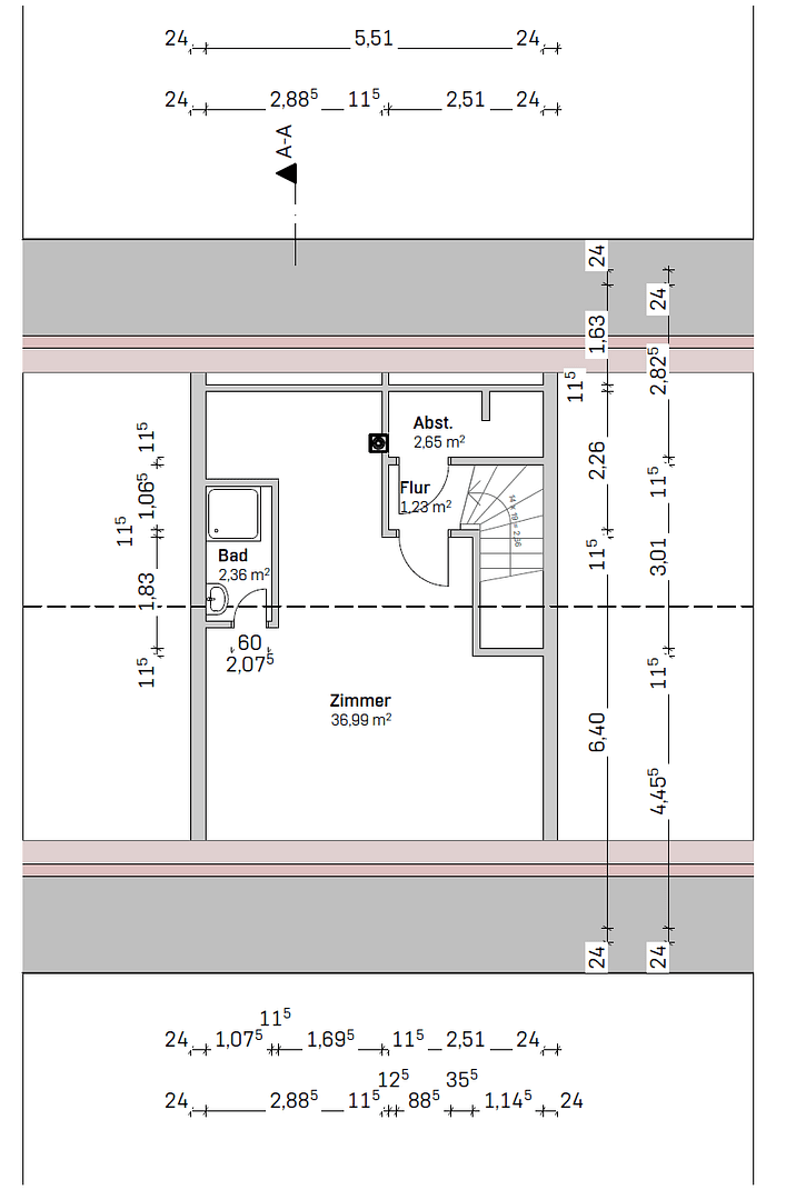
Das Dachgeschoss bietet auf 43 qm² ein eigenes Reich mit Badezimmer und Gäste-WC.
The attic offers its own private domain over 43 m² with a bathroom and a guest toilet.
Die Lage in Bad Friedrichshall überzeugt durch eine ruhige Wohnstraße, gute Anbindung, kurze Wege zu Einkaufsmöglichkeiten, Schulen und Kindergärten – ideal für den Familienalltag.
Bad Friedrichshall-Jagstfeld ist eine gewachsene und gut angebundene Stadt im Landkreis Heilbronn. Der Standort bietet eine vollständige Infrastruktur mit Schulen, Kindergärten, Ärzten und Einkaufsmöglichkeiten sowie vielfältigen Sport- und Freizeitangeboten. Die Nähe zum Naherholungsgebiet Kocher- und Neckartal, kurze Wege zu den Stadtteilen Kochendorf sowie eine gute Anbindung an den öffentlichen Nahverkehr prägen die Wohnqualität. Auch die Bundesstraßen und die Autobahnanschlüsse in Richtung Heilbronn und Neckarsulm sind schnell erreichbar – attraktiv für Familien und Berufstätige.
The location in Bad Friedrichshall impresses with a quiet residential street, good connectivity, and short distances to shopping facilities, schools, and kindergartens – ideal for family everyday life.
Bad Friedrichshall-Jagstfeld is a well-established and well-connected town in the Heilbronn district. The area offers complete infrastructure with schools, kindergartens, doctors, and shopping opportunities, as well as a variety of sports and leisure activities. The proximity to the Kocher and Neckar valleys recreational area, the short distances to the Kochendorf districts, and a good connection to public transportation all contribute to the high quality of living. Additionally, the federal highways and motorway connections toward Heilbronn and Neckarsulm are quickly accessible – an attractive feature for families and professionals.
Treten Sie ein in Ihr neues, komfortables und geräumiges Heim! Das Haus öffnet sich mit einem einladenden Flur, der Sie direkt zum Gäste-WC und einer Garderobenecke führt. Die großzügige Küche bietet genug Platz, um Ihre kulinarischen Fähigkeiten zu entfalten. Der Wohn- und Essbereich mit direktem Zugang zur Terrasse lädt zu geselligen Abenden mit der Familie oder Freunden ein.
Step into your new, comfortable, and spacious home! The house opens into an inviting hallway that leads you directly to the guest toilet and a cloakroom nook. The generous kitchen offers plenty of space to unleash your culinary talents. The living and dining area, with direct access to the terrace, invites you to enjoy convivial evenings with family or friends.
Im Obergeschoss erwarten Sie drei geräumige Schlafzimmer, von denen ein Zimmer über einen eigenen Zugang zum Balkon verfügt und somit einen schönen Rückzugsort bieten. Das Badezimmer mit Tageslicht ist sowohl funktional als auch gemütlich gestaltet und bietet Platz für Entspannung nach einem langen Tag.
On the upper floor, you will find three spacious bedrooms, one of which has its own access to the balcony and thus provides a lovely retreat. The daylight bathroom is designed to be both functional and cozy, offering space to relax after a long day.
Das Dachgeschoss bietet einen weiteren Wohnraum mit eigenem Badezimmer und WC.
The attic provides an additional living space with its own bathroom and toilet.
Das Kellergeschoss bietet zusätzlichen Stauraum und viele Nutzungsmöglichkeiten. Hier finden Sie ausreichend Platz für Hobbys oder als Abstellfläche. Ein separater Hobbyraum, Technikraum und ein Heizraum runden das Angebot ab.
The basement offers additional storage and many possibilities for use. Here you will find plenty of space for hobbies or as a storage area. A separate hobby room, a technical room, and a heating room complete the offering.
+++ Energieausweis liegt zur Besichtigung vor +++ +++ Bitte geben Sie bei Anfragen Ihre Adresse und Telefonnummer an, um eine schnelle Kontaktaufnahme zu ermöglichen. +++
+++ Energy certificate available for viewing +++
+++ Please provide your address and telephone number when inquiring to enable prompt contact. +++
Die Wohnfläche wurde gemäß der Verordnung DIN 277 ermittelt.
The living area has been determined in accordance with DIN 277.
Makleranfragen unerwünscht! Nach § 7 UWG sind unaufgeforderte Kontaktaufnahmen durch Makler ohne ausdrückliche Einwilligung des Empfängers verboten!
Estate agent inquiries are not desired! According to § 7 UWG, unsolicited contacts by estate agents without the explicit consent of the recipient are prohibited!
Angaben gemäß § 5 DDG
Information in accordance with § 5 DDG
KVLB Invest GmbH
Allee 40
74072 Heilbronn
Tel.: 07131/6188375
KVLB Invest GmbH
Allee 40
74072 Heilbronn
Tel.: 07131/6188375
Registereintrag:
Eintragung im Handelsregister.
Registergerichts: Amtsgericht Stuttgart
Registernummer: B 783884
Registry entry:
Registered in the Commercial Register.
Registry Court: Amtsgericht Stuttgart
Registration Number: B 783884
Property characteristics
| Age | Over 5050 years |
|---|---|
| Condition | After reconstruction |
| Listing ID | 985405 |
| Usable area | 161 m² |
| Total floors | 3 |
| Available from | 28/01/2026 |
|---|---|
| Layout | 6+1 |
| EPC | D - Less economical |
| Land space | 216 m² |
| Price per unit | €3,528 / m2 |
What does this listing have to offer?
| Balcony | |
| Garage | |
| MHD 2 minutes on foot |
| Basement | |
| Parking | |
| Terrace |
What you will find nearby
Still looking for the right one?
Set up a watchdog. You will receive a summary of your customized offers 1 time a day by email. With the Premium profile, you have 5 watchdogs at your fingertips and when something comes up, they notify you immediately.


































