
Flat to rent 2+kk • 38 m² without real estateZenklova, Prague - Libeň
Interested?
Communicate all private owners and save CZK 22,000 on commissions.
Přímý majitel nabízí k pronájmu nedávno rekonstruovaný světlý byt o dispozici 2+kk o celkové ploše 38 m², který díky své promyšlené dispozici a dostatku úložného prostoru nabízí útulné bydlení pro jednotlivce či pro mladý pár.
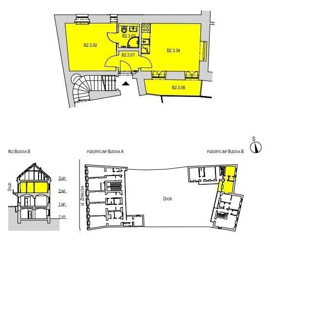
Byt se nachází ve druhém patře trojpodlažního cihlového domu. Z obývacího pokoje s kuchyňským koutem se vstupuje na terasu o rozloze 5 m² s výhledem do klidného vnitrobloku/dvoru. Pod okny ložnice se pak nachází soukromá zástavba na břehu potoka Rokytky, jedná se tedy celkově o velmi klidný byt. Dopravně je ale výborně dostupný – zastávka tramvaje Libeňský zámek je téměř před vchodem do domu, odtud jsou to pouhé dvě zastávky na metro B – Palmovka.
Interiér bytu je částečně vybaven – v ložnici je vestavěná skříň a čalouněný rám postele. Kuchyňská linka zahrnuje ledničku s mrazákem, pračku, myčku, mikrovlnku, varnou desku s troubou. Pohovka není součástí vybavení (fotka pořízená před vyklizením).
Do domu je právě zaváděna optická přípojka, která zajistí vysokorychlostní internet. V případě zájmu je možné poptat u SVJ možnost parkování ve vnitrobloku.
Byt je čerstvě vymalovaný a volný ihned k nastěhování. V případě zájmu mě neváhejte kontaktovat prostřednictvím zpráv na komunikační platformě a domluvíme si prohlídku bytu.
Property characteristics
| Available from | 27/01/2026 |
|---|---|
| Building construction | Brick |
| Fully furnished | Partly |
| Listing ID | 985280 |
| Usable area | 38 m² |
| Condition | After reconstruction |
|---|---|
| Layout | 2+kk |
| Floor | 2. floor out of 3 |
| Location | Quiet area |
| Price per unit | CZK 579 / m2 |
What does this listing have to offer?
| Terrace: 5 m² |
What you will find nearby
Interested?
Communicate all private owners and save CZK 22,000 on commissions.
Still looking for the right one?
Set up a watchdog. You will receive a summary of your customized offers 1 time a day by email. With the Premium profile, you have 5 watchdogs at your fingertips and when something comes up, they notify you immediately.











