House for sale 2 bedroom • 56 m² without real estate, Lower Saxony
In Sandhorst, in the year 2025, on an approximately 679 m² freehold property located about 900 meters from the forest, this attractive double bungalow with two high-quality units was built. The renowned developer and all the craft companies are specialists from the region. This bungalow has about 56 m² of living space. The front unit has already been sold.
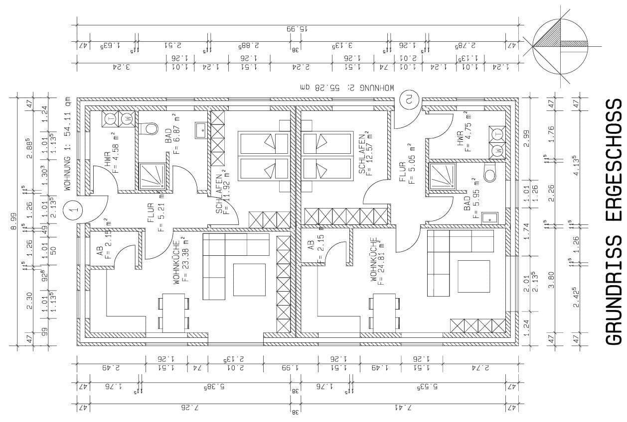
On the ground floor there is a spacious, light-flooded “living kitchen” with floor-to-ceiling window elements and direct access to the terrace. A bedroom, a bathroom, a storage room for supplies, a utility room with a washing machine connection, and a hallway complete the ground floor.
Please refer to the attached floor plan sketches for the complete room layout.
The entire house features underfloor heating. Additional living benefits include a decentralized supply and exhaust ventilation system from Bosch with heat recovery, triple-insulated PVC windows (anthracite) with electric roller shutters, the Bosch air source heat pump, a satellite dish, and house connections. All ceilings on the ground floor are papered with textured wallpaper and painted, while the walls are painted white. The intermediate beam ceiling is insulated, and additional expansion potential is available in the attic. The floor in the ground floor’s hallway and “living, dining and cooking” area, the storage room, and the bedroom will be equipped with vinyl design flooring (standard installation). The bathroom with a walk-in shower and the utility room will be tiled. The outdoor area, including the paving of the walkways, the parking space, and the terrace as well as the landscaping (sod seeding), has been completed by us. The fitted kitchen is not included in the purchase price and can be offered as an additional option.
This fantastic double bungalow was finished with high-quality clinker brick (Röben “Sheffield”) and the roof was covered with black roof tiles.
In the outdoor area you will have your own garden, a terrace, and a parking space at your disposal.
The purchase of the property is commission-free for the buyer. The asking price of €249,000 applies to unit No. 2 (rear, with a larger garden area on a 481 m² plot). The front unit No. 1 has already been sold.
An energy certificate will be handed over to the interested party during the viewing or provided later!
This property is located in a quiet residential area, approximately 800 meters from the Enercon plant. A forest is located about 900 meters away.
Property characteristics
| Age | Over 5050 years |
|---|---|
| Listing ID | 985230 |
| Usable area | 56 m² |
| Price per unit | €4,446 / m2 |
| Layout | 2 bedroom |
|---|---|
| EPC | A - Extremely economical |
| Land space | 481 m² |
What does this listing have to offer?
| Parking | |
| Terrace |
| MHD 3 minutes on foot |
What you will find nearby
Still looking for the right one?
Set up a watchdog. You will receive a summary of your customized offers 1 time a day by email. With the Premium profile, you have 5 watchdogs at your fingertips and when something comes up, they notify you immediately.









