
Flat to rent 2+kk • 73 m² without real estateIn den Wingerten 28, , Rhineland-Palatinate
In den Wingerten 28, , Rhineland-PalatinatePublic transport 6 minutes of walking • ParkingAt a glance:
Available: from April 2026 (In consultation, moving in immediately might be possible)
Cold rent: €920,-
Heating costs included in ancillary costs: Yes
Ancillary costs: €180,-
Warm rent: €1,100,-
Deposit: €2,760,-
Property type: Annex apartment
Construction: Solid construction
Roof style: Flat roof
Kitchen: Fitted kitchen
Non-smoking: Yes
Number of rooms: 2.5
Number of bedrooms: 1
Number of bathrooms: 1
Number of balconies/terraces: 1
Living area: approx. 73 m²
Windows: Triple glazing
Heating type: Heat pump
Floor: Vinyl parquet and tiles
Total number of floors: 1
Energy demand: 16 kWh/(m²•a)
Primary energy demand: 28 kWh/(m²•a)
Energy efficiency class: A+
Description:
State-of-the-art annex apartment in an architect-designed building with an E-parking space and a spacious privatized terrace for a single person or couple in Diez.
Beautiful approximately 73 m² of living space with an optimally planned layout.
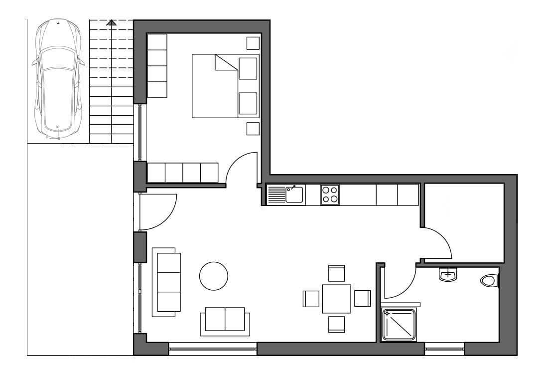
Layout:
Interior:
- Entrance, living and dining area with kitchen, storage room, bedroom, bathroom
Exterior:
- Terrace, E-parking space
Features and Details:
The architecturally sophisticated flat-roofed building was constructed in 2022 to meet KfW 55 energy efficiency standards.
The rooms of the annex apartment are heated by underfloor heating, which is controlled via digital thermostats (with an app function). The windows are equipped with electrically controlled venetian blinds. Thanks to LAN connections, the rooms are ideally suited for a home office. All walls and ceilings have been covered with white painter’s fleece.
The stylish, spacious fitted kitchen and its integrated high-quality appliances (dishwasher, ceramic hob with integrated extractor hood, refrigerator, freezer, etc.) are included in the rental.
In the generous, practical storage room directly adjacent to the kitchen, there is room to accommodate a washing machine, dryer, and much more.
In the luxurious bathroom featuring a floor-level rain shower, the highest value was placed on both design and quality when selecting the sanitary fixtures.
One of many highlights of the apartment is the expansive approximately 24 m² terrace with an electric awning that invites cozy summer barbecues with friends and acquaintances. During both the development of the apartment and the design of the outdoor area, the architect placed great emphasis on optimally ensuring the privacy of the occupants.
The apartment also includes a directly adjacent E-car parking space with a modern glazed fall protection system that makes searching for parking a thing of the past.
Everything about the Location:
The annex apartment is located in a new development area in the former residential town of Diez an der Lahn in the Rhein-Lahn district of Rhineland-Palatinate. Diez is the administrative center of the eponymous collective municipality and fulfills the function of a medium-sized center according to Rhineland-Palatinate state planning. Together with the immediately adjacent Hessian town of Limburg an der Lahn, it forms an inter-state twin center with about 45,000 inhabitants. The center of Diez is situated four kilometers southwest of Limburg an der Lahn and 31 kilometers east of Koblenz. The landscape around Diez is part of the Rhenish Slate Mountains, with the Lahn valley forming the border between the lower mountain range of the northern Westerwald and the rising Taunus to the south.
Infrastructure (within 5 km):
Pharmacy, discount grocery store, doctors, public transportation, and much more.
Property characteristics
| Age | Over 5050 years |
|---|---|
| Condition | Very good |
| Listing ID | 984898 |
| Usable area | 73 m² |
| Available from | 01/04/2026 |
|---|---|
| Layout | 2+kk |
| EPC | A - Extremely economical |
| Price per unit | €13 / m2 |
What does this listing have to offer?
| Parking | |
| Terrace |
| MHD 6 minutes on foot |
What you will find nearby
Still looking for the right one?
Set up a watchdog. You will receive a summary of your customized offers 1 time a day by email. With the Premium profile, you have 5 watchdogs at your fingertips and when something comes up, they notify you immediately.




















