House for sale 4+1 • 128 m² without real estate, Saxony
, SaxonyPublic transport 1 minute of walking • GarageTwo adjoining plots of land are for sale. On the rear plot stands the single-family house along with a double garage. The front plot is undeveloped and offers the opportunity to construct an additional single-family home. All connection fees for both plots have already been paid.
The modern and lovingly designed single-family house is located in a quiet residential area in Radeberg. Schools, kindergartens, doctors, public transportation, and leisure facilities are conveniently reachable on foot. The house was built in 1997 in a solid construction style and has been continuously modernized since then—most recently in 2022 with a high-quality exterior paint job.
A true highlight is the spacious terrace with an electric awning, the covered pool area, as well as the wellness and fitness area in the heated basement. The solar system, rainwater cistern, and many other features complete this offer.
Radeberg is located northeast of Dresden and offers excellent infrastructure as well as a high quality of life. Shopping facilities, schools, kindergartens, and doctors are in the immediate vicinity and easily accessible by foot. The quiet location combines living close to nature with the quick accessibility of the state capital, Dresden.
• Complete exterior repainting
• Roof insulation in the attic
• Radiators in the basement rooms
• Smart-home features for radiator thermostats and underfloor heating
• Electric shutter controls
• Anker Pro solar battery (4.8 kW, expandable) / solar installation
&
• Solid construction with proton bricks and 4 cm external insulation
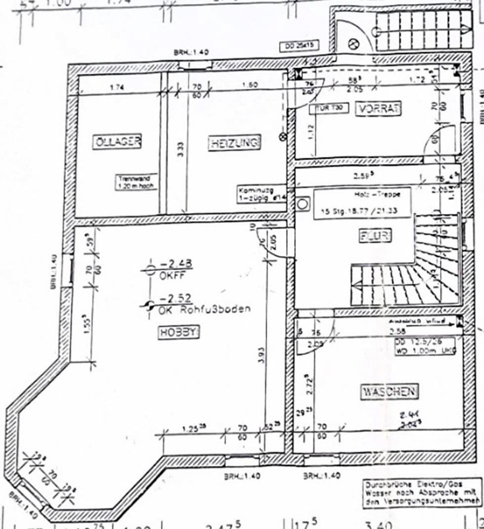
• Fully basemented, heated
• Attic with thermal insulation
• Oak rustic interior doors
• Meranti wood windows with folding mullions, shutters
• Heating control via WLAN
• Entirely tiled, underfloor heating (separate heating circuits, WLAN-controlled)
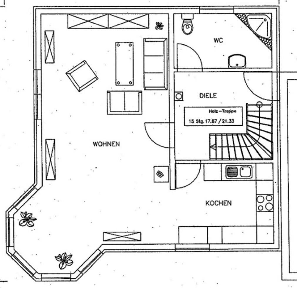
• Spacious living room with open fitted kitchen and bay window
• Bathroom with shower and washbasin
• Access to the terrace (approx. 24 m²), electric awning (5 m × 3.5 m)
• Entrance door with PIN-code security and insect protection
• 3 bright rooms (laminate and parquet flooring)
• Bathroom with shower, bathtub, WC, and washbasin (tiled)
• Balcony approx. 6.70 m × 1.30 m, accessible from two rooms
• Heated, thermal insulation windows, room height approx. 2.19 m
• Sauna and fitness area
• Rustic-designed party cellar
• Oil central heating (tank volume 3,750 l)
• Anker Pro solar battery (4.8 kW, expandable)
ß &
• Double garage approx. 6 m × 6 m
• Covered pool with sand filter system, solar mats for water heating, and a pool robot
• 1,000 l rainwater cistern with pump
• Utility shed approx. 2.5 m × 1.7 m
• Garden pond with fish stocking and filter system
• Barbecue area with a fireplace and an electric smoker, wooden shelter
• Terrace made of Douglas fir approx. 6 m × 4 m, awning (5 m × 3.5 m) plus additional side wind awnings
• Video surveillance for the property
This offer combines a well-maintained and thoughtfully equipped single-family home with an additional building plot—a rare opportunity that is highly attractive both for owner-occupiers in need of space and for investors. The house is ready for immediate occupancy and, thanks to its numerous extras, offers an exceptional living experience.
Property characteristics
| Age | Over 5050 years |
|---|---|
| Condition | Very good |
| Listing ID | 984857 |
| Usable area | 128 m² |
| Total floors | 3 |
| Available from | 29/01/2026 |
|---|---|
| Layout | 4+1 |
| EPC | D - Less economical |
| Land space | 823 m² |
| Price per unit | €3,750 / m2 |
What does this listing have to offer?
| Balcony | |
| Garage | |
| Terrace |
| Basement | |
| MHD 1 minute on foot |
What you will find nearby
Still looking for the right one?
Set up a watchdog. You will receive a summary of your customized offers 1 time a day by email. With the Premium profile, you have 5 watchdogs at your fingertips and when something comes up, they notify you immediately.




























