Commercial property to rent • 140 m² without real estateBarlachstraße 9 Nürnberg Weiherhaus Bayern 90455
Barlachstraße 9 Nürnberg Weiherhaus Bayern 90455Public transport 1 minute of walkingAttractive café or retail space with outdoor area in 90455 Nuremberg-Herpersdorf.
The commercial space, currently operated as "Pizzeria Da Maria", offers an ideal layout for a modern retail concept and can be taken over on 01.04. Thanks to the large glazed front, the area is particularly bright, inviting, and eye-catching – perfect for passing trade.
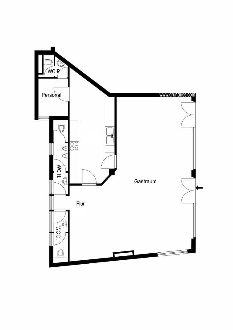
The unit features all the ancillary rooms required for a gastronomy or retail operation (two separate customer restrooms, employee restroom, staff room, etc.), but it can just as flexibly be used as an office or practice. The previous tenant’s counter can potentially be taken over. If this is not desired, the unit will be freshly painted, cleared out, and handed over without counter/kitchen installations.
The seating outdoor area is a special highlight, offering additional added value for guests or customers. With facade advertising and branding, creating a very attractive address is possible.
Ideally suited for:
- Café or bistro
- Delicatessen or retail concept
- Bakery / day café
- Service company
- Office or agency
- Practice or consulting
The space is located in the district center with easily accessible location. Due to the surrounding supermarkets (Rewe, Aldi), doctors, nursing homes, offices, and shops, there is high visibility and an attractive environment. The glazed front and seating outdoor area make the property particularly suitable for concepts with customer or guest operations. Public transport is only about 100 meters away, and the A73 motorway is approximately 5 minutes away by car. The harbor can be reached in just a few minutes by car.
If desired, the counter can potentially be taken over from the previous tenant; if this is not desired, the unit will be freshly painted, cleared out, and handed over without counter/kitchen installations. The unit will be vacant from April 2026, or possibly earlier in consultation with the current tenant. Underground and/or outdoor parking spaces can also be rented.
The rental is commission-free, with VAT separately itemized.
Please feel free to arrange a viewing appointment or contact me for further information.
Property characteristics
| Age | Over 5050 years |
|---|---|
| Condition | Good |
| Land non-residential space | 140 m² |
| Available from | 01/04/2026 |
|---|---|
| Listing ID | 984826 |
| Price per unit | €11 / m2 |
What does this listing have to offer?
| Wheelchair accessible | |
| MHD 1 minute on foot |
| Basement | |
| Terrace |
What you will find nearby
Still looking for the right one?
Set up a watchdog. You will receive a summary of your customized offers 1 time a day by email. With the Premium profile, you have 5 watchdogs at your fingertips and when something comes up, they notify you immediately.


