
Flat to rent 2+kk • 78 m² without real estateHeißener Straße 88 Mülheim an der Ruhr Mülheim an der Ruhr Nordrhein-Westfalen 45468
Heißener Straße 88 Mülheim an der Ruhr Mülheim an der Ruhr Nordrhein-Westfalen 45468Public transport 2 minutes of walking • LiftArrive. Breathe out. Be at home.
# Helle 2.5-Room Apartment with a Southwest Balcony & Elevator in the Heart of Mülheim
Sometimes you can tell as soon as you step inside: This could be my forever home.
This lovingly maintained 2.5-room apartment in Mülheim-Eppinghofen combines urban living with a retreat into nature – perfect for anyone who values short distances while still enjoying some tranquility.
Living with Feeling
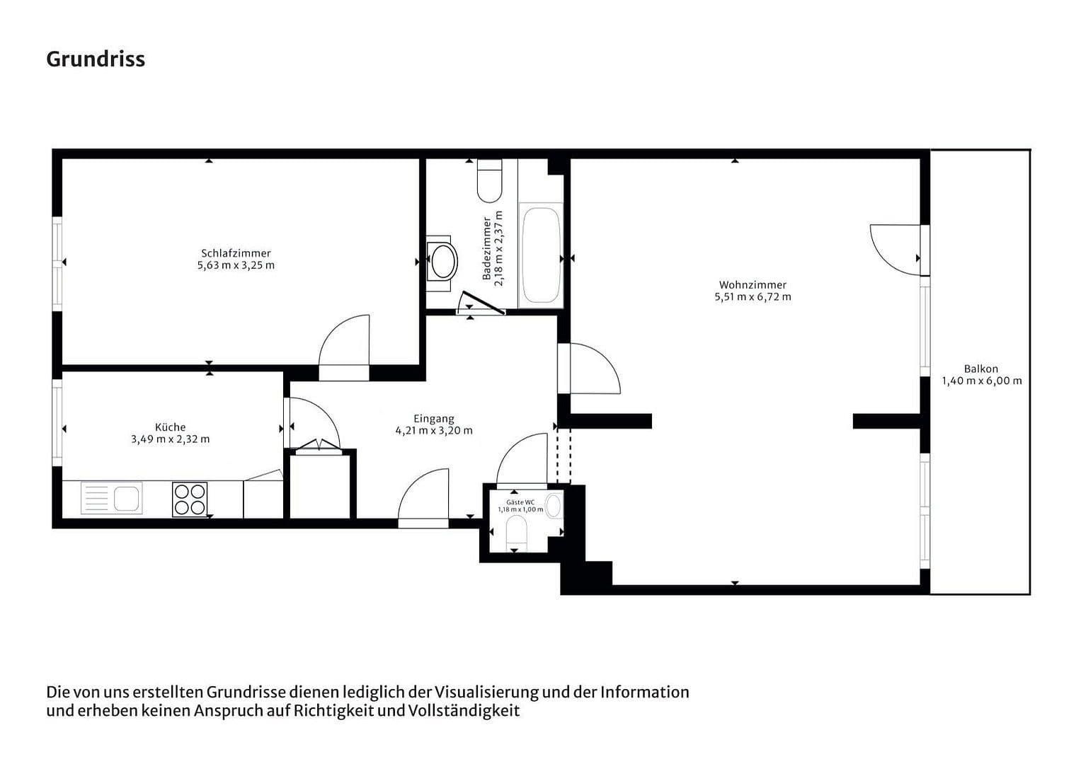
On 77.4 m² you will find a well-thought-out floor plan filled with light and space to feel at home. The spacious living room opens onto the southwest balcony, where you can enjoy sunny afternoons and relaxed evenings.
The parquet floors throughout the living and hallway areas create a warm atmosphere, while the large, modern kitchen is already set for shared cooking, conversations, and enjoyment.
A bathroom with a bathtub, a separate guest WC, a storage room within the apartment, as well as your own cellar room, add extra comfort to everyday life.
The apartment is located on the first floor of a very well-maintained building with an elevator. Particularly appealing:
The bedroom floor and walls will be renovated to your wishes. You can create an additional room by dividing the living room or enjoy an especially spacious living area – here you can truly arrive and make it your own.
Who is this apartment ideal for?
• Couples of any age
• Small families with one child
• Working professionals or retirees
Living Where Everything is Close By
The location brings together the best of both worlds: central yet green.
You can do your shopping on foot in just a few minutes, and Mülheim’s city center with its shops, cafés, and restaurants is conveniently reachable in about 15 minutes.
Whether it’s the cinema, the Stadthalle, the Ringlokschuppen, or a stroll in MüGa Park – everything is practically right at your doorstep. Along the Ruhr River, nature lovers and active people will appreciate the ideal conditions for walks, jogging, or cycling tours.
Thanks to the excellent public transport connections (bus about 500 m away, main train station about 800 m away), Essen, Duisburg, and Oberhausen (each about 20 minutes away) as well as Düsseldorf (about 30 minutes away) can also be reached quickly – ideal for commuters.
Features at a Glance
• 2.5 rooms, with an optional conversion into 3 separate rooms
• Large balcony with southwest orientation
• Spacious, modern fitted kitchen
• Bathroom with bathtub
• Separate guest WC
• Large storage room within the apartment
• Cellar room
• Laundry room
• Very well-maintained building and staircase
• Convenient elevator
Why This Apartment?
Because it offers more than just living space.
Here, you can enjoy sunny afternoons on the southwest balcony, a spacious living room with warm parquet, and a large, modern kitchen that is already set for shared moments. The rooms are well-conceived, the building is very well maintained, and thanks to the elevator, it is easily accessible.
The central location makes everyday life easier, while the green courtyards, the Ruhr River, and MüGa Park provide balance. Especially appealing: the apartment will be renovated according to your wishes – a home that adapts to your life.
Inquire Now
This apartment could be exactly what you’ve been looking for.
Don’t hesitate – send us your inquiry today. We look forward to showing you this beautiful apartment in person.
Property characteristics
| Age | Over 5050 years |
|---|---|
| Layout | 2+kk |
| Listing ID | 984805 |
| Usable area | 78 m² |
| Condition | After reconstruction |
|---|---|
| Floor | 1. floor out of 4 |
| EPC | D - Less economical |
| Price per unit | €11 / m2 |
What does this listing have to offer?
| Balcony | |
| Lift |
| Basement | |
| MHD 2 minutes on foot |
What you will find nearby
Still looking for the right one?
Set up a watchdog. You will receive a summary of your customized offers 1 time a day by email. With the Premium profile, you have 5 watchdogs at your fingertips and when something comes up, they notify you immediately.
























