
Flat to rent 4+1 • 109 m² without real estateWissinger Mark 21, , Lower Saxony
Wissinger Mark 21, , Lower SaxonyPublic transport 6 minutes of walking • ParkingWelcome to your new home! This high-quality, new 4-room apartment on the 1st floor impresses with its well-thought-out layout, bright rooms, and modern, energy-efficient features.
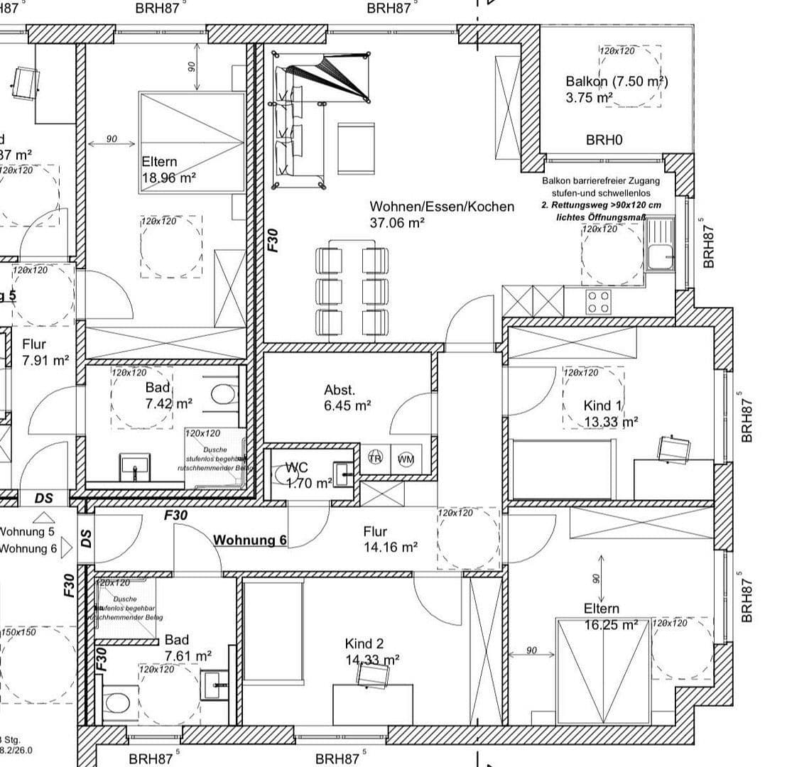
With a living area of approximately 108.72 m², the apartment offers ample space for families, couples needing extra room, or discerning professionals. Thanks to the KfW-40-QNG standard, heat pump, and photovoltaic system, you benefit from very low operating costs – sustainable and future-proof.
Key facts at a glance:
• Living area: approx. 108.72 m²
• Rooms: 4
• Floor: 1st floor
• Cold rent: €1,400
• Operating costs: €150
• Parking space: €50
• Total rent: €1,600
The apartment is situated in a quiet area in Wissinger Mark with good connections to Osnabrück. Shopping, schools, kindergartens, and medical care are all within easy reach. Public transportation is available on foot.
• Energy-efficient in accordance with the KfW-40 QNG standard
• Photovoltaic system & heat pump – low additional costs, sustainable energy
• Schüco windows, triple glazed, exterior black / interior white
• Electric roller shutters in every room
• Underfloor heating for a pleasant living environment
• Modern, stylish bathrooms
• High-quality flooring
• Balcony or terrace with every apartment
• Car parking space (€50/month, including 1 bicycle parking spot)
• Bicycle parking available for all residents
• First occupancy – ready to move in from 01.02.2026
Tenant Requirements
The following documents are required to rent an apartment:
• 3 recent salary statements
• Current SCHUFA report
Property characteristics
| Age | Over 5050 years |
|---|---|
| Condition | New-build |
| Floor | 1. floor |
| EPC | A - Extremely economical |
| Price per unit | €13 / m2 |
| Available from | 01/02/2026 |
|---|---|
| Layout | 4+1 |
| Listing ID | 984589 |
| Usable area | 109 m² |
What does this listing have to offer?
| Balcony | |
| Parking | |
| Terrace |
| Wheelchair accessible | |
| MHD 6 minutes on foot |
What you will find nearby
Still looking for the right one?
Set up a watchdog. You will receive a summary of your customized offers 1 time a day by email. With the Premium profile, you have 5 watchdogs at your fingertips and when something comes up, they notify you immediately.




