
Flat to rent 5+1 • 165 m² without real estate, Baden-Württemberg
, Baden-WürttembergPublic transport 1 minute of walkingThis exceptional 4/5-room apartment is situated in a stylishly renovated castle and offers approximately 165 m² of living space in a single-story, exclusive residential environment. The combination of historical charm and modern living comfort makes this apartment a rarity – featuring high-quality parquet floors, an original stucco ceiling, and underfloor heating throughout.
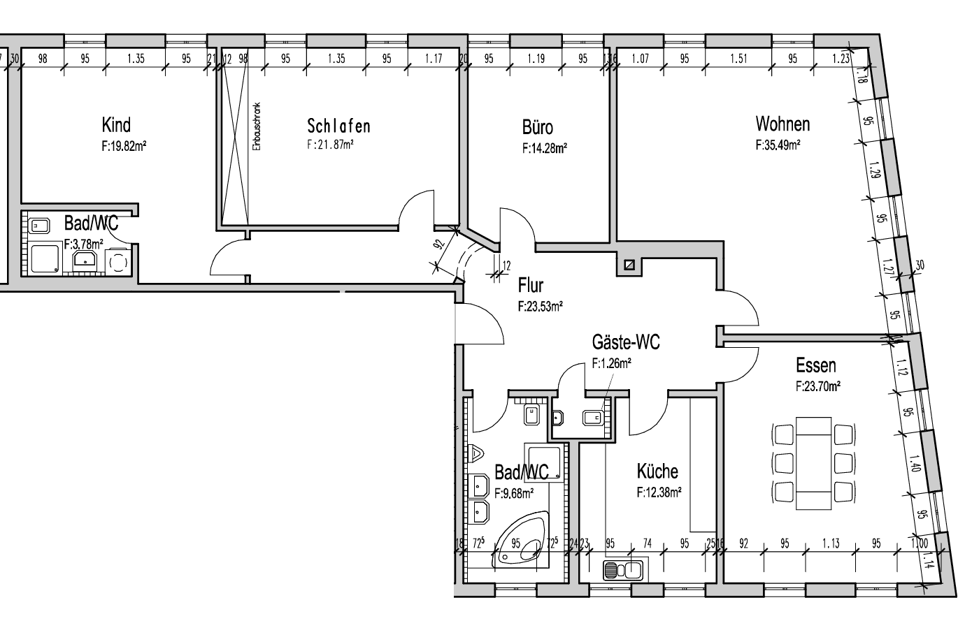
Currently, the apartment comprises four rooms with a particularly spacious living and dining area. As shown in the floor plan, this area can easily be divided into two separate rooms if needed, allowing the apartment to be flexibly used as either a 4-room or 5-room dwelling.
Additionally, the apartment offers three bathrooms, a walk-in closet, and a fitted kitchen. The generous layout is ideal for families, couples who need extra space, or for combining living and working.
A special highlight is the approximately 2,600 m² community garden available for residents’ use. Here you will find a heated pool, a trampoline, a playground, and other recreational options in a park-like setting. The adjacent castle pond further invites relaxation and a break from everyday life, lending a peaceful atmosphere to the outdoor area. Moreover, a communal room is available, which is ideal for hosting celebrations with up to 50 people and is equipped with leisure activities such as billiards, pinball, and a racing simulator.
This apartment combines exclusive living in a historical ambience with a wonderful residential community and recreational facilities, offering a housing concept that is rarely found in this form.
The exclusive castle apartment is located in a central yet historically characterized area in the town center of Münchingen, a highly livable district of the city Korntal‑Münchingen in the Ludwigsburg district.
The location blends peaceful living with excellent infrastructure: shopping facilities, restaurants, kindergartens, and schools are within walking distance; local clubs and recreational areas also shape the area’s character. With direct access to the Strohgäu and its proximity to Stuttgart and Ludwigsburg, residents benefit from short distances to public transportation and regional connections (S-Bahn, regional train, motorway).
Property characteristics
| Age | Over 5050 years |
|---|---|
| Layout | 5+1 |
| Listing ID | 984546 |
| Price per unit | €12 / m2 |
| Condition | Good |
|---|---|
| Floor | Ground floor |
| Usable area | 165 m² |
What does this listing have to offer?
| MHD 1 minute on foot |
What you will find nearby
Still looking for the right one?
Set up a watchdog. You will receive a summary of your customized offers 1 time a day by email. With the Premium profile, you have 5 watchdogs at your fingertips and when something comes up, they notify you immediately.
























