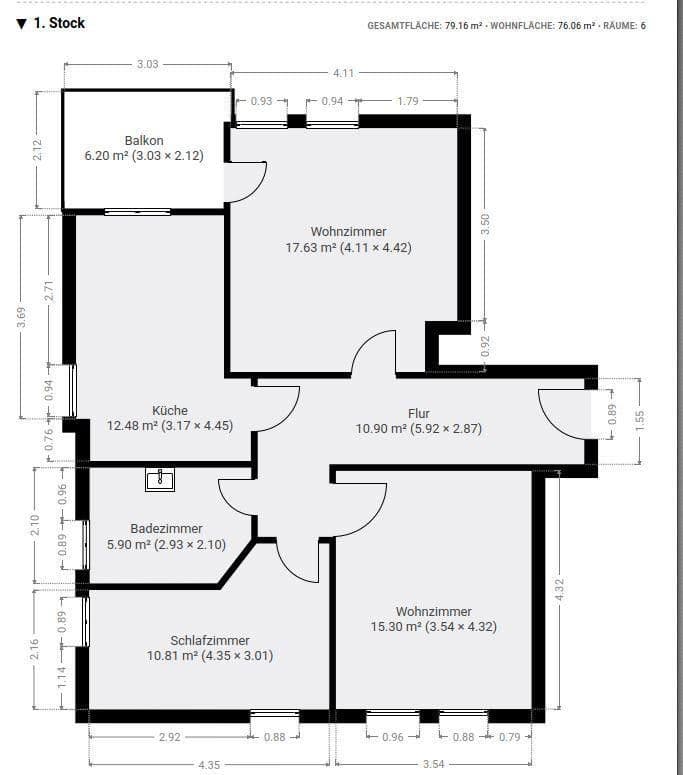
Flat to rent 3+1 • 77 m² without real estateAm Fuchsberg 10b Magdeburg Leipziger Straße Sachsen-Anhalt 39112
Am Fuchsberg 10b Magdeburg Leipziger Straße Sachsen-Anhalt 39112Public transport 4 minutes of walking • Lift • GarageOn approx. 76m², the apartment offers light-filled rooms.
The apartment consists of 3 beautiful rooms, a bathroom, as well as a separate (large) kitchen and hallway.
The toilet is equipped with a bathtub.
Other highlights
Frost-proof and secure parking thanks to your own underground parking space:
Flexibility for drivers, without the stress of searching for a parking spot.
Additional storage space through a spacious storage room:
Enough room for everything you love, without overcrowding your living areas.
Immediate proximity to public transport with tram and bus lines:
Perfect connections that get you quickly and comfortably into the city and beyond.
Shopping facilities and restaurants in the immediate vicinity:
Aldi, Edeka, and many restaurants ensure short distances and culinary diversity.
Perfect connection to the city motorway:
Ideal for commuters or weekend getaways – the on-/off-ramp is just a few intersections away (close by yet without noise disturbance).
Energy-efficient building:
The energy efficiency class C+ saves on utility costs and is environmentally friendly – modern living with responsibility.
Have we sparked your interest? Contact us today to secure a viewing appointment before this apartment is snapped up again!
Located in one of the city’s most beautiful residential areas, close to the center yet quiet, lies this bright 3-room apartment.
The building was constructed in 1996 and features a passenger lift that guarantees age-appropriate and barrier-free living. The
pleasant quality of living is noticeable the moment you step into the apartment.
- Passenger lift
- WC with bathtub
- Laminate flooring
- Underground parking
Light-filled apartment:
The large windows ensure bright, welcoming rooms and create a warm, inviting atmosphere that makes you feel at home.
High-quality laminate flooring in oak wood look:
The stylish floor gives the apartment a modern and cozy character – robust and easy to maintain at the same time.
Newly installed white doors:
Fresh and modern – a small yet elegant accent that pulls the overall picture together.
Numerous power outlets in every room:
Several outlets per room provide maximum flexibility – no more extension cords, ideal for households with modern technology and multiple electronic devices.
Newly painted radiators throughout the apartment:
A fresh look and optimal heat distribution for a comfortable indoor climate in every season.
Wall-hung WC:
A modern look combined with easy cleaning – hygienic and practical.
Property characteristics
| Age | Over 5050 years |
|---|---|
| Condition | After reconstruction |
| Floor | 1. floor out of 4 |
| EPC | C - Economical |
| Price per unit | €7 / m2 |
| Available from | 28/01/2026 |
|---|---|
| Layout | 3+1 |
| Listing ID | 984525 |
| Usable area | 77 m² |
What does this listing have to offer?
| Balcony | |
| Basement | |
| Lift |
| Wheelchair accessible | |
| Garage | |
| MHD 4 minutes on foot |
What you will find nearby
Still looking for the right one?
Set up a watchdog. You will receive a summary of your customized offers 1 time a day by email. With the Premium profile, you have 5 watchdogs at your fingertips and when something comes up, they notify you immediately.
















